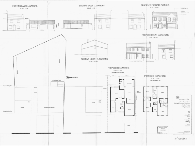
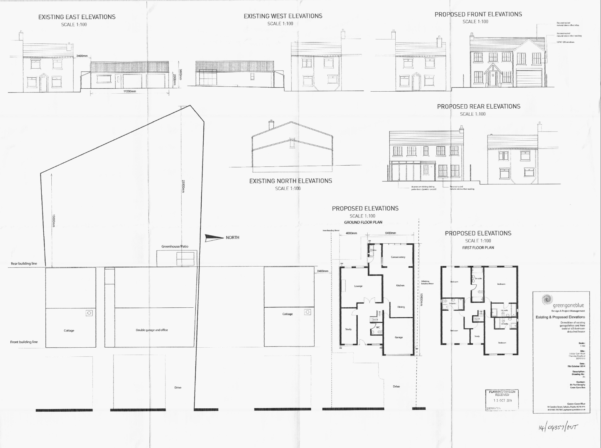
**Standout Features:**
- Large plot of land, outlined for a 4/5 bedroom detached house
- Approx. 2500 sq ft of potential living space
- Located in a peaceful area, near canal walks and woodland
- Off-street parking available
- Outline planning permission approved (ref: 24/02346/OUT)
- Close proximity to high-performing schools
**Overview:**
Seize this exciting development opportunity in Thackley! With outline planning permission already granted for an executive 4/5 bedroom detached home, this substantial plot is perfect for self-build enthusiasts or property developers looking for their next project. Spanning approximately 2500 sq ft, the generous size allows for ample design flexibility and spacious living areas.
Nestled in a lovely location with easy access to scenic canal walks and nearby woodland, the property is also conveniently close to highly regarded schools, making it an ideal choice for families. While there are conditions tied to the sale requiring some initial preparations, they present a straightforward path to commencement.
Do not miss this rare chance to invest in land that holds both immediate and long-term potential. Opportunities like this in desirable BD10 won’t last long—envision your future here today!
Land for sale in Harrogate Road, Eccleshill,, BD2 — £69,950 • 1 bed • 1 bath
Property for sale in Post Office Road, Bradford, West Yorkshire, BD2 — £170,000 • 1 bed • 1 bath
Land for sale in Halifax Road, Bradford, BD6 — £50,000 • 1 bed • 1 bath
Plot for sale in Trough Lane, Denholme, Bradford, West Yorkshire, BD13 — £295,000 • 5 bed • 3 bath • 2430 ft²
4 bedroom detached house for sale in Brackendale, Thackley,, BD10 — £499,995 • 4 bed • 2 bath
Land for sale in Barley Cote Avenue, Riddlesden, Keighley, West Yorkshire, BD20 — £110,000 • 1 bed • 1 bath














































