Large freehold Hanley plot with pre-app for 36 one-bed flats — auction sale, due diligence required.
Freehold town-centre plot, very large size
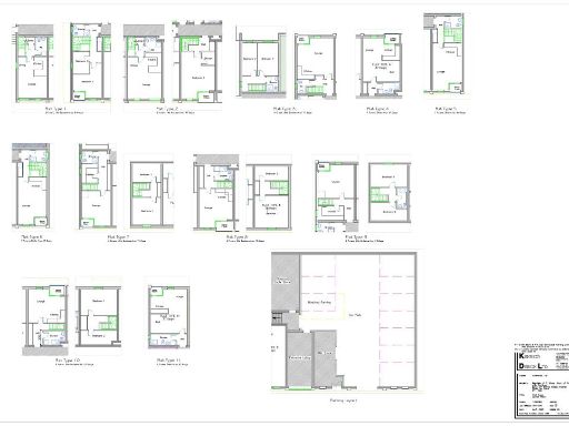
Pre-application approval for 36 one‑bed apartments
Previous lapsed consent for 42 apartments exists
Can be viewed anytime; currently vacant and unkempt
Administration and buyer’s premium £1,800 each on exchange
Located in a very deprived area with high crime rates
Excellent mobile signal and fast broadband connectivity
Site requires clearance, maintenance and buyer due diligence
A substantial, freehold town-centre plot in Hanley offered with pre-application approval for 36 one‑bed apartments. The site is very large, currently vacant and can be inspected at any time, giving developers or investors a clear sense of the parcel before bidding. Digital connectivity is strong (excellent mobile, fast broadband) and local amenities and schools are nearby.
This is a development-led opportunity sold via online auction (27–28 October). Pre-app approval for 36 one‑bed units is a positive uplift in scheme certainty; a previous planning consent for 42 units lapsed. Purchasers must rely on their own enquiries — planning, rights, site surveys and any abnormal costs are the buyer’s responsibility.
Material considerations: the plot is unkempt and will require site clearance and maintenance before works. The location sits in a very deprived area with high local crime statistics, which will affect rental profile and management costs. An administration fee and buyer’s premium of £1,800 each (inc. VAT) are payable on exchange; see the legal pack for additional disbursements.
For investors seeking a town-centre development with planning momentum, this plot offers scale and connectivity. For cautious buyers, the combination of social-economic context, site preparation needs and auction purchase mechanics mean thorough due diligence and realistic financial modelling are essential before bidding.
Land for sale in Glass Street, Stoke on Trent, ST1 — £2,000,000 • 1 bed • 1 bath • 24394 ft²
Residential development for sale in 24-28 Piccadilly, Stoke-On-Trent, Staffordshire ST1 1EG, ST1 — £100,000 • 1 bed • 1 bath • 2766 ft²
Land for sale in Albany Street, Stoke on Trent, ST6 — £30,000 • 1 bed • 1 bath • 4356 ft²
Land for sale in Stonor Street, Cobridge, Stoke On Trent, ST6 3HJ, ST6 — £1,000,000 • 53 bed • 53 bath • 1125 ft²
Land for sale in Hill Street, Stoke on Trent, ST4 — £225,000 • 1 bed • 1 bath • 3410 ft²
Land for sale in Land Between Lloyd Sreet And Locketts Lane, Longton, Stoke-On-Trent, Staffordshire, ST3 4JQ, ST3 — POA • 1 bed • 1 bath • 1975 ft²


































