**Standout Features:**
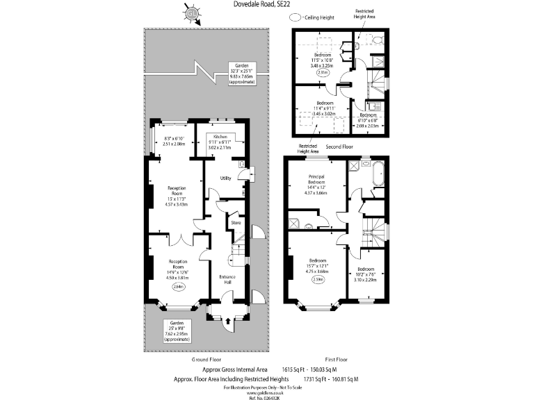
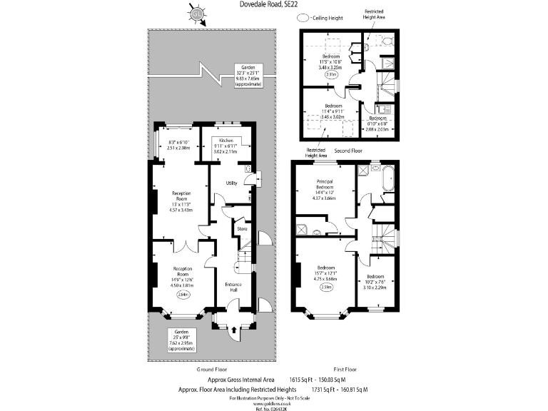
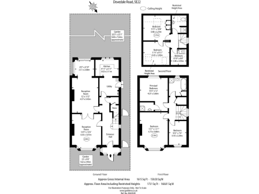
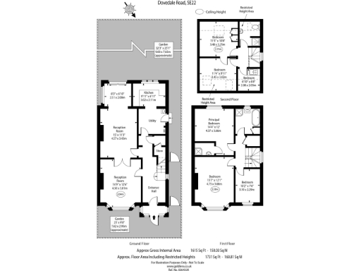
- Spacious semi-detached home (1,700 sq ft) with 5 bedrooms and 3 bathrooms
- Southwest-facing garden with ample sunlight
- Modern kitchen/breakfast room with integrated appliances
- Two interconnected reception rooms and a study/music room
- Potential for attic conversion and modernization
- Proximity to Peckham Rye Park and excellent local amenities
- Well-connected transportation options with bus access to Zone 2 trains
**Concerns:**
- Property requires modernization
- Solid brick walls assumed to have no insulation
Welcome to this charming 1930s semi-detached family home located in the cosmopolitan heart of SE22. Spanning over 1,700 square feet, this spacious residence offers five bedrooms, including four doubles, and three well-appointed bathrooms, providing comfort for growing families. The heart of this home features a bright kitchen/breakfast room perfect for family gatherings, along with two generous reception rooms that seamlessly connect, making it ideal for entertaining.
The property enjoys a southwest-facing garden, perfect for soaking in the sun and entertaining outdoors. While the home retains delightful period features, it does require some modernization, presenting an excellent opportunity for buyers wishing to add personal touches and value over time. The potential for an attic conversion provides further flexibility to expand your living space.
Conveniently located, you can easily access Peckham Rye Park, a local café, and various shops, bars, and restaurants within walking distance. Commuters will appreciate the quick bus route to Peckham Rye station, ensuring seamless connections to central London. Families will benefit from highly-rated local schools, including Harris Boys' and Girls' Academies, both marked as ‘Outstanding’ by Ofsted.
This property is perfect for families seeking comfort, space, and future potential. Don't miss out on this opportunity to make it your own—schedule a viewing today!
3 bedroom semi-detached house for sale in Forest Hill Road, East Dulwich, SE22 — £999,950 • 3 bed • 1 bath • 1169 ft²
3 bedroom semi-detached house for sale in Therapia Road, London, SE22 — £1,175,000 • 3 bed • 1 bath • 1180 ft²
5 bedroom semi-detached house for sale in Barry Road, East Dulwich, London, SE22 — £1,450,000 • 5 bed • 4 bath • 2817 ft²
5 bedroom semi-detached house for sale in Forest Hill Road, London, SE22 — £1,100,000 • 5 bed • 2 bath • 1666 ft²
5 bedroom semi-detached house for sale in Friern Road, East Dulwich, SE22 — £1,650,000 • 5 bed • 4 bath • 2303 ft²
5 bedroom semi-detached house for sale in Overhill Road, East Dulwich, London, SE22 — £1,150,000 • 5 bed • 2 bath • 1504 ft²


























































