Spacious garden and parking on a popular family road.
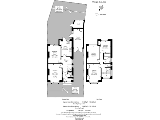
Three double bedrooms, one bathroom and separate WC
Large rear garden of nearly 80 feet and side access garage
Off-street parking for one to two cars on paved drive
Requires renovation throughout; kitchen and bath need updating
Loft expansion potential (STPP) — no application confirmed
Cavity walls assumed uninsulated; EPC rated E
Council Tax band above average for the area
Excellent mobile signal and fast broadband speeds
This three-bedroom semi-detached home on Therapia Road combines period character with clear potential for modernisation. The property features original stained-glass details, bay windows and fireplaces alongside a large rear garden and off-street parking with garage.
Internally the layout is traditional with two large double bedrooms, a smaller double and one bathroom with a separate WC. The house requires renovation throughout — updating the kitchen, bathroom and services will be needed to bring it up to modern standards. Walls are cavity-built with no added insulation (assumed), and the EPC is E.
Significant scope exists to increase living space subject to planning permission: neighbouring properties indicate loft expansion potential (STPP). For families, the house sits in a commuter-friendly area with strong local schools, green spaces nearby and fast broadband and mobile coverage.
Practical negatives to note: the property needs renovation, has only one bathroom, above-average council tax, and some insulation and energy-efficiency work likely required. For buyers willing to invest, this freehold house offers good plot size and characterful features to create a spacious family home.
3 bedroom semi-detached house for sale in Scutari Road, London, SE22 — £1,000,000 • 3 bed • 1 bath • 1506 ft²
4 bedroom detached house for sale in Therapia Road, East Dulwich, London, SE22 — £1,700,000 • 4 bed • 3 bath • 1792 ft²
2 bedroom apartment for sale in Therapia Road, East Dulwich, London, SE22 — £700,000 • 2 bed • 1 bath • 886 ft²
3 bedroom flat for sale in Therapia Road, East Dulwich, SE22 — £675,000 • 3 bed • 1 bath • 858 ft²
5 bedroom semi-detached house for sale in Friern Road, East Dulwich, SE22 — £1,650,000 • 5 bed • 4 bath • 2303 ft²
3 bedroom semi-detached house for sale in Dovedale Road, London, SE22 — £1,050,000 • 3 bed • 1 bath • 1170 ft²


















































