TW3 2DZ - 4 bedroom detached house for sale in Hounslow Avenue, Houns…

View on Property Piper

4 bedroom detached house for sale in Hounslow Avenue, Hounslow, TW3

Summary - 35, Hounslow Avenue TW3 2DZ

4 bed 2 bath Detached

**Standout Features:**
- Unique corner location with ample living space
- Four spacious bedrooms and two bathrooms
- Four reception rooms, perfect for family gatherings
- Expansive studio/workshop offering versatile usage
- Beautifully laid gardens to the side and rear
- Convenient off-road parking
- Close proximity to Hounslow Station and local amenities

**Summary:**
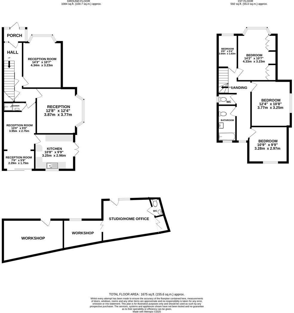
Discover a unique opportunity with this spacious four-bedroom detached home, nestled on a desirable corner plot in Hounslow. This property showcases above-average living space, featuring four inviting reception rooms, including a bright and airy living area and a well-equipped kitchen, complemented by a downstairs shower for added convenience. The four comfortable bedrooms upstairs accommodate families perfectly, along with a family bathroom and an extra WC.

Beyond the impressive interior, the outdoor areas offer great potential, including a generously-sized garden and extensive patio for entertaining or relaxation. The highlight may well be the expansive studio/workshop which opens up numerous possibilities for various uses. With off-road parking and a location conveniently close to Hounslow Station, this property provides both comfort and practicality. Perfect for families or investors looking for a home with future potential, this hidden gem won’t last long in today’s market. Don’t miss your chance to envision your future in this character-filled home!

Property Details

Brochure Descriptions

Image Descriptions

Floorplan Description

Rooms

Textual Property Features

Detected Visual Features

EPC Details

Nearby Schools

Nearest Bars And Restaurants

,,,,}

Nearest General Shops

,,}

Nearest Grocery shops

,,}

Nearest Supermarkets

,,}

Nearest Religious buildings

,,}

Nearest Medical buildings

,,,}

Nearest Airports

,}

Nearest Leisure Facilities

,,,,}

Nearest Tourist attractions

,,}

Nearest Train stations

,,,,}

Nearest Bus stations and stops

,,,,}

Nearest Hotels

,,}

Tags

Local Market Stats

AirBnB Data

Similar Properties

Meta

High Res Images

Compatible Images

Low res Images

Thumbnails

Raw Images

High Res Floorplan Images

Compatible Floorplan Images

Low res Floorplan Images

FloorplanImages Thumbnail

Raw Floorplan Images