Spacious five-bed detached with garage and easy Cambridge access.
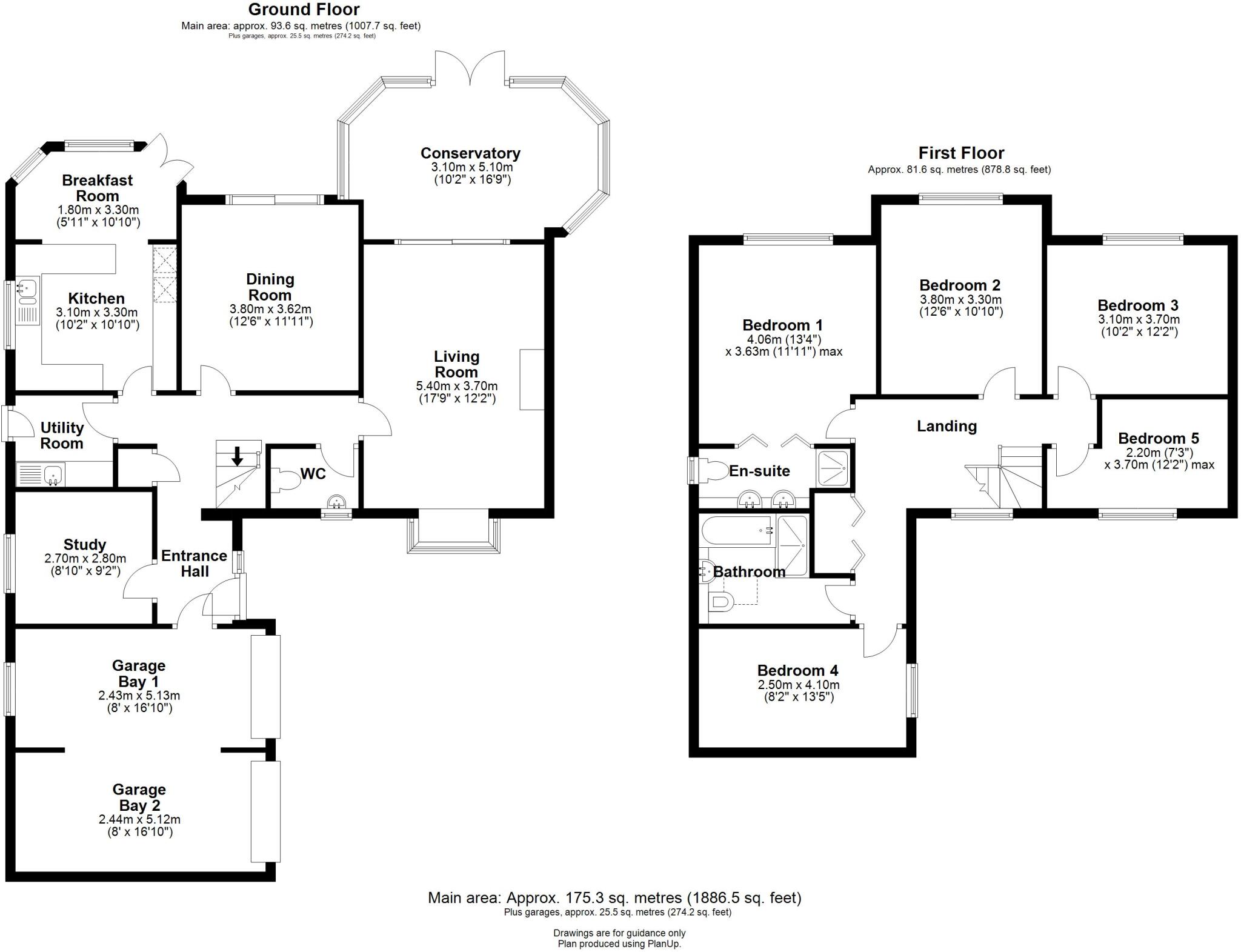
- Five double-bedroom detached family house, 175 sqm (1,886 sqft)
- Three reception rooms plus conservatory and study/office
- Double garage, block-paved driveway and private rear garden
- Convenient central village location with shops and services nearby
- Guided busway and A14 access for straightforward commuting
- EPC rating D (67); factor into future energy costs
- Council tax band F; higher ongoing running costs
- Plot is modest for footprint; garden private but not extensive
A substantial, well-laid-out five-bedroom detached house in the heart of Over, offering 175 sqm (1,886 sqft) of family-friendly accommodation across two floors. The home has three reception rooms, a conservatory, and a practical kitchen/breakfast room, arranged for flexible living and home-working. The double garage, block-paved driveway and private rear garden complete a convenient village-centre package.
The location is a key draw: central village position with easy access to local shops, doctor’s surgery, community facilities and countryside walks. Commuters benefit from a usually speedy A14 route and the guided busway with a nearby stop, and there are several well-regarded schools within easy reach, including an outstanding secondary school at Swavesey.
Practical considerations are clear and factual. The property dates from 1989 and is sold freehold. Energy performance is rated D (67) and the home sits in council tax band F — both points to factor into running costs. The plot is modest for the footprint, so outdoor space is private but not expansive.
Ideal for growing families seeking a village setting with good transport links and school options, the house also suits buyers who value a ready-to-live-in home with potential to update systems or décor over time. No flooding risk is recorded and neighbourhood crime levels are very low.
4 bedroom detached house for sale in The Old Manse, Glover Street, Over, Cambridge, CB24 — £725,000 • 4 bed • 3 bath • 2025 ft²
5 bedroom detached house for sale in The Lanes, Over, CB24 — £900,000 • 5 bed • 3 bath • 3073 ft²
4 bedroom semi-detached house for sale in The Doles, Over, CB24 — £340,000 • 4 bed • 1 bath • 1131 ft²
3 bedroom semi-detached house for sale in West Street, Over, Cambridge, CB24 — £385,000 • 3 bed • 1 bath • 1100 ft²
6 bedroom detached house for sale in New Road, Over, CB24 — £900,000 • 6 bed • 4 bath • 3186 ft²
4 bedroom detached house for sale in High Street, Over, CB24 — £665,000 • 4 bed • 2 bath • 1680 ft²














































































































