Spacious village property, separate bungalow and large garages on a generous plot.
Six bedrooms across main house and detached two-bedroom bungalow annex
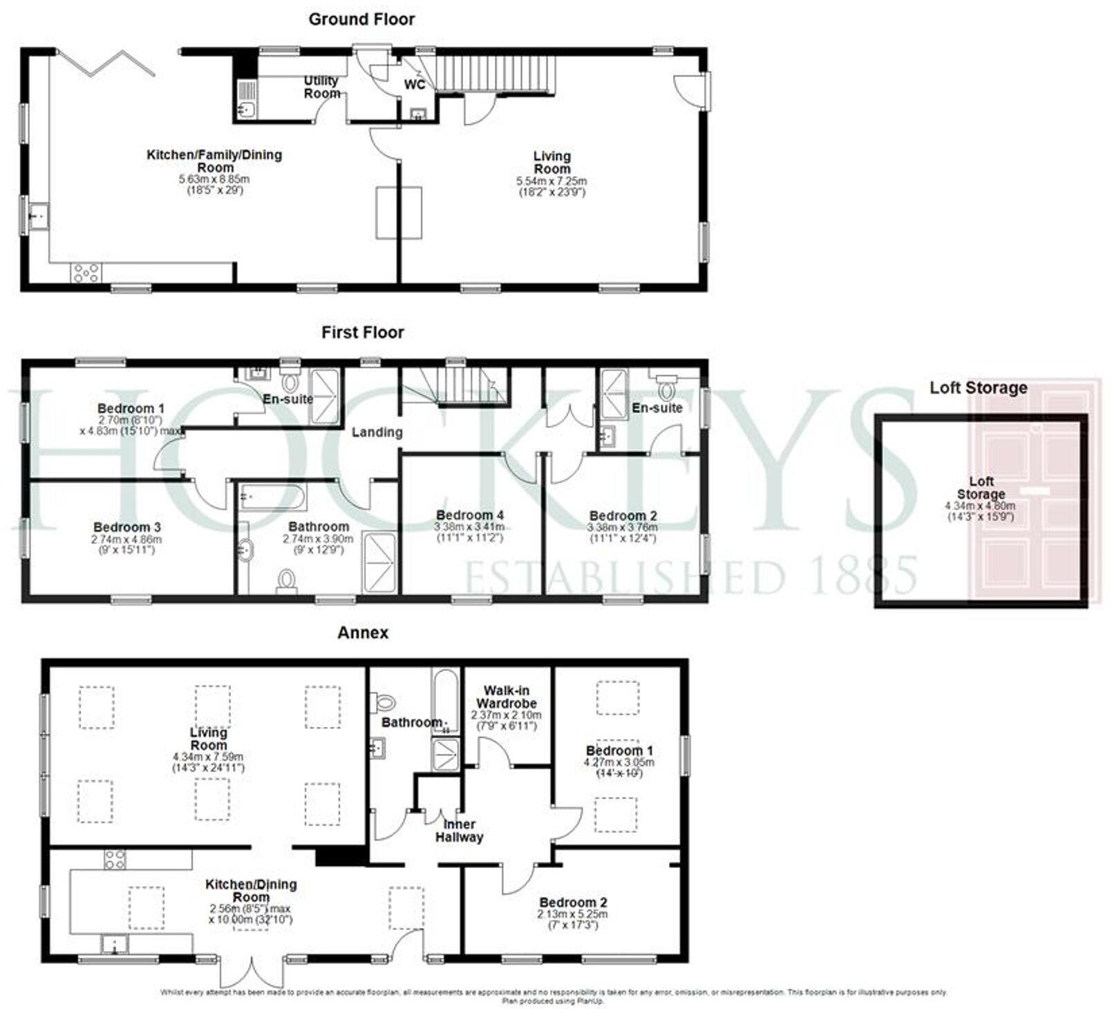
A generous period house finished to a high standard, set in a very large plot in the popular village of Over. The main house offers four double bedrooms (two en suite), a large open-plan kitchen/dining/living area with quartz worktops and bifolds to the courtyard, a cosy sitting room with log burner, and ground-floor underfloor heating throughout. The linked oak staircase leads to well-proportioned first-floor accommodation and modern bathroom suites.
Completing the plot is a detached two-bedroom bungalow (annex) with vaulted ceilings, exposed beams, French doors to its private garden and a useful loft/storage room already insulated and wired — offering easy potential for conversion by adding a staircase. Outside there is generous gated parking, a detached four-vehicle garage/workshop (power connected) and low-maintenance graveled areas that can be re-landscaped to lawn if desired.
This property suits families seeking flexible multi-generational living or buyers wanting rental/annex income and workspace potential. Practical points: the house was renovated in recent years, benefits from modern double glazing and fast broadband, and lies close to transport links into Cambridge and outstanding local secondary schooling.
Notable drawbacks are the EPC rating of C and an above-average council tax band, which may affect running costs. The annex’s first-floor room requires a fitted staircase to be fully usable as living space. Otherwise the accommodation and plot present strong scope for adaptable living and home-working arrangements in a very affluent, low-crime village location.
5 bedroom detached house for sale in The Lanes, Over, CB24 — £900,000 • 5 bed • 3 bath • 3073 ft²
3 bedroom detached bungalow for sale in Overcote Road, Over, CB24 — £575,000 • 3 bed • 1 bath • 1292 ft²
5 bedroom detached house for sale in High Street, Over, CB24 — £595,000 • 5 bed • 1 bath • 1615 ft²
5 bedroom detached house for sale in New Road, Over, CB24 — £650,000 • 5 bed • 2 bath • 1884 ft²
4 bedroom detached house for sale in The Old Manse, Glover Street, Over, Cambridge, CB24 — £725,000 • 4 bed • 3 bath • 2025 ft²
4 bedroom detached house for sale in High Street, Over, CB24 — £665,000 • 4 bed • 2 bath • 1680 ft²






























































































































