Chain-free renovation with planning consent near Heacham beach — auction sale, starting bid £270,000.
Victorian detached with generous front and rear gardens
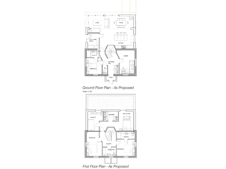
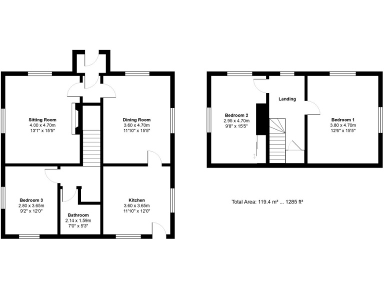
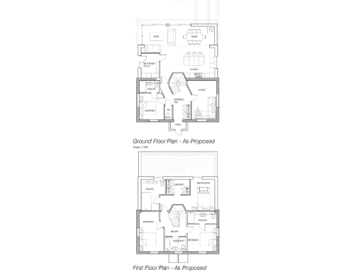
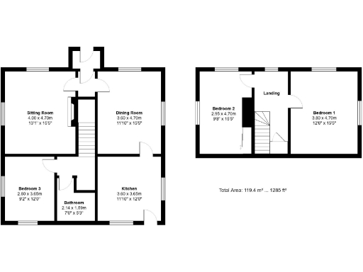
A substantial Victorian detached house on Lamsey Lane offering a clear renovation and extension opportunity in popular Heacham. The property sits on a generous plot with front and rear gardens, off-street parking for several vehicles and planning consent (Kings Lynn & West Norfolk reference 24/00348/F) for a two-storey rear extension and internal alterations to create a four-bedroom family home.
The existing house retains period character—red brick, chimneys and a symmetrical façade—but requires full modernisation throughout. The building is currently heated by an oil-fired boiler, has older double glazing and walls likely without insulation; the EPC is F. Broadband speeds are slow. These are realistic costs to factor into any refurbishment budget.
This lot is being sold at online auction with a starting bid of £270,000 and will be offered chain-free. Buyers should be aware of auction terms: a non-refundable 5% deposit on exchange plus a reservation fee (up to 6% inc VAT, minimum £7,200) and standard identity/AML checks. A renovation package is offered by the owner as an optional extra for purchasers who prefer a turnkey route.
For families seeking a coastal base, the house is about a 15-minute walk from the beach and close to local schools and amenities. For developers or renovators, planning consent plus a roomy footprint provide scope to create a spacious, contemporary living layout while retaining the property’s original charm. Prospective buyers should review the legal pack and commission surveys before bidding.
3 bedroom detached bungalow for sale in Kenwood Road, Heacham, PE31 — £200,000 • 3 bed • 1 bath • 897 ft²
3 bedroom bungalow for sale in South Moor Drive, Heacham, King's Lynn, Norfolk, PE31 7BW, PE31 — £195,000 • 3 bed • 1 bath • 681 ft²
3 bedroom detached bungalow for sale in South Moor Drive, Heacham, King's Lynn, PE31 — £195,000 • 3 bed • 1 bath • 681 ft²
2 bedroom detached bungalow for sale in South Moor Drive, Heacham, King's Lynn, Norfolk, PE31 7BW, PE31 — £205,000 • 2 bed • 1 bath • 797 ft²
3 bedroom detached house for sale in Hunstanton Road, Dersingham, PE31 — £325,000 • 3 bed • 1 bath • 742 ft²
3 bedroom detached bungalow for sale in Cheney Hill, Heacham, King's Lynn, PE31 — £185,000 • 3 bed • 1 bath • 829 ft²






























































