Large 0.25-acre plot, planning permission, auction sale — ideal for a family renovation project.
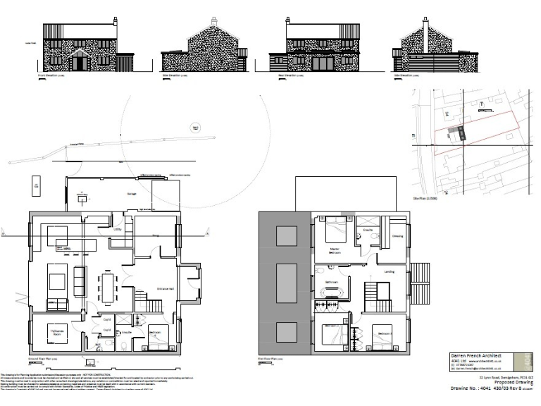
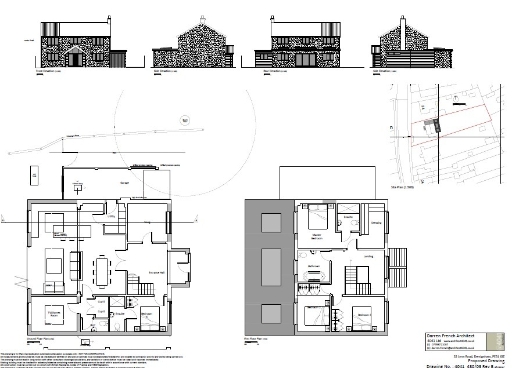
Planning permission granted for two‑storey side and rear extensions (ref 24/02265/F)
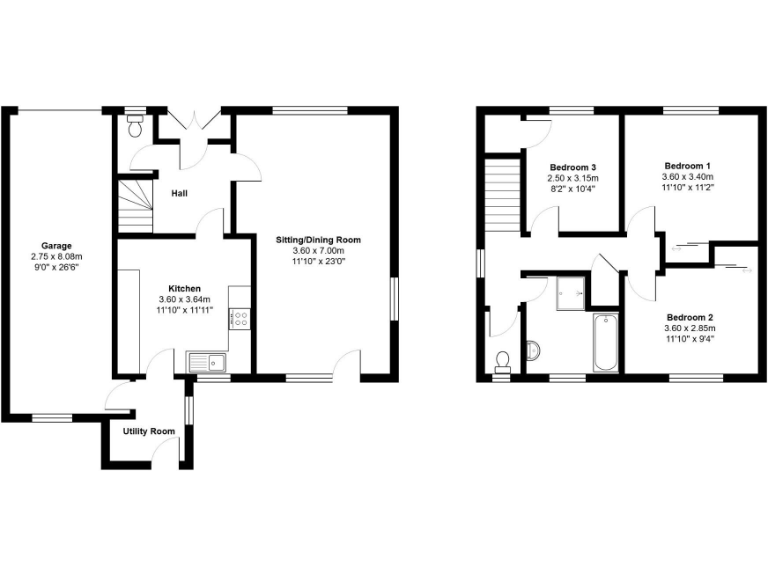
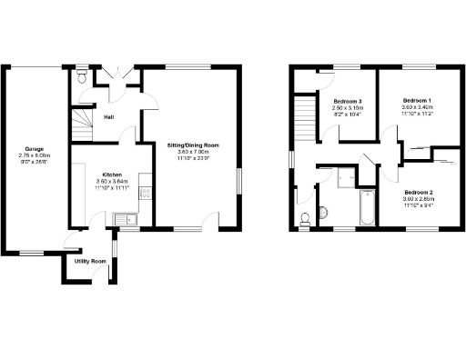
A detached three-bedroom home on a generous 0.25 acre plot with a private rear garden extending over 120ft. The existing house is compact (approximately 742 sq ft) and requires full modernisation, but benefits from planning permission (ref: 24/02265/F) for a two‑storey side extension and single‑storey rear extension to create a much larger, contemporary family layout.
This lot is being sold at auction with a starting bid of £325,000 and is offered chain‑free. A refurbishment package is available should a buyer prefer to commission the works after purchase; the current owner has had the project costed. The property is freehold, connected to mains services, and warmed by an oil‑fired boiler to radiators. EPC rating E and council tax band D.
Location is a strong selling point: Dersingham village provides everyday amenities and good primary schools, with the North Norfolk coast, Sandringham Estate and Hunstanton only a short drive away. For buyers seeking space, the long rear garden and driveway plus integral garage create clear scope for family living or an extended home once planning is implemented.
Important practical points: the house needs renovation throughout, uses oil heating (no gas), and currently has an EPC of E. Being an auction sale, purchasers should note the usual auction conditions — a 5% deposit on exchange and a non‑refundable reservation fee may apply — and should review the legal pack and budget for renovation costs before bidding.
3 bedroom detached house for sale in Hunstanton Road, Dersingham, King's Lynn, Norfolk, PE31 6HQ, PE31 — £325,000 • 3 bed • 1 bath • 978 ft²
Land for sale in Gelham Manor, Dersingham, King's Lynn, PE31 — £100,000 • 1 bed • 1 bath
3 bedroom semi-detached house for sale in Hunstanton Road, Dersingham, King's Lynn, PE31 — £185,000 • 3 bed • 1 bath • 712 ft²
Land for sale in Gelham Manor, Dersingham, KING'S LYNN, PE31 — £100,000 • 1 bed • 1 bath
2 bedroom semi-detached house for sale in Robert Balding Road, Dersingham, King's Lynn, PE31 — £200,000 • 2 bed • 2 bath • 675 ft²
3 bedroom detached house for sale in Lynn Road, Dersingham, King's Lynn, Norfolk, PE31 — £490,000 • 3 bed • 1 bath • 1300 ft²






































































