IP33 2FB - 4 bedroom end of terrace house for sale in Abbots Gate, Lau…

View on Property Piper

4 bedroom end of terrace house for sale in Abbots Gate, Laundry Lane, Bury St Edmunds, Suffolk, IP33

Summary - WARDENS OFFICE ABBOTS GATE BURY ST EDMUNDS IP33 2FB

4 bed 2 bath End of Terrace

Contemporary 4-bed family home with garden and two parking spaces.
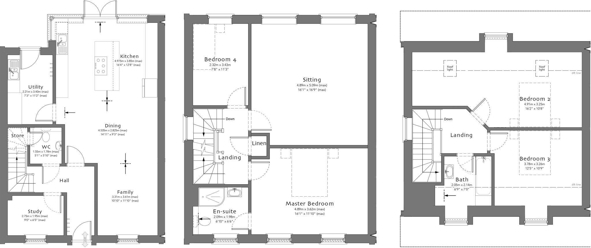
New-build end-terrace townhouse, approx. 1,960 sq ft
This newly built, three-storey end-terrace townhouse in Abbots Gate provides spacious, contemporary family living across approximately 1,960 sq ft. The ground floor’s open-plan kitchen, dining and living area is fitted with bespoke Silestone or granite worktops, Bosch appliances and underfloor heating — a practical, stylish hub for day-to-day life. A separate utility and study add useful flexibility for home-working and storage, while engineered oak and quality finishes run throughout.

The layout offers four bedrooms and multiple bathrooms across the upper levels, including an en suite to the master, giving family members space and privacy. Outside, a private rear garden with natural stone patio, two dedicated off-street parking spaces and EV charger ducting add convenience for modern living. The home is completed with a 10-year Checkmate warranty and external lighting for added reassurance.

Notable considerations: this property is part of a managed development and there will be a management charge; potential buyers should check the level and terms. Local crime is reported as above average for the area, and council tax banding is not provided here — both are practical points to verify before proceeding. Overall, the house suits buyers seeking a low-maintenance, contemporary family home with guaranteed new-build protections and modern conveniences.

Property Details

Brochure Descriptions

Image Descriptions

Floorplan Description

Rooms

Textual Property Features

Target Audience

AI Tags

Detected Visual Features

Nearby Schools

Nearest Bars And Restaurants

,,,,}

Nearest General Shops

,,}

Nearest Grocery shops

,,}

Nearest Supermarkets

,,}

Nearest Religious buildings

,,}

Nearest Medical buildings

,,,}

Nearest Leisure Facilities

,,,,}

Nearest Tourist attractions

,,}

Nearest Train stations

,,,,}

Nearest Bus stations and stops

,,,,}

Nearest Hotels

,,}

Tags

Local Market Stats

AirBnB Data

Similar Properties

Meta

High Res Images

Compatible Images

Low res Images

Thumbnails

Raw Images

High Res Floorplan Images

Compatible Floorplan Images

Low res Floorplan Images

FloorplanImages Thumbnail

Raw Floorplan Images