IP33 2FB - 4 bed spacious modern townhouse in Abbots Gate, IP33 2FB

View on Property Piper

4 bedroom end of terrace house for sale in Abbots Gate, Laundry Lane, Bury St Edmunds, Suffolk, IP33

Summary - Abbots Gate, Laundry Lane, Bury St Edmunds, Suffolk, IP33 IP33 2FB

4 bed 2 bath End of Terrace

Quality finishes, private garden and two parking spaces.
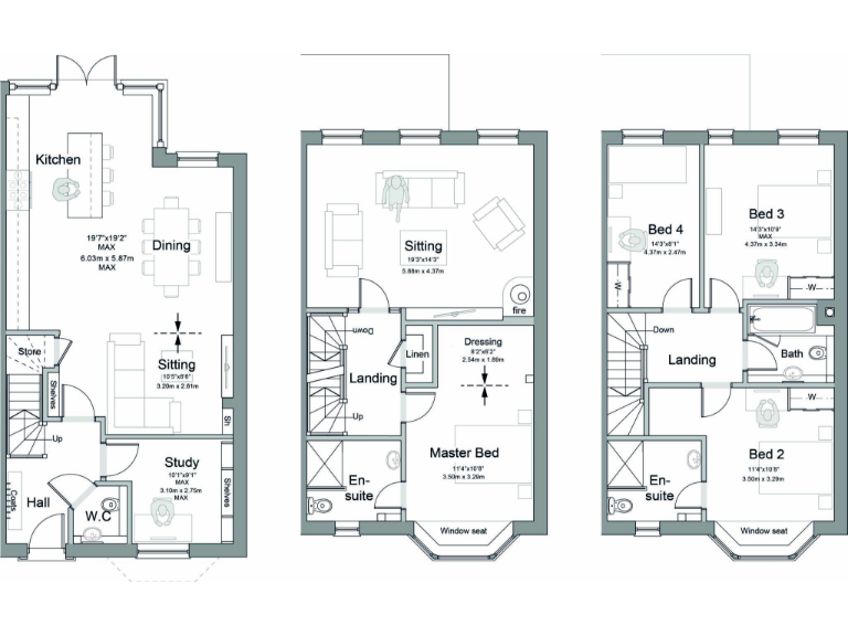
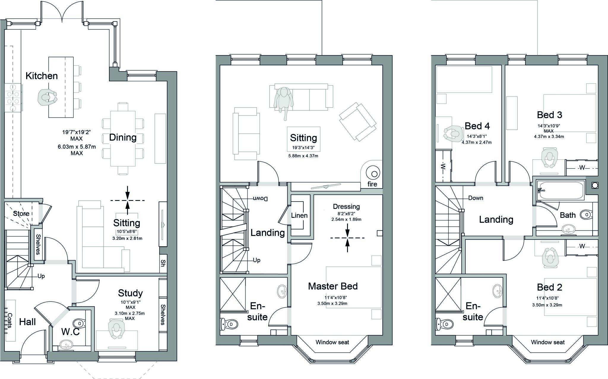
New-build four-bedroom townhouse over three storeys
This newly built four-bedroom end-of-terrace townhouse offers generous, flexible living across three floors in the heart of Bury St Edmunds. The ground floor opens to a large kitchen/dining/sitting area with engineered oak floors and built-in Bosch appliances; a utility room and separate study add practical everyday convenience. Two parking spaces and EV charger ducting are provided, and a private rear garden finished with natural stone patio and 1.8m fencing gives secure outdoor space.

The first floor features a spacious sitting room and a principal bedroom with dressing room and en suite; a second double also has an en suite, with two further bedrooms and a family bathroom on the top floor. Comfort and efficiency are addressed by underfloor heating to the ground floor, thermostatic radiators above, double glazing and a 10-year building warranty. The specification includes premium sanitaryware, Silestone/granite worktops and integrated LED lighting.

This home suits families who value room to grow, good local schools and convenient parking. The development sits in a very affluent, self-sufficient area with fast broadband and excellent mobile signal, and nearby green spaces and amenities. The property is freehold and presented ready to move into, with contemporary finishes throughout.

Important considerations: the development has a management charge for communal areas (details to be confirmed), and local crime levels are above the national average. Council tax band is not yet confirmed. Prospective buyers should factor these running costs into their budget.

Property Details

Brochure Descriptions

Image Descriptions

Floorplan Description

Rooms

Textual Property Features

Target Audience

AI Tags

Detected Visual Features

Nearby Schools

Nearest Bars And Restaurants

,,,,}

Nearest General Shops

,,}

Nearest Grocery shops

,,}

Nearest Supermarkets

,,}

Nearest Religious buildings

,,}

Nearest Medical buildings

,,,}

Nearest Leisure Facilities

,,,,}

Nearest Tourist attractions

,,}

Nearest Train stations

,,,,}

Nearest Bus stations and stops

,,,,}

Nearest Hotels

,,}

Tags

Local Market Stats

AirBnB Data

Similar Properties

Meta

High Res Images

Compatible Images

Low res Images

Thumbnails

Raw Images

High Res Floorplan Images

Compatible Floorplan Images

Low res Floorplan Images

FloorplanImages Thumbnail

Raw Floorplan Images