Modern open-plan living with parking and EV charging for practical everyday life.
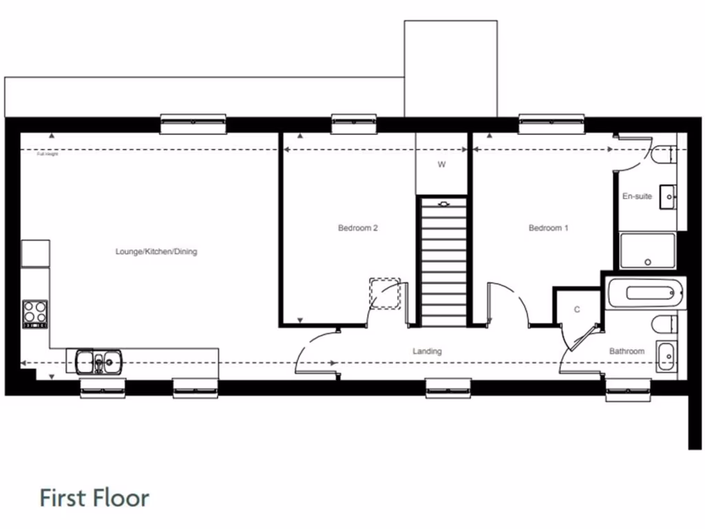
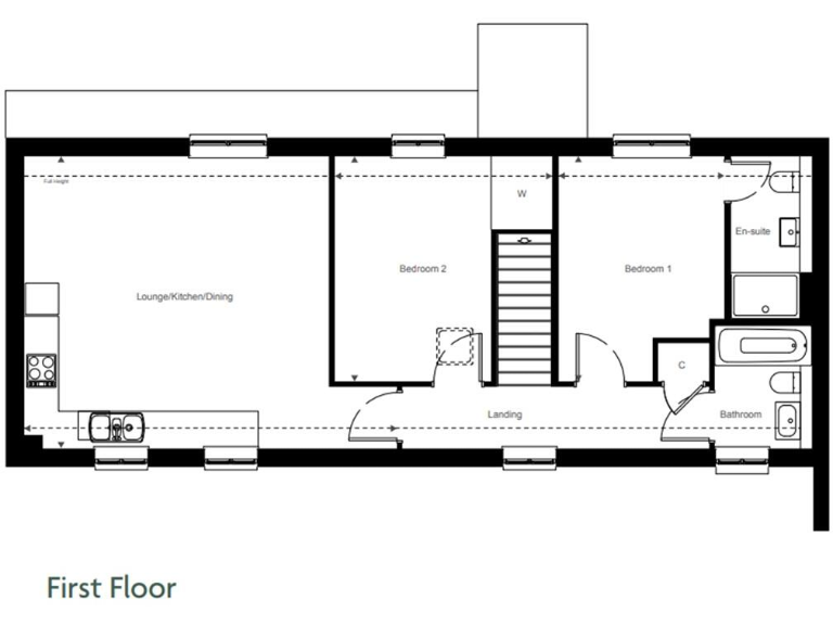
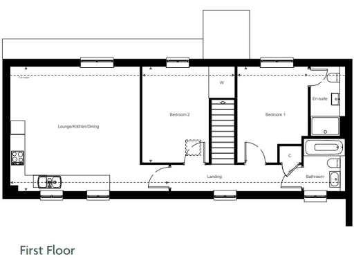
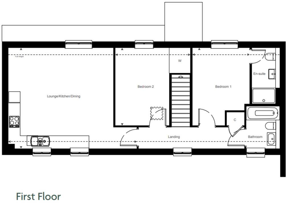
Two double bedrooms with en-suite to principal bedroom
Bright and efficiently laid out, this two-double-bedroom coach house offers contemporary open-plan living across 802 sq ft. The kitchen/dining/living room opens to a Juliet balcony, bringing light into the principal living space and creating a useful indoor–outdoor feel. The principal bedroom benefits from an en-suite; the family bathroom and en-suite both have electric underfloor heating for added comfort.
Practical features include allocated parking, a car port and an EV charging point — useful for commuters or electric vehicle owners. The property is freehold and comes with a below-average estimated service charge of £354.18 per year covering communal maintenance. Finishes are described as high quality and largely included.
Buyers should note the home’s main heating is electric storage heaters, which can be less economical than gas heating. Prospective purchasers are advised to verify details around services, appliances and measurements; images may be indicative of finishes rather than the exact plot. Overall, this coach house will suit first-time buyers looking for a low-maintenance, modern home with parking and EV provision in a quiet, semi-rural setting.
3 bedroom detached house for sale in Daggons Road, Alderholt, Fordingbridge, SP6 — £460,000 • 3 bed • 1 bath • 1122 ft²
2 bedroom end of terrace house for sale in Daggons Road, Alderholt, Fordingbridge, SP6 — £335,000 • 2 bed • 1 bath • 774 ft²
2 bedroom coach house for sale in Daggons Road,
Alderholt,
Fordingbridge,
Dorset,
SP6 3AA, SP6 — £325,000 • 2 bed • 2 bath • 802 ft²
4 bedroom end of terrace house for sale in Daggons Road, Alderholt, Fordingbridge, SP6 — £460,000 • 4 bed • 1 bath • 1317 ft²
2 bedroom semi-detached house for sale in Ringwood Road, Alderholt, Fordingbridge, SP6 — £370,000 • 2 bed • 2 bath • 740 ft²
1 bedroom apartment for sale in Daggons Road, Alderholt, Fordingbridge, SP6 — £225,000 • 1 bed • 1 bath • 567 ft²






























































