Conservatory, garage and garden — ready for modernisation and family life.
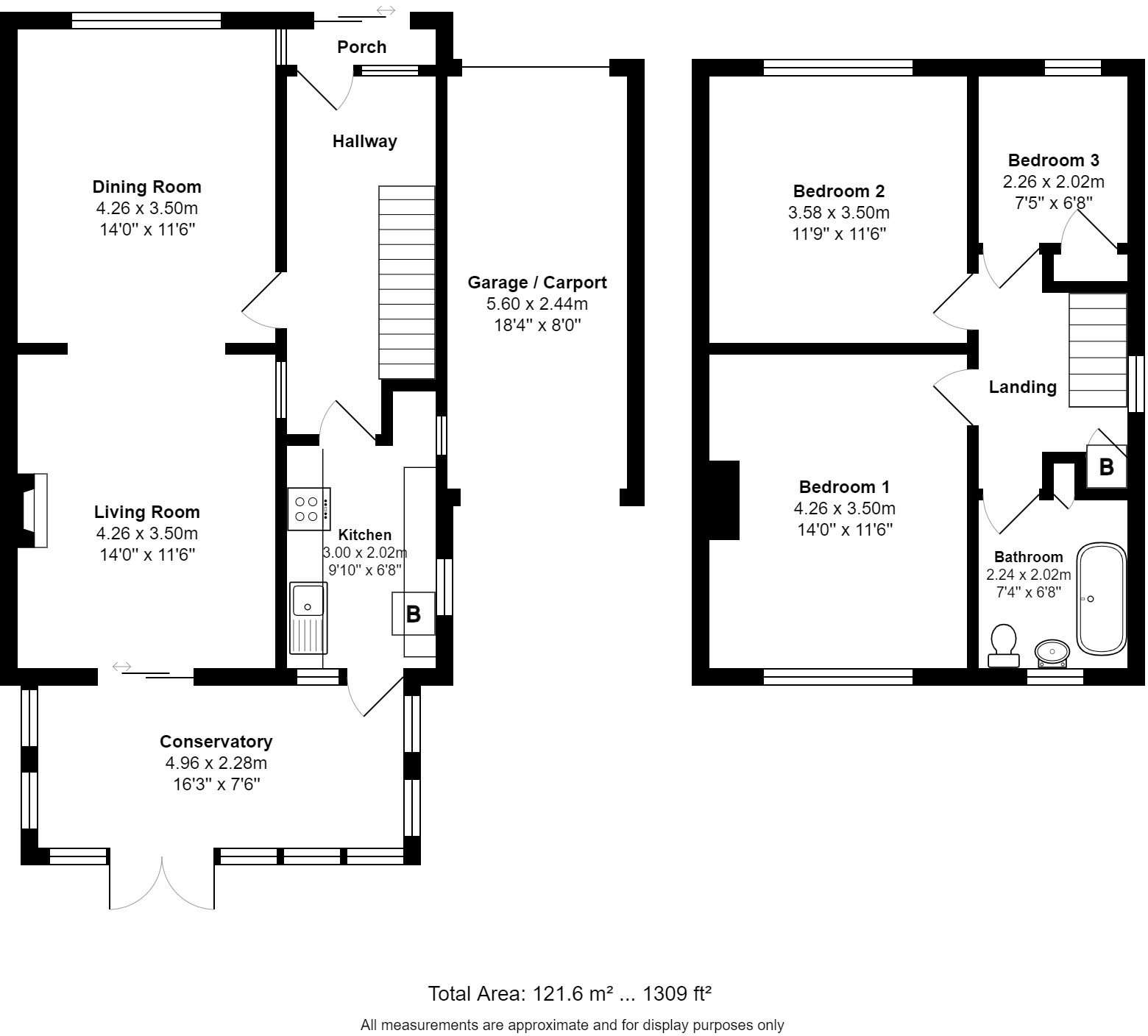
1,309 sq ft of living space across two storeys
A spacious three-bedroom semi-detached family home offering 1,309 sq ft of versatile living space in Wymering. Ground floor reception rooms flow through to a 16' conservatory that opens onto an enclosed rear garden — ideal for children and outdoor entertaining. The property includes off-road parking and an attached garage/carport for secure storage and vehicle space.
The layout is well-suited to family life: separate dining and living rooms, a galley kitchen, three first-floor bedrooms and a single family bathroom. Practical updates are already in place, including double glazing installed after 2002 and a wall-mounted Worcester combi boiler (not tested) supplying heating and hot water.
The house offers clear potential for improvement and modernisation, particularly in the kitchen and general decor, making it a good prospect for buyers wanting to add value. It is chain free and freehold, which should simplify a prompt move.
Be candid about location factors: the local area shows signs of deprivation and recorded crime is above average. However, the property benefits from fast broadband and excellent mobile signal, nearby schools with mixed Ofsted outcomes, and good transport links — practical strengths for working families.
3 bedroom semi-detached house for sale in Winterhill Road, Portsmouth, PO6 — £339,995 • 3 bed • 1 bath • 980 ft²
3 bedroom semi-detached house for sale in Wymering Manor Close, Cosham, PO6 — £315,000 • 3 bed • 1 bath • 1164 ft²
3 bedroom semi-detached house for sale in Drayton, Hampshire, PO6 — £385,000 • 3 bed • 1 bath • 1033 ft²
3 bedroom terraced house for sale in Langstone Road, Portsmouth, Hampshire, PO3 — £275,000 • 3 bed • 1 bath • 936 ft²
3 bedroom semi-detached house for sale in Peterborough Road, Wymering, Portsmouth, Hampshire, PO6 3LB, PO6 — £275,000 • 3 bed • 1 bath • 340 ft²
3 bedroom semi-detached house for sale in Cosham, Hampshire, PO6 — £470,000 • 3 bed • 1 bath • 1501 ft²






































































