Spacious village property with large garden and double garage.
Four double bedrooms, principal bedroom with four‑piece ensuite
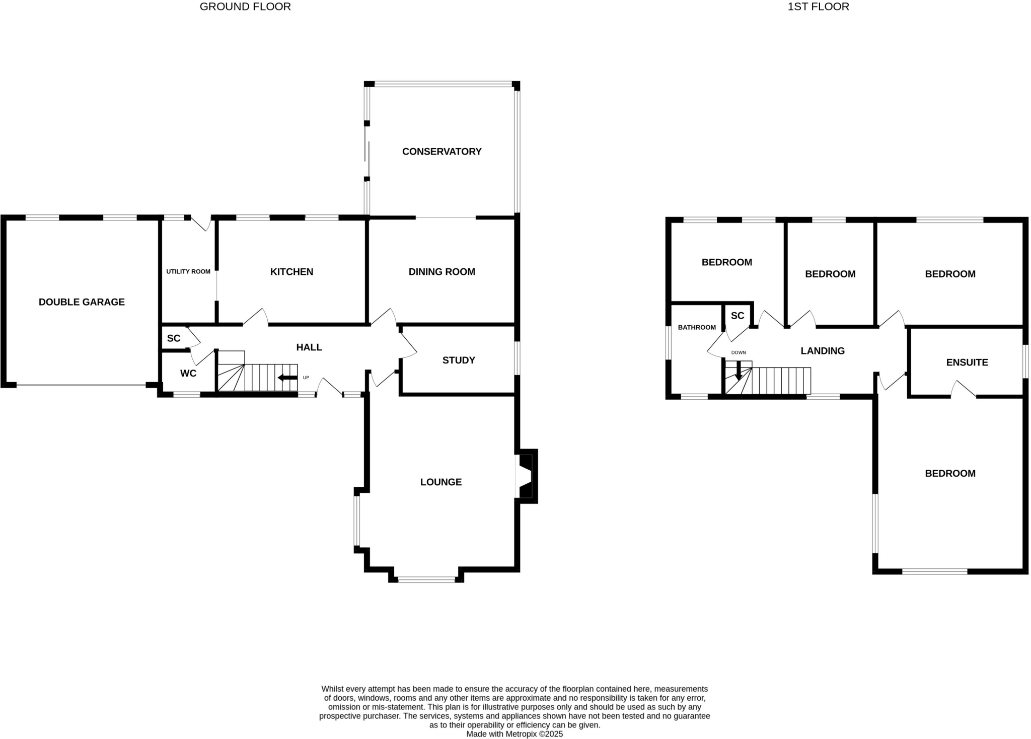
Set on a substantial, established plot in a quiet village lane, this detached executive home is arranged over two floors for comfortable family living. The ground floor offers four reception rooms — including an 18ft lounge with fireplace, separate dining room, study and conservatory — plus a kitchen/breakfast room, utility and cloakroom. Upstairs are four double bedrooms, the principal bedroom with an 18ft footprint and a four-piece ensuite.
Outside, the mature, level gardens provide private lawn and paved entertaining areas, a useful shed/office with power, and gated side access. A double garage and wide block‑paved driveway give plentiful parking for several vehicles. The property is offered with no upward chain and sits close to Biggleswade’s services and station, yet retains a rural, family-oriented feel.
Buyers should note the house is oil‑fired with a boiler and radiators and currently holds an EPC rating of D. Medium‑term energy efficiency improvements (insulation, heating upgrades) could reduce running costs and increase the property’s rating. Council tax is described as quite expensive, which may affect household budgets.
Overall this is a large, well-proportioned family home with flexible reception space and strong outdoor amenity. It will suit families seeking generous living space in a prosperous countryside setting but who are prepared to consider modest energy/maintenance investments over time.
4 bedroom detached house for sale in Darwin Drive, Biggleswade, SG18 — £550,000 • 4 bed • 2 bath • 1213 ft²
4 bedroom detached house for sale in Jasmine Close, Biggleswade, SG18 — £700,000 • 4 bed • 2 bath • 1648 ft²
4 bedroom detached house for sale in Mountbatten Drive, Biggleswade, SG18 — £588,000 • 4 bed • 2 bath • 1500 ft²
4 bedroom detached house for sale in London Road, Biggleswade, SG18 — £900,000 • 4 bed • 2 bath • 1641 ft²
3 bedroom detached house for sale in Church Road, Westoning, MK45 — £550,000 • 3 bed • 2 bath • 1778 ft²
4 bedroom detached house for sale in Pertenhall Road, Keysoe, Bedford, MK44 — £575,000 • 4 bed • 2 bath • 1350 ft²














































































