Shared ownership two-bed bungalow with garden and two parking spaces ideal for downsizers.
40% shared-ownership purchase option — 40% share priced at £118,000
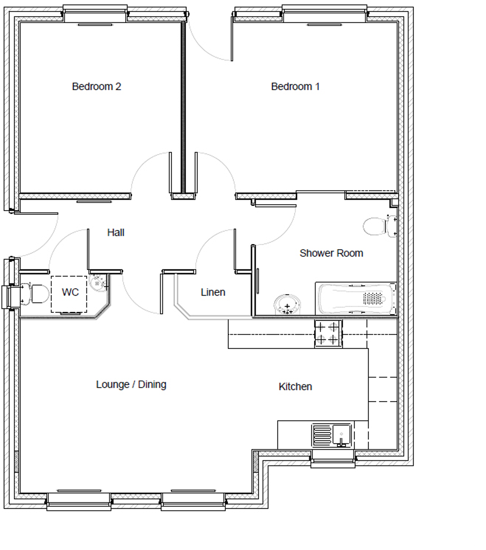
This two-bedroom semi-detached bungalow on Grace Farrant Road is offered as a shared-ownership 40% purchase, making homeownership more accessible for first-time buyers. The property provides single-storey living with an average overall size (approximately 807 sq ft), a south-facing garden, and allocated parking for two cars — practical for everyday convenience.
The layout is traditional and straightforward: a spacious lounge, kitchen, two double bedrooms, a separate WC and one bathroom. Heating is by gas boiler and radiators; broadband and mobile signal are both good, and the area records low crime and no flood risk, which supports comfortable, secure living.
Important financial details: the 40% share price is £118,000 (full market value £295,000). Monthly payments for the remaining 60% take the form of rent (£421.03) plus a service charge of £30.87. The property is leasehold with 92 years remaining — buyers should factor lease length, ongoing rent, and service charge into long-term affordability and resale plans.
Nearby schools include several rated Good, and local amenities such as buses and leisure facilities are within reach. The bungalow suits buyers seeking single-level living and lower entry-cost ownership, but those wanting a mortgage on a full freehold purchase or who need long lease security should consider the shared-ownership constraints carefully.
2 bedroom semi-detached house for sale in Mulberry gardens, Sudbury, Suffolk, CO10 — £100,000 • 2 bed • 1 bath • 748 ft²
2 bedroom semi-detached house for sale in Sails Way, Hadleigh, Ipswich, IP7 — £217,500 • 2 bed • 1 bath • 861 ft²
2 bedroom semi-detached house for sale in Sails Way, Hadleigh, Ipswich, IP7 — £116,000 • 2 bed • 1 bath • 861 ft²
2 bedroom semi-detached house for sale in Sails Way, Hadleigh, Ipswich, IP7 — £145,000 • 2 bed • 1 bath • 861 ft²
2 bedroom bungalow for sale in Cornard Road, Sudbury, Suffolk, CO10 — £154,000 • 2 bed • 1 bath • 645 ft²
2 bedroom semi-detached house for sale in Blythe Close, Acton, Sudbury, CO10 — £210,000 • 2 bed • 1 bath • 744 ft²






















































































































