Single-floor, low-maintenance home close to shops and riverside walks.
Chain free detached bungalow with single-floor living
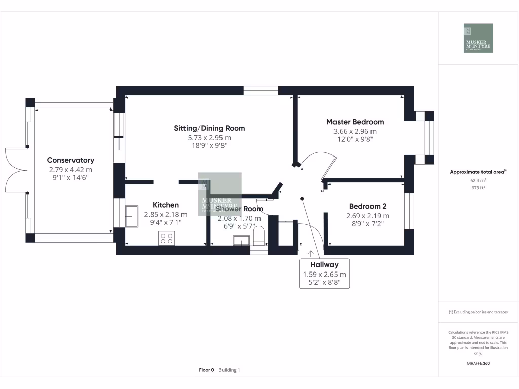
18 ft sitting/dining room plus 15 ft conservatory
Two double bedrooms; master with bay window and built-ins
Garage, shingle driveway parking for 3–4 cars
Private rear garden with mature shrubs and paved seating areas
Kitchen and bathroom dated; likely need modernisation
Electric storage heating; EPC rating E
Plot and accommodation modest—best for downsizers or small families
This chain-free, two-bedroom detached bungalow offers comfortable single-level living in a quiet cul-de-sac just a short walk from Loddon’s village amenities. The layout is practical: a large 18 ft sitting/dining room, 15 ft conservatory overlooking a private rear garden, two double bedrooms and a garage with driveway parking. The property is presented in generally good decorative order and suits buyers seeking low-maintenance, ground-floor accommodation.
The kitchen and shower room date from the 1980s/1990s and would benefit from updating for a modern finish; heating is by electric storage radiators and the EPC is E. The conservatory and well-enclosed rear garden provide pleasant outdoor space and easy entertaining potential, while the driveway offers space for several cars and attic-style storage in the garage.
This home will appeal to downsizers or retirees looking for a manageable, single-storey property in a self-sufficient village setting with fast broadband and good mobile signal. Investors seeking a low-upkeep rental in a popular market town fringe might also consider this, though modernisation of kitchen and bathroom should be budgeted for. Overall, it’s a practical, accessible bungalow with scope to add value through modest refurbishment.
2 bedroom detached bungalow for sale in Cannell Road, Loddon, Norwich, NR14 — £250,000 • 2 bed • 1 bath • 618 ft²
2 bedroom bungalow for sale in Cannell Road, Loddon, Norwich, Norfolk, NR14 — £220,000 • 2 bed • 1 bath • 788 ft²
2 bedroom semi-detached bungalow for sale in Wood End Close, Hales, Norwich, NR14 — £210,000 • 2 bed • 1 bath • 462 ft²
2 bedroom semi-detached house for sale in Low Bungay Road, Loddon, NR14 — £225,000 • 2 bed • 1 bath • 671 ft²
3 bedroom detached bungalow for sale in Norwich Road, Chedgrave, Norwich, NR14 — £400,000 • 3 bed • 2 bath • 1245 ft²
2 bedroom detached bungalow for sale in Rider Haggard Way, Ditchingham, Bungay, NR35 — £240,000 • 2 bed • 1 bath • 1046 ft²






















































