Compact detached home near Felixstowe beach, ideal for first-time buyers or small families.
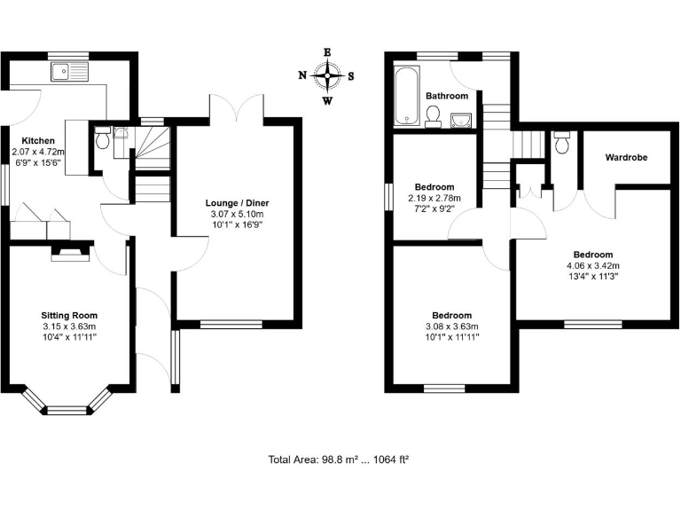
Three bedrooms with two reception rooms, approximately 1,064 sq ft
A charming three-bedroom detached cottage positioned on an elevated plot within easy walking distance of Felixstowe seafront and town centre. The house offers two reception rooms, a modern-fitted kitchen and a courtyard-style rear garden with useful garden sheds — a cosy, manageable layout for a small family or a first-time buyer seeking seaside living.
The property benefits from gas central heating and uPVC double glazing, and the rooms are a mix of medium and smaller sizes across approximately 1,064 sq ft. Practicalities to note: parking is available opposite by permit only, the plot is small and approached by a flight of steps, and there is a single family bathroom on the first floor.
This home sits in a mixed, transitional neighbourhood with above-average local crime levels and higher area deprivation than average. The solid cavity walls are likely uninsulated and the double glazing appears to pre-date 2002, so buyers should budget for energy-efficiency improvements and possible cosmetic updating if desired.
Overall this property is well suited to buyers who value proximity to the beach and compact, low-maintenance outdoor space. It also presents potential for improvement work that could increase comfort and value; purchasers should consider long-term upgrade costs and local parking arrangements.
4 bedroom terraced house for sale in Cavendish Road, Felixstowe, IP11 — £225,000 • 4 bed • 1 bath • 1493 ft²
3 bedroom detached house for sale in St. Edmunds Road, Felixstowe, IP11 — £425,000 • 3 bed • 2 bath • 1487 ft²
3 bedroom detached house for sale in Garrison Lane, Felixstowe, IP11 — £425,000 • 3 bed • 2 bath • 1582 ft²
3 bedroom semi-detached house for sale in Barton Road, Felixstowe, IP11 — £350,000 • 3 bed • 1 bath • 1051 ft²
4 bedroom semi-detached house for sale in Bacton Road, Felixstowe, IP11 — £410,000 • 4 bed • 2 bath • 1271 ft²
3 bedroom semi-detached house for sale in Seaton Road, Felixstowe, IP11 — £249,950 • 3 bed • 1 bath • 806 ft²














































































