Three-bedroom, modern townhome with private garden and secure parking..
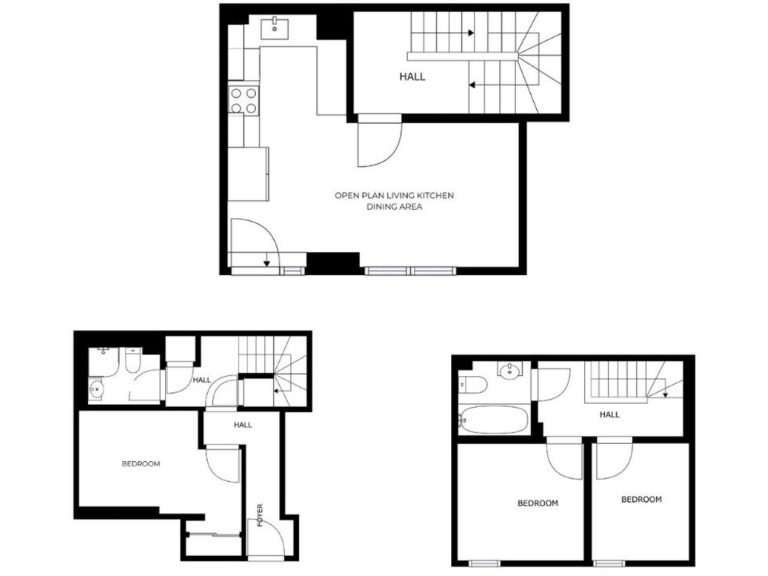
Three-storey, three-bedroom layout — flexible family or sharer accommodation
Open-plan lounge and fitted kitchen — bright, social ground-floor living
Private garden plus communal courtyard with decking and Astroturf
Allocated secure parking space in gated garage — practical city convenience
Leasehold: 114 years remaining — long lease but not freehold
Service charge ~£1,900pa; ground rent ~£383pa — regular ownership costs
Area flagged as deprived with higher crime rates — location concern
Community heating scheme; check provider and running costs
Step into a spacious three-storey home in the Wheatsheaf Building, a modern multi-level apartment offering practical city living close to Leicester city centre. The open-plan lounge and fitted kitchen create a bright social hub, while three bedrooms give genuine flexibility for a young family, home office or sharer living. A private garden and communal courtyard extend the living space outdoors.
Practical running costs are clear: the property is leasehold with 114 years remaining, an average service charge of £1,900 and ground rent around £383. Heating is via a community scheme; windows are double glazed and the EPC is rated C. The property includes an allocated secure garage parking space — a rare convenience in central locations.
Be candid about location: the area scores as deprived with higher crime levels than average, and local amenity provision is largely geared to private renting and new arrivals. However, the property sits close to Welford Road and Queens Road services with good transport links and fast broadband, making it suitable for commuting and city living.
For a first-time buyer or investor seeking a well-presented, low-maintenance urban home, this apartment offers immediate use or straightforward letting potential. Note the ongoing service and ground rent commitments and factor these into budgeting alongside the affordable council tax banding.
1 bedroom flat for sale in Wheatsheaf Way, Knighton Fields, Leicester, LE2 — £155,000 • 1 bed • 1 bath • 743 ft²
3 bedroom maisonette for sale in Wheatsheaf Way, Knighton Fields, Leicester, LE2 — £305,000 • 3 bed • 2 bath • 1485 ft²
2 bedroom town house for sale in Wheatsheaf Court, Knighton Fields, Leicester, LE2 — £190,000 • 2 bed • 2 bath • 883 ft²
1 bedroom flat for sale in Cowper Street, Knighton Fields, LE2 — £140,000 • 1 bed • 1 bath • 549 ft²
1 bedroom apartment for sale in Wheatsheaf Way, Knighton Fields, Leicester, LE2 — £180,000 • 1 bed • 1 bath • 581 ft²
1 bedroom flat for sale in Wheatsheaf Way, Knighton Fields, Leicester, LE2 — £140,000 • 1 bed • 1 bath • 506 ft²


























































































































































