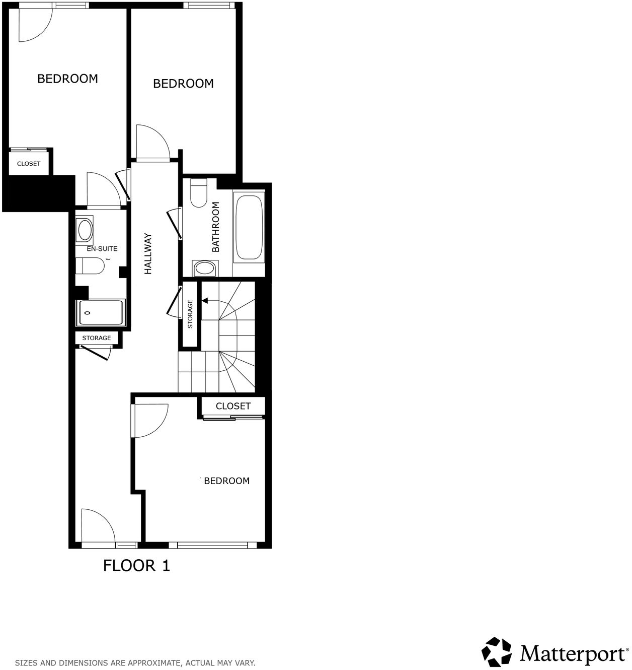
Industrial-style three-bed maisonette with mezzanine and two parking spaces.
Three bedrooms, main with en-suite
Set within the landmark Wheatsheaf Works conversion, this three-bedroom maisonette delivers loft-style living with striking industrial character. Dual-height ceilings, sand-blasted brickwork and large windows create a light, airy living room with a mezzanine that works well as a study or extra seating area. The open-plan dining kitchen offers practical fitted units and integrated appliances for everyday use.
Practical features include an en-suite main bedroom, a contemporary family bathroom, air-source heating with partial underfloor heating, and allocated parking for two vehicles. Low-maintenance front and rear gardens suit buyers who prefer minimal outdoor upkeep. The property sits close to University of Leicester, both major hospitals and the cafés and shops of Queens Road and Clarendon Park.
Important facts and constraints: the home is leasehold with 112 years remaining, a below-average service charge of £150, but a comparatively high ground rent of £1,100. External garden areas are small to modest, and the immediate neighbourhood records higher crime and area deprivation levels, which may concern some buyers. Overall, this is a characterful, mid-sized urban home suited to first-time buyers or professionals seeking city-edge living with low-external-maintenance outdoor space.
3 bedroom apartment for sale in Wheatsheaf Court, Knighton Fields, Leicester, LE2 — £200,000 • 3 bed • 2 bath • 861 ft²
1 bedroom apartment for sale in Wheatsheaf Way, Knighton Fields, Leicester, LE2 — £180,000 • 1 bed • 1 bath • 581 ft²
2 bedroom apartment for sale in Wheatsheaf Works, Wheatsheaf Way, Knighton Fields, Leicester, LE2 — £190,000 • 2 bed • 1 bath • 1001 ft²
4 bedroom town house for sale in Wheatsheaf Court, Knighton Fields, Leicester, LE2 — £240,000 • 4 bed • 2 bath • 1141 ft²
1 bedroom flat for sale in Wheatsheaf Way, Knighton Fields, Leicester, LE2 — £155,000 • 1 bed • 1 bath • 743 ft²
1 bedroom flat for sale in Cowper Street, Knighton Fields, LE2 — £140,000 • 1 bed • 1 bath • 549 ft²










































































































