WD19 5EE - 3 bed spacious detached bungalow in Watford, WD19 5EE

View on Property Piper

3 bedroom detached bungalow for sale in Alva Way, Watford, Hertfordshire, WD19

Summary - 41 Alva Way,WATFORD,WD19 5EE WD19 5EE

3 bed 1 bath Detached Bungalow

Single-storey home on a large plot with garage and strong renovation potential.
Freehold detached bungalow with no upper chain
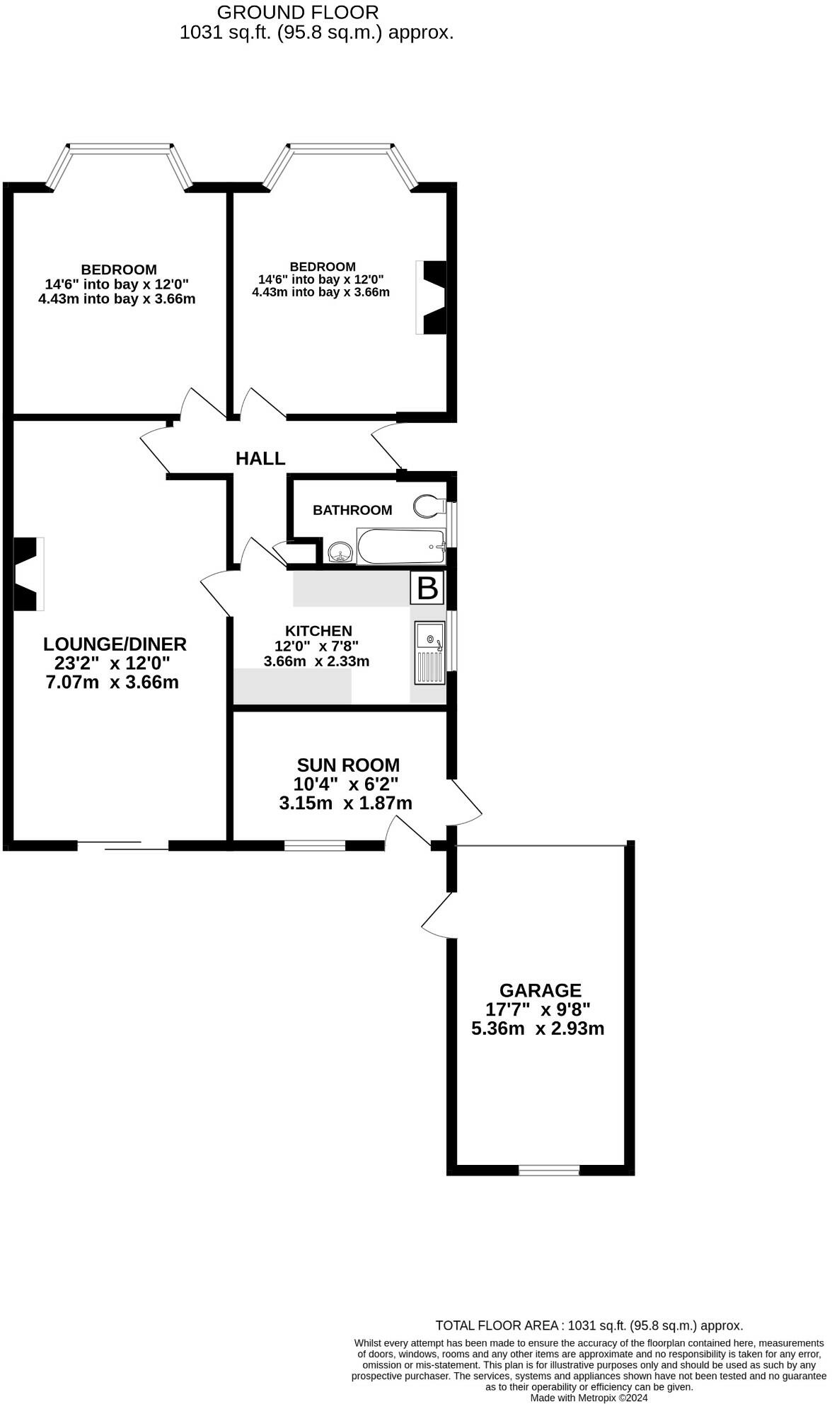
A detached, mid-century bungalow on a large plot in WD19, offered with no upper chain and freehold tenure. The single-storey layout includes a dual-aspect kitchen, conservatory, lounge with patio doors, three bedrooms (one currently used as a dining room) and a single bathroom — well suited to downsizers or families who value ground-floor living. The property benefits from gas central heating, UPVC double glazing, private driveway parking for two cars and a concrete garage with side access.

The house sits on an approximately 80ft rear garden and offers clear potential for modernisation and extension (subject to planning). Room proportions are comfortable (about 1,031 sq ft total) with two large front bay bedrooms and a flexible third room off the lounge. Practical positives include mains utilities, very low local crime, excellent mobile signal and fast broadband — useful for home working.

Buyers should note the bungalow is dated and will need updating: interiors show mid-20th-century fittings and decorative maintenance is required throughout. There is only one bathroom, and some rooms would benefit from refurbishment to meet contemporary standards. Council Tax Band E is above average for the area and should be factored into running costs.

Located close to several well-rated primary schools (including an Outstanding option) and local amenities, this home will appeal to purchasers seeking a private, ground-floor property with a large garden and scope to add value through refurbishment or reconfiguration.

Property Details

Image Descriptions

Floorplan Description

Rooms

Textual Property Features

Target Audience

AI Tags

Detected Visual Features

Nearby Schools

Nearest Bars And Restaurants

,,,,}

Nearest General Shops

,,}

Nearest Grocery shops

,,}

Nearest Supermarkets

,,}

Nearest Religious buildings

,,}

Nearest Medical buildings

,,,}

Nearest Airports

}

Nearest Leisure Facilities

,,,,}

Nearest Tourist attractions

,,}

Nearest Train stations

,,,,}

Nearest Bus stations and stops

,,,,}

Nearest Hotels

,,}

Tags

Local Market Stats

AirBnB Data

Similar Properties

Meta

High Res Images

Compatible Images

Low res Images

Thumbnails

Raw Images

High Res Floorplan Images

Compatible Floorplan Images

Low res Floorplan Images

FloorplanImages Thumbnail

Raw Floorplan Images