Single‑level living with large garden, 4‑car parking and garage.
Freehold detached bungalow on a large 90ft-plus rear garden
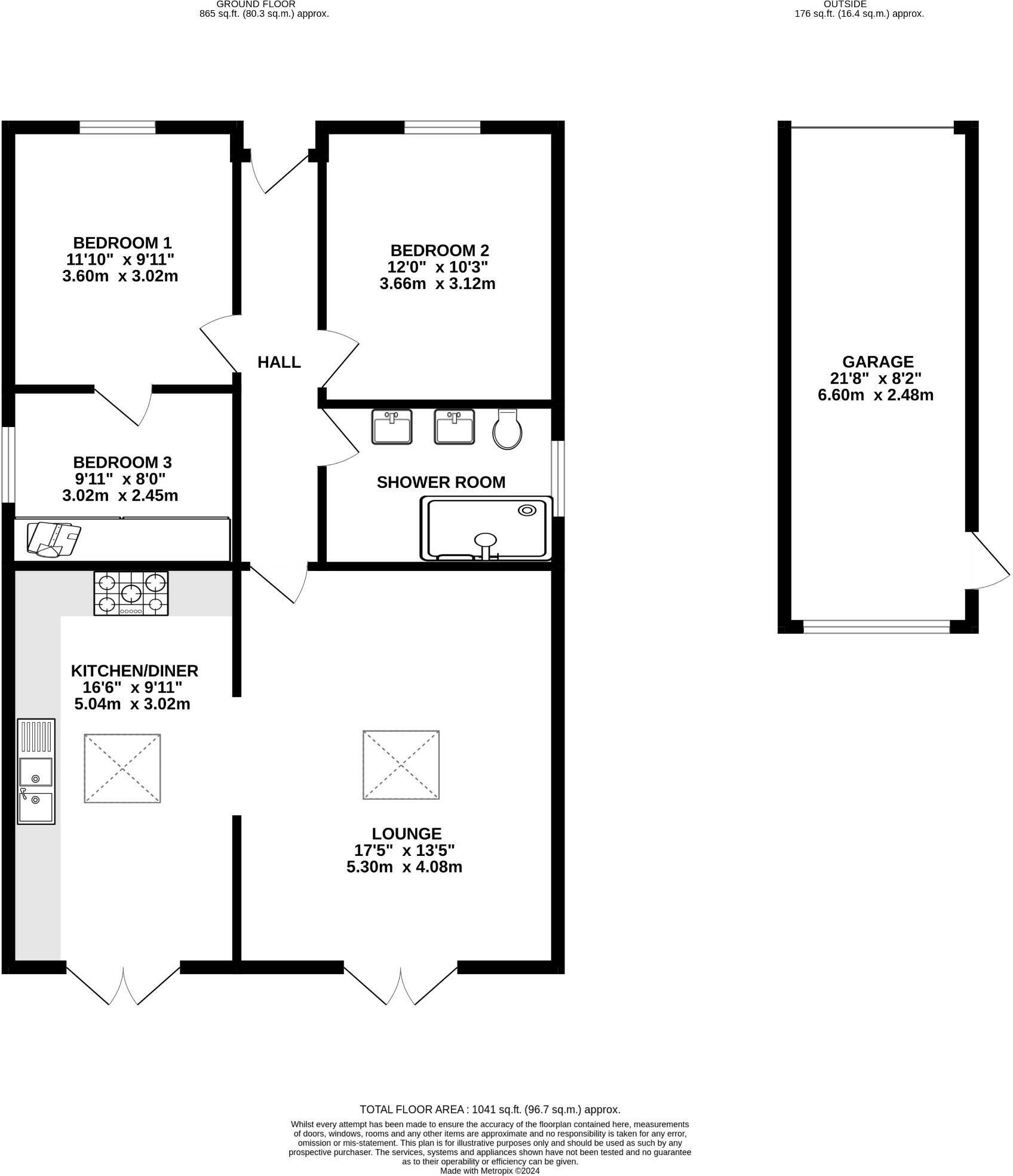
A stylish three-bedroom detached bungalow set on a generous plot in WD19, well suited to families and downsizers who prioritise single-level living. The property has been tastefully updated with a modern kitchen/breakfast room, a striking contemporary bathroom and bright, well-proportioned principal rooms including a 17'4" x 13'5" lounge with skylight and doors onto the deck and garden. Practical features include UPVC double glazing, gas central heating and FTTP broadband.
Outside, the plot is a standout: a wide tapering rear garden of approximately 90ft with substantial decking, lawn and mature shrub borders, plus brick‑block hardstanding providing parking for four cars and a long garage with power and light. The bungalow also benefits from good disability access via a ramp to the rear decking — useful for mobility needs or future-proofing.
Buyers should note a few material points: the house has a single bathroom and an EPC rating of D, which may be relevant for long-term running costs and upgrade planning. Council Tax Band E and a local crime level described as above average are factual considerations for budgeting and security. The property is freehold and located in an affluent suburb with excellent broadband and mobile signal, close to well-regarded primary and secondary schools and local amenities.
Overall, this is a comfortable, well-presented bungalow offering immediate move-in potential, strong outdoor space and flexible parking — especially appealing to downsizers, growing families seeking single-level accommodation, or buyers seeking a property with scope to personalise and improve energy performance.
3 bedroom semi-detached bungalow for sale in Harrow Way, Watford, Hertfordshire, WD19 — £500,000 • 3 bed • 1 bath • 697 ft²
3 bedroom detached bungalow for sale in Alva Way, Watford, Hertfordshire, WD19 — £500,000 • 3 bed • 1 bath • 1031 ft²
2 bedroom semi-detached bungalow for sale in Harrow Way, Watford, Hertfordshire, WD19 — £510,000 • 2 bed • 1 bath • 1708 ft²
3 bedroom semi-detached bungalow for sale in Foxleys, Watford, Hertfordshire, WD19 — £583,000 • 3 bed • 1 bath • 905 ft²
3 bedroom detached bungalow for sale in Cassiobury Park Avenue, Watford, WD18 — £1,150,000 • 3 bed • 2 bath • 2229 ft²
2 bedroom semi-detached bungalow for sale in Harrow Way, Watford, Hertfordshire, WD19 — £500,000 • 2 bed • 1 bath • 868 ft²










































































