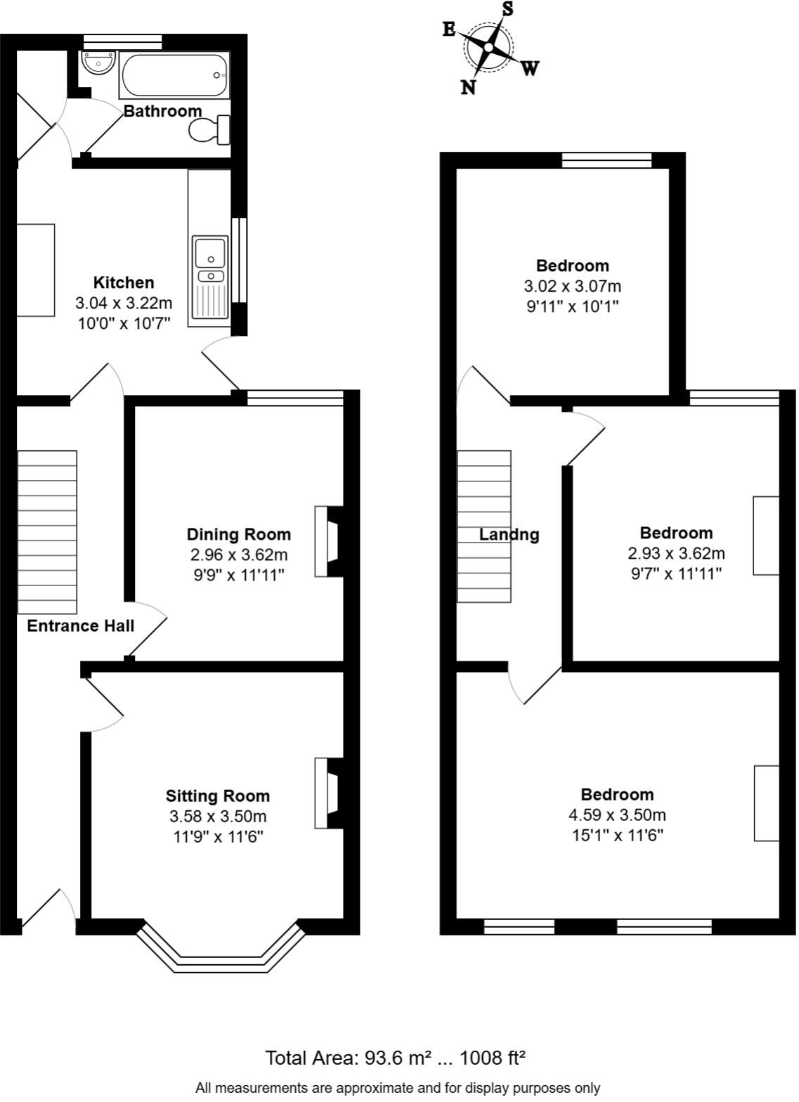
Three-bed Victorian needing modernisation, chain-free and close to town..
Three bedrooms and two reception rooms in Victorian layout
Set on Cornwall Road in central Felixstowe, this three-bedroom Victorian end-terrace offers a straightforward renovation project with no onward chain. The house retains period character — bay windows, a fireplace and high ceilings — and provides comfortable living space across two reception rooms and three bedrooms. An enclosed rear garden adds outdoor privacy and a useful storage or play area.
Located a few minutes’ walk from local shops, cafés and bus links, the property sits under a 15-minute walk from the town centre and is close to several primary and secondary schools rated Good. Mains gas heating, a boiler and radiators, plus available double glazing, give a practical starting point for upgrading comfort and efficiency.
This home requires modernisation throughout: cosmetic and likely mechanical updates are needed, and the solid brick walls are assumed to lack insulation. That makes the house well suited to first-time buyers or owner-occupiers wanting to add value, or investors seeking refurbishment potential. No significant flood risk and low local crime support long-term peace of mind.
4 bedroom terraced house for sale in Langer Road, Felixstowe, Suffolk, IP11 — £230,000 • 4 bed • 1 bath • 1208 ft²
3 bedroom end of terrace house for sale in King Street, Felixstowe, IP11 — £207,500 • 3 bed • 1 bath • 675 ft²
4 bedroom terraced house for sale in Cavendish Road, Felixstowe, IP11 — £225,000 • 4 bed • 1 bath • 1493 ft²
3 bedroom house for sale in Tacon Road, Felixstowe, IP11 — £259,950 • 3 bed • 1 bath • 958 ft²
3 bedroom house for sale in Graham Road, Felixstowe, IP11 — £249,995 • 3 bed • 1 bath • 754 ft²
2 bedroom end of terrace house for sale in Hamilton Street, Felixstowe, Suffolk, IP11 — £180,000 • 2 bed • 1 bath • 646 ft²


















































