Move-in ready three-bedroom end terrace — ideal first home or investment, no onward chain.
Three bedrooms; compact, well-proportioned layout
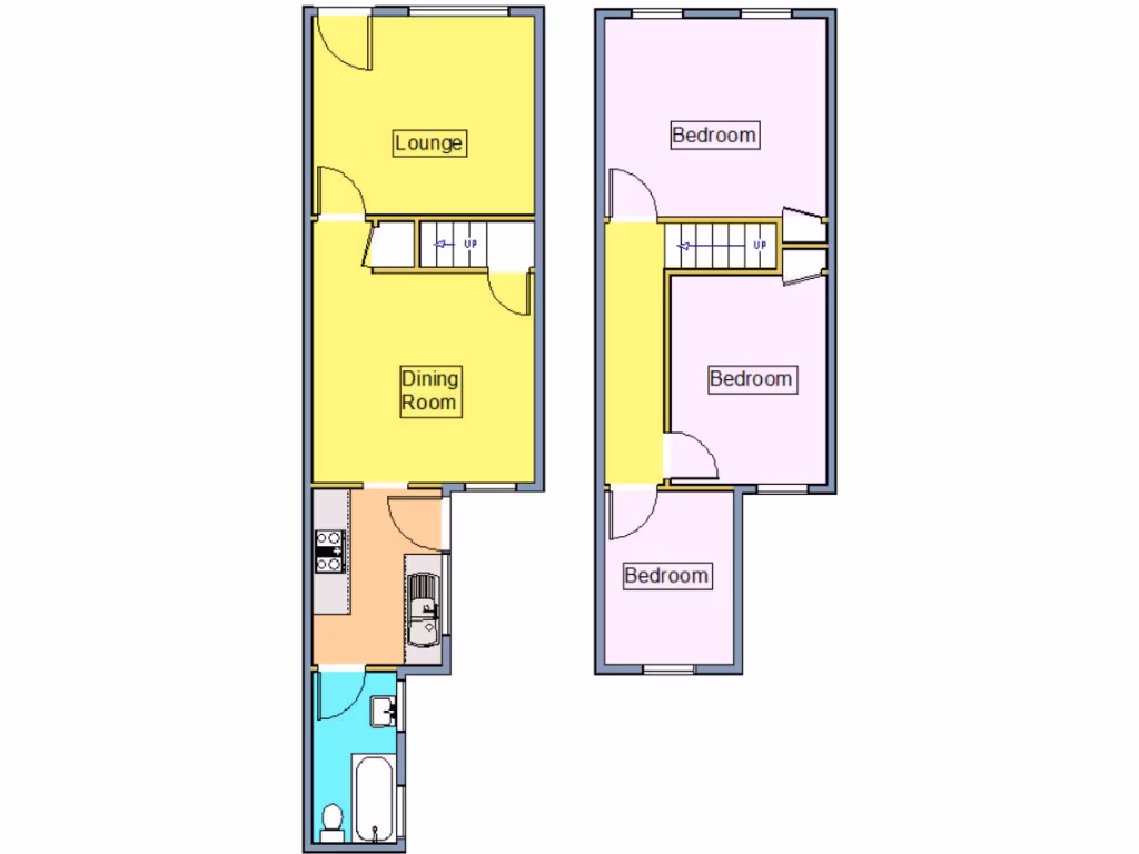
A recently modernised three-bedroom end-of-terrace presented ready to move into — ideal for a first-time buyer or buy-to-let investor. The ground floor offers two reception rooms for flexible living, while an updated kitchen and contemporary bathroom remove the need for immediate works. Comfort is provided by gas central heating and double glazing throughout.
The property sits on a small plot with a west-facing, recently landscaped rear garden and side access. Accommodation is compact (approximately 675 sq ft) but well laid out across two floors, with practical built-in storage and a useful under-stairs cupboard. Council Tax falls in low Band A, and the home is offered freehold with NO ONWARD CHAIN.
Location suits urban convenience: a short walk to local shops, services and schools. Broadband and mobile signals are strong, and there is no recorded flooding risk. Note the wider area scores as deprived and local crime is average, which may affect long-term appreciation compared with more affluent neighbourhoods.
This is a straightforward, low‑maintenance starter home or rental purchase. Room sizes are modest and parking is not specified (potential on-street or nearby), so viewers should check vehicle arrangements. Overall, a smart, move-in ready property with modest running costs and clear potential for future personalisation or rental income.
3 bedroom end of terrace house for sale in Runnacles Way, Felixstowe, IP11 — £255,000 • 3 bed • 1 bath • 754 ft²
3 bedroom terraced house for sale in Maidstone Road, Felixstowe, IP11 — £175,000 • 3 bed • 1 bath • 869 ft²
3 bedroom house for sale in Graham Road, Felixstowe, IP11 — £249,995 • 3 bed • 1 bath • 754 ft²
3 bedroom terraced house for sale in Felix Road, Felixstowe, IP11 — £350,000 • 3 bed • 2 bath • 768 ft²
3 bedroom terraced house for sale in Wentworth Drive, Felixstowe, IP11 — £310,000 • 3 bed • 1 bath • 894 ft²
2 bedroom terraced house for sale in Cage Lane, Felixstowe, IP11 — £215,000 • 2 bed • 1 bath • 695 ft²






















































