**Standout Features:**
- **Location**: Prominently situated on a busy corner close to Whittington Moor, ensuring high visibility and foot traffic.
- **Established Business**: Well-known café with a loyal customer base and excellent online reviews (4.7 stars on Google).
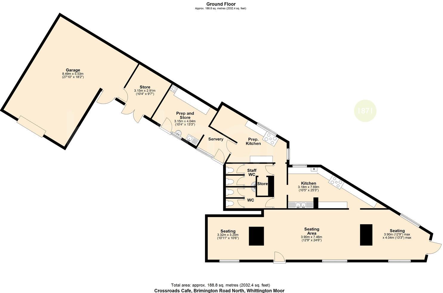
- **Spacious Premises**: Approximately 2,032 sq. ft. of versatile commercial space with indoor seating for 40-50 and an additional outdoor courtyard for 30-40 covers.
- **Modern Amenities**: Well-fitted kitchen with additional prep space, suitable for immediate operation.
- **Expansion Opportunities**: Potential to broaden the menu and operating hours, as well as expand courtyard seating or add delivery options.
**Potential Concerns:**
- **Renovation Needs**: Some areas may require modernization to increase appeal.
- **Crime Rate**: The surrounding area's crime rate is above average, which may factor into business decisions.
**Summary Description:**
This spacious commercial property presents a unique opportunity to own a well-established café in a prime location in Chesterfield, Derbyshire. The café, with its modern appeal and exceptional reputation, has thrived for over 22 years, benefitting from a loyal customer base and significant passing trade. Boasting around 2,032 sq. ft., it features a welcoming indoor layout and a charming courtyard that enhances its capacity for growth. With potential expansion in menu offerings, seating, and delivery service, the possibilities are vast for an ambitious entrepreneur.
While beneficial for operations, the need for some modernization and the area's above-average crime rate are factors to consider. However, this property is chain-free and ready for takeover, making it an excellent investment opportunity in the heart of an active community. Don’t miss your chance to seize this thriving business in a location ripe for continued success!
Commercial property for sale in Chatsworth Road, Chesterfield, S40 — £65,000 • 1 bed • 1 bath • 1248 ft²
Restaurant for sale in Leasehold Coffee House & Bistro, Chesterfield, Derbyshire, S40 1PB, S40 — £59,995 • 1 bed • 1 bath
Cafe for sale in Bradway Road, Sheffield, S17 — £165,000 • 1 bed • 1 bath • 1227 ft²
Cafe for sale in Cafe & Sandwich Bars, Derbyshire, S18 — £37,500 • 1 bed • 1 bath
Shop for sale in Broadleys, Clay Cross, Chesterfield, S45 — £350,000 • 2 bed • 1 bath • 4309 ft²
High street retail property for sale in Windermere Road, Newbold, Chesterfield, S41 — £125,000 • 1 bed • 1 bath • 613 ft²


























































































