Seaside mixed-use with holiday‑let potential and redevelopment upside.
Freehold mixed-use building — ground retail plus substantial two-floor flat
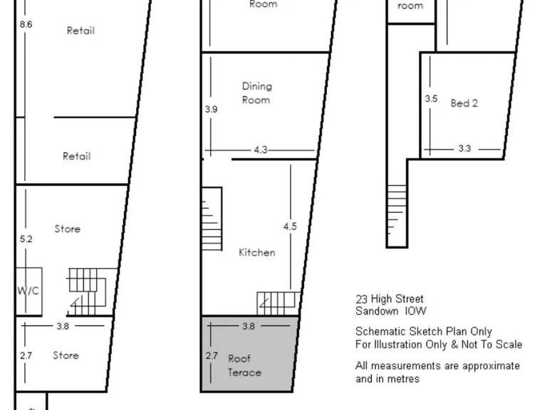
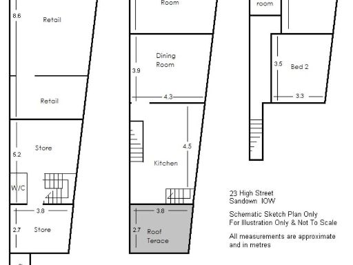
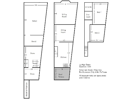
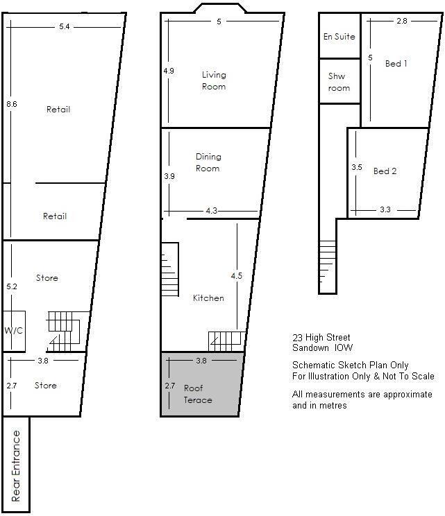
Retail area c.62 m² (667 ft²) with 5.4m high-street frontage
Flat c.126 m² (1,356 ft²); entire building c.2,023 ft²
Recently redecorated and newly renovated; façade due repainting
Rear entrance allows separate access for flat and retail
Strong seasonal footfall; potential peak holiday-let income ~£1,000/week
Area classified as deprived with high local crime — affects demand
No private garden; on-street parking only
This three-storey freehold on Sandown High Street combines a ground-floor retail unit with a generous two-floor flat above — a compact, income-focused seaside asset priced at £265,000. The ground floor offers c.62 m² (667 ft²) of retail space with a 5.4m frontage onto a busy pedestrianised high street, while the upper residential accommodation extends to c.126 m² (1,356 ft²). The whole building totals c.2,023 ft², recently redecorated and presented in good order.
The location is a clear strength: high seasonal footfall close to the pier, sandy beaches and multiple attractions, supporting both retail trade and short-term holiday lets. The vendor notes potential peak-season holiday-let income of around £1,000 per week and the flat has rear access so it could be independently let from the shop. A roof terrace off the kitchen is a practical future enhancement.
Buyers should weigh the market benefits against material drawbacks. The area is classified as deprived with a high local crime rate, which can affect long-term rental yields and tenant stability outside peak tourist months. The plot is compact with no private garden and parking is limited to on-street only. The façade is due to be repainted and rateable value for business rates is TBC (2025/26 multiplier noted at 55.5p).
High street retail property for sale in 15 High Street, Ventnor, Isle Of Wight, PO38 — £65,000 • 1 bed • 1 bath • 790 ft²
Commercial property for sale in Serendipity House, 2 Bedroom Flat + 2 x Retail Units, PO37 — £250,000 • 2 bed • 2 bath • 1156 ft²
7 bedroom town house for sale in Pier Street, Sandown, PO36 — £550,000 • 7 bed • 2 bath
Out-of-town retail property for sale in Newport Road, Ventnor, PO38 — £175,000 • 1 bed • 1 bath • 1272 ft²
5 bedroom mixed use property for sale in 25-27 Pier Street, Ventnor, Isle Of Wight, PO38 — £465,000 • 5 bed • 1 bath • 2980 ft²
High street retail property for sale in Clarendon Road, Shanklin, PO37 — £120,000 • 1 bed • 1 bath • 625 ft²










