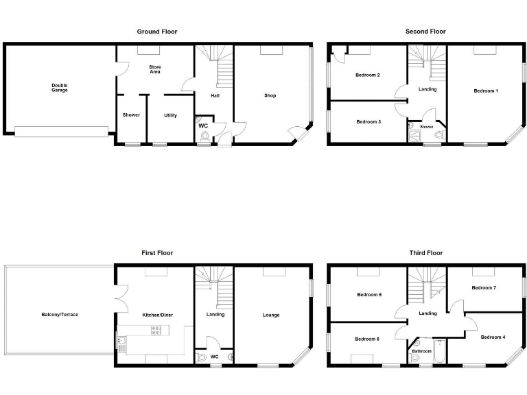
Seven bedrooms across upper floors, flexible residential accommodation
Superb sea views and sunny roof terrace close to the beach
Ground-floor lock-up shop currently let — rental potential
Double width garage with electric door and useful storage
Only two bathrooms for seven bedrooms — requires reconfiguration
Located in deprived area with higher-than-average local crime rate
Cavity walls likely uninsulated; may need thermal upgrades
Chain free sale; offered due to vendor retirement
An unusual four-storey Victorian town house with superb sea views and significant income potential. The building combines a lock-up shop, large double garage and seven upstairs bedrooms, creating options for continued mixed-use, holiday rental or conversion to a large family home.
Key strengths are the roof terrace with coastal outlook, generous principal reception rooms and original period features such as fireplaces, high ceilings and cornicing. The property is offered chain free and includes gas central heating and replacement uPVC double glazing, reducing immediate overheads.
Practical realities: the house sits in a deprived area with a higher-than-average crime rate, and the fabric likely lacks cavity wall insulation. There are only two bathrooms for seven bedrooms, so modernisation and reconfiguration will be needed if used as a single dwelling. The ground-floor shop is currently let; the tenant may remain or vacate, so read-across for rental income and vacant possession should be clarified.
This is a clear opportunity for an investor or buyer seeking a seaside mixed-use building with strong flexibility. Expect some refurbishment and updating costs, but those willing to invest can benefit from location, views and multiple revenue routes.
5 bedroom terraced house for sale in Melville Street, Sandown, Isle of Wight, PO36 — £350,000 • 5 bed • 4 bath • 1778 ft²
3 bedroom end of terrace house for sale in Grafton Lane, Sandown, Isle of Wight, PO36 — £170,000 • 3 bed • 1 bath • 762 ft²
4 bedroom semi-detached house for sale in Spring Gardens, Shanklin, PO37 — £270,000 • 4 bed • 1 bath • 1561 ft²
4 bedroom link detached house for sale in Esplanade, Shanklin, PO37 — £785,000 • 4 bed • 4 bath • 2939 ft²
3 bedroom town house for sale in Sandown, Isle of Wight, PO36 — £280,000 • 3 bed • 1 bath
3 bedroom semi-detached house for sale in Simeon Street, Ryde, Isle Of Wight, PO33 — £165,000 • 3 bed • 1 bath • 1012 ft²










































































































































