Three-bedroom end terrace with garden, sold at auction for experienced cash buyers seeking a project.
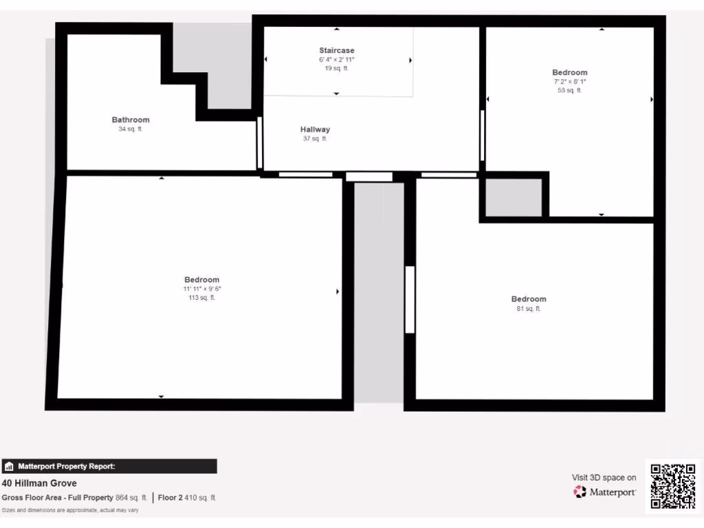
- Three bedrooms, one bathroom, approximately 864 sq ft
- Vacant freehold; completion required within 42 days
- Sold at public auction; no pre-auction offers accepted
- Requires full modernisation; probable heating/electrical works
- Energy Performance Rating E
- Small rear garden and foregarden
- Located in a very deprived area; average local crime
- Fast broadband and excellent mobile signal
A three-bedroom end terrace offered vacant freehold and sold at public auction with a short (42-day) completion period. The property is double glazed and has a private garden and foregarden, offering straightforward scope for reconfiguration, refurbishment or rental use.
The house requires full modernisation throughout — cosmetic and likely mechanical upgrades are needed. Energy Performance is rated E; buyers should expect costs for heating, electrics, kitchen and bathroom renewal. The building dates from the late 1960s and presents as an average-sized home (approximately 864 sq ft) on a small plot.
This lot suits cash-ready buyers, experienced DIYers or investors prepared for an auction purchase and associated fees. The location has fast broadband and excellent mobile signal, nearby primary and secondary schools with good ratings, but sits in a very deprived ward with average crime rates — factor local market conditions into plans.
Buyers must read the legal pack and allow for the advertised administration fee and any special conditions. Viewings are strictly scheduled; no pre-auction offers will be considered.
3 bedroom terraced house for sale in 72 Nineacres Drive, Fordbridge, Birmingham, B37 5DD, B37 — £59,000 • 3 bed • 1 bath • 819 ft²
3 bedroom end of terrace house for sale in 10 Walnut Close, Chelmsley Wood, Birmingham, B37 7PU, B37 — £120,000 • 3 bed • 1 bath
3 bedroom semi-detached house for sale in 390 Witton Lodge Road, Erdington, Birmingham, B23 5LJ, B23 — £39,000 • 3 bed • 1 bath • 1055 ft²
3 bedroom semi-detached house for sale in 51 Tansley Road, Great Barr, Birmingham, B44 0DJ, B44 — £49,000 • 3 bed • 1 bath • 894 ft²
3 bedroom semi-detached house for sale in 292 Rocky Lane, Great Barr, Birmingham, B42 1NQ, B42 — £50,000 • 3 bed • 1 bath • 945 ft²
2 bedroom end of terrace house for sale in 78 Prince of Wales Lane, Kings Heath, Birmingham, B14 4JY, B14 — £95,000 • 2 bed • 1 bath • 909 ft²


































































