Spacious family home with annexe and generous gardens near Corbridge.
Large, characterful stone house with spectacular countryside views
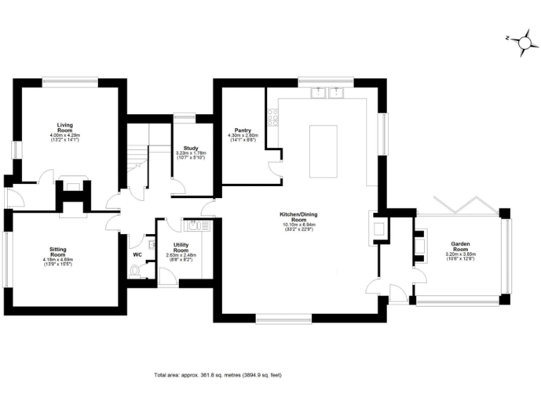
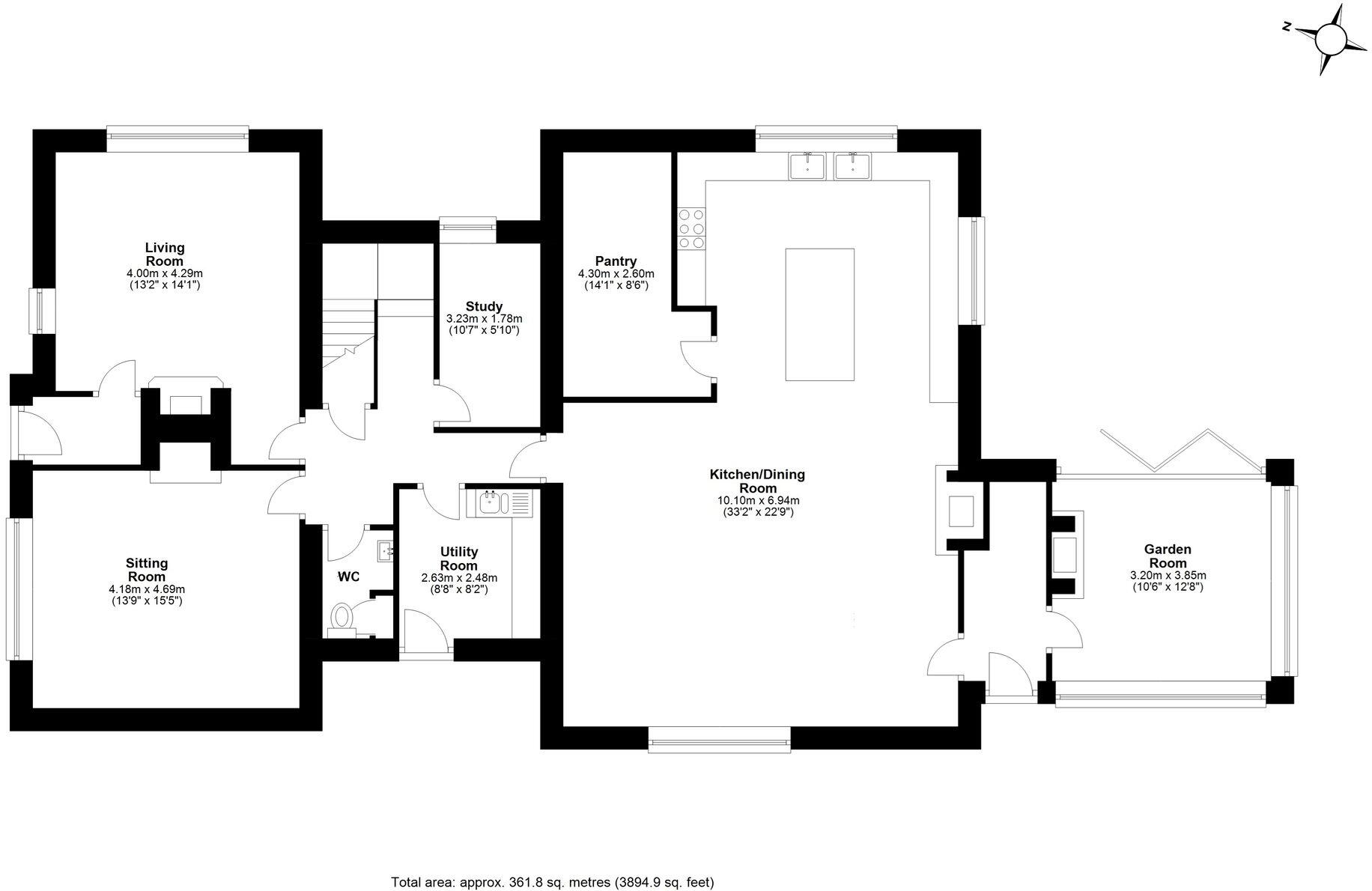
East Lodge is a striking stone-built home set in extensive grounds with uninterrupted views over open Northumberland countryside. The house blends traditional character—mullioned windows, dormers and carved woodwork—with a generous rear extension that creates a large, flexible family living space. A glazed garden room and two wood-burning stoves extend living into the grounds, ideal for year-round use.
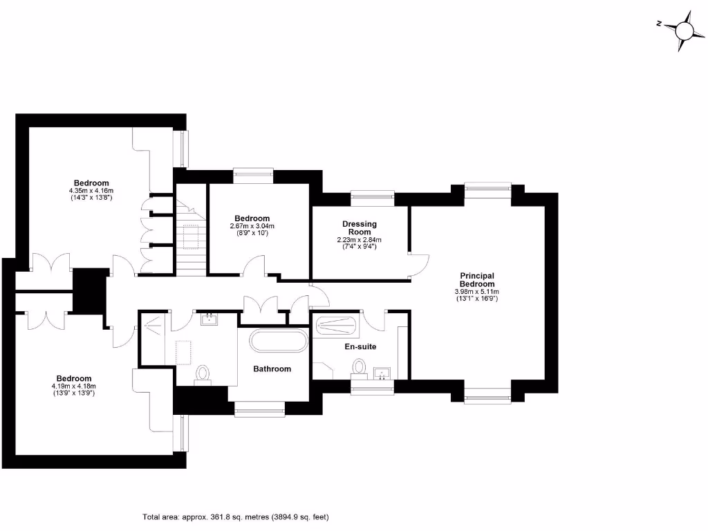
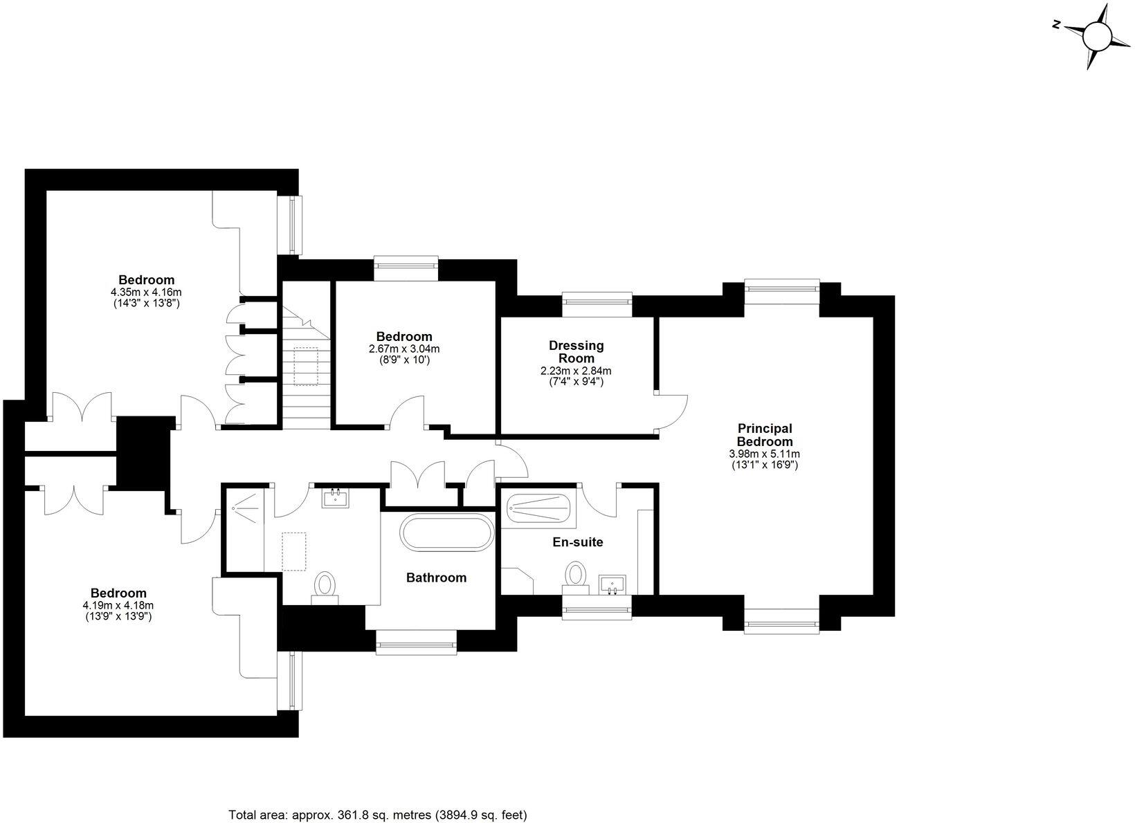
The layout suits family life: two formal reception rooms, a huge kitchen/dining/living area with pantry, principal bedroom with dressing room and en-suite, plus three further bedrooms and a well-appointed family bathroom. Ground-floor underfloor heating provides comfort throughout most of the main living areas; oil-fired boiler and radiators supply the rest of the heating.
Externally there is a long gated driveway, double garage and a self-contained annexe above the garage with shower room—useful for guests, independent living or rental (subject to consents). Two additional cabins offer studio or storage potential. Gardens wrap around the property and back on to mature woodland, providing privacy and a rural setting while remaining within commuting distance of Newcastle.
Notable practicalities: the property uses oil for its main fuel and has private drainage to a septic tank, which requires ongoing maintenance and periodic emptying. Council tax is described as expensive. While the house is substantial and well-presented, buyers should allow for typical maintenance of an older stone property and confirm any intended use of the annexe and cabins with local planning authorities.
4 bedroom detached house for sale in Stocksfield, Northumberland, NE43 — £720,000 • 4 bed • 3 bath • 2070 ft²
6 bedroom country house for sale in Apperley Farm, Stocksfield, Northumberland, NE43 — £1,895,000 • 6 bed • 3 bath • 7635 ft²
5 bedroom detached house for sale in Acorn Lodge, Gubeon Wood, Tranwell Woods, Morpeth, NE61 — £2,000,000 • 5 bed • 4 bath • 8581 ft²
4 bedroom farm house for sale in Southwood, Riding Mill, Northumberland, NE44 — £1,500,000 • 4 bed • 4 bath • 4466 ft²
4 bedroom detached house for sale in North Low House, Whalton, Morpeth, Northumberland, NE61 — £1,150,000 • 4 bed • 4 bath • 2761 ft²
6 bedroom barn conversion for sale in Bowes Hill, Newton Hall, Newton, Stocksfield, Northumberland, NE43 — £2,000,000 • 6 bed • 3 bath • 6884 ft²






















































































































