NE43 7TW - 6 bed substantial stone barn in Newton, NE43 7TW

View on Property Piper

6 bedroom barn conversion for sale in Bowes Hill, Newton Hall, Newton, Stocksfield, Northumberland, NE43

Summary - NEWTON HALL BOWES HILL NEWTON STOCKSFIELD NE43 7TW

6 bed 3 bath Barn Conversion

Secluded family residence with extensive garaging and landscaped grounds.
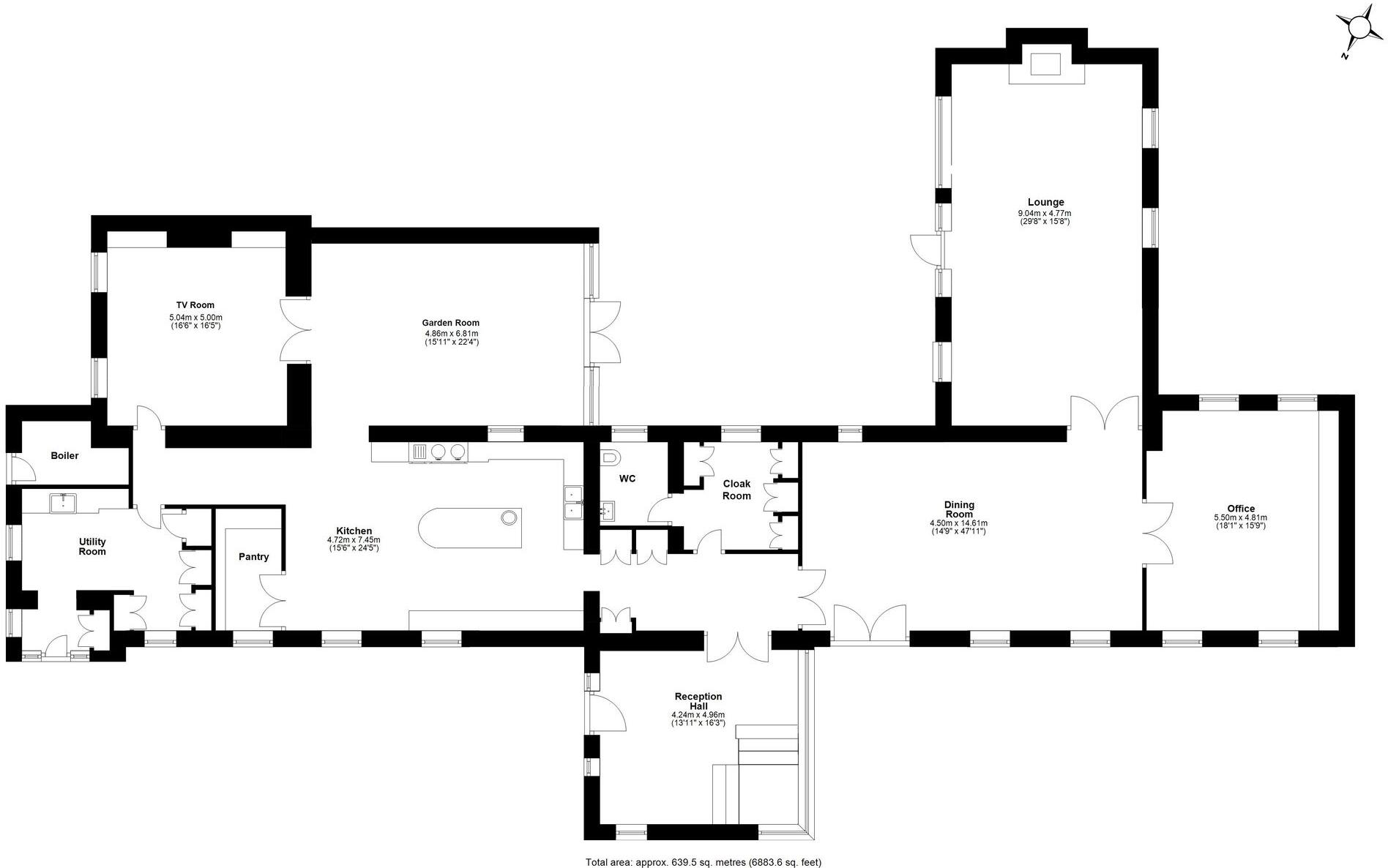
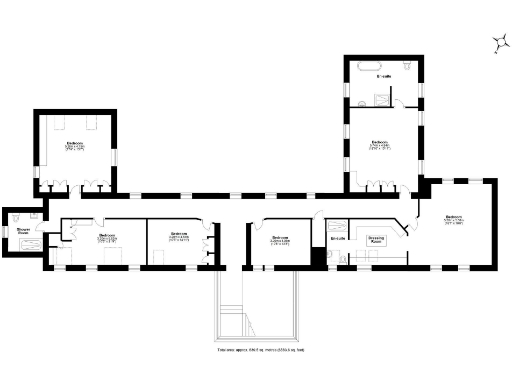
Substantial stone barn conversion over 6,800 sq ft of accommodation|Six double bedrooms; principal bedroom with dressing room and en-suite|High-spec kitchen with Sub-Zero, Aga and large walk-in pantry|Detached stone outbuilding: four garages, gym, storeroom and WC|Mature, professionally landscaped gardens with terraces and privacy|Oil-fired heating; potential higher running costs compared with gas|Shared septic tank with annual emptying charge (approx. £123.50)|EPC D and walls likely uninsulated — retrofit may be needed
Bowes Hill is a substantial stone-built barn conversion set privately in the Tyne Valley, offering over 6,800 sq ft of adaptable living space across six double bedrooms. The house combines traditional character — Northumbrian sandstone, oak panelling and sash-style windows — with high-spec, modern fixtures including a Mowlem & Co kitchen, Sub-Zero appliances and bespoke bathroom fittings. Generous reception rooms and numerous flexible living areas suit formal entertaining and relaxed family life.

Externally the plot is mature and professionally landscaped, with electric gates, a large turning area and an extensive detached stone outbuilding housing four garage bays, a gym, storeroom and WC. The property sits within an exclusive, discreet development close to Corbridge, Hexham and Newcastle, providing countryside privacy while retaining commuter convenience.

Practical points to note: heating is by oil-fired boiler and radiators, drainage is currently to a shared septic tank (annual emptying charge noted), and the property has an EPC rating of D. The building dates from before 1900 and external stone walls are assumed to have no added insulation, which may affect long-term running costs and potential retrofit requirements.

This home will appeal to families or buyers seeking a large, characterful rural residence with strong entertaining spaces and outbuildings. It presents immediate high-quality living with clear scope for owners to personalise secondary bedrooms, improve energy performance or adapt garages and storeroom space to suit changing needs.

Property Details

Image Descriptions

Floorplan Description

Rooms

Textual Property Features

Target Audience

AI Tags

Detected Visual Features

EPC Details

Nearby Schools

Nearest Bars And Restaurants

,,,,}

Nearest General Shops

,,}

Nearest Grocery shops

,,}

Nearest Supermarkets

,,}

Nearest Religious buildings

,,}

Nearest Medical buildings

,,,}

Nearest Airports

,}

Nearest Leisure Facilities

,,,,}

Nearest Tourist attractions

,,}

Nearest Train stations

,,,,}

Nearest Bus stations and stops

,,,,}

Nearest Hotels

,,}

Tags

Local Market Stats

AirBnB Data

Similar Properties

Meta

High Res Images

Compatible Images

Low res Images

Thumbnails

Raw Images

High Res Floorplan Images

Compatible Floorplan Images

Low res Floorplan Images

FloorplanImages Thumbnail

Raw Floorplan Images