Well-sized family home near shops and schools with low-maintenance garden.
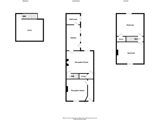
Two very large double bedrooms, generous floor area (approx. 1,091 sq ft)
A roomy two-bedroom end-of-terrace home offering generous living space across a traditional multi-storey layout. The property benefits from two very large double bedrooms, a full-width lounge with a log burner and a separate dining/reception room—ideal for family life or home working.
Practical updates include UPVC double glazing, gas central heating, and a refitted ground-floor bathroom. The fitted kitchen opens onto a low-maintenance patio garden, and a sizeable cellar provides useful storage or potential workspace. The house is freehold with a Council Tax Band B and totals about 1,091 sq ft.
Located within walking distance of the village centre, shops and several well-rated primary and secondary schools, the home suits growing families seeking convenience. Note the EPC rating D and an assumed lack of cavity wall insulation; prospective buyers should consider insulation improvements for energy efficiency. The plot is small and external garden space is limited.
2 bedroom terraced house for sale in KINGSWINFORD, Queen Street, DY6 — £200,000 • 2 bed • 1 bath • 873 ft²
2 bedroom end of terrace house for sale in Bell Road, Netherton, Dudley, DY2 0NH, DY2 — £159,950 • 2 bed • 1 bath • 829 ft²
2 bedroom end of terrace house for sale in Bird Street, Dudley, DY3 — £169,950 • 2 bed • 1 bath • 729 ft²
2 bedroom end of terrace house for sale in COBDEN STREET, Wollaston, DY8 3RU, DY8 — £240,000 • 2 bed • 1 bath • 772 ft²
2 bedroom semi-detached house for sale in Nanaimo Way, Kingswinford, DY6 — £230,000 • 2 bed • 1 bath • 757 ft²
2 bedroom end of terrace house for sale in Alwen Street, Wordsley, Stourbridge, DY8 5YP, DY8 — £210,000 • 2 bed • 1 bath • 819 ft²


































































