Two-bedroom, move-in-ready home with long rear garden and garage.
Two double bedrooms with contemporary family bathroom
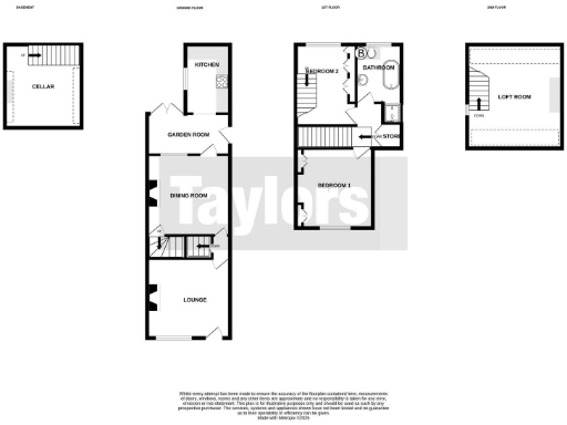
A well-presented two-bedroom end property offering practical living across two reception rooms, a fitted kitchen and useful cellar. The home is ready to occupy with neutral finishes throughout and an inviting bay-front living room that suits first-time buyers or investors seeking straightforward low-maintenance accommodation.
Outside, the long rear garden is a standout for this terrace, providing private outdoor space with patio, lawn and decking, plus a side driveway leading to a detached garage. Council Tax Band A and no upward chain make the purchase process simpler and running costs comparatively low.
Notable defects are factual and few: the EPC is currently rated E (49) indicating energy-efficiency improvements would be beneficial, and the building is of solid-brick construction likely lacking cavity insulation. The plot is modest at the front and the area scores high on local deprivation indices, which may affect long-term demand and resale tone.
Overall this freehold house suits a first-time buyer or investor who values move-in condition, outdoor space and off-street parking, and who is willing to carry sensible energy-efficiency upgrades to maximise future value.
2 bedroom terraced house for sale in Wheeler Street, Stourbridge, DY8 — £210,000 • 2 bed • 1 bath • 788 ft²
2 bedroom end of terrace house for sale in Church Street, Stourbridge, DY8 1LZ, DY8 — £239,950 • 2 bed • 1 bath • 625 ft²
2 bedroom terraced house for sale in New Street, Wordsley, Stourbridge, DY8 — £199,950 • 2 bed • 1 bath • 786 ft²
2 bedroom end of terrace house for sale in Foxdale Drive, Brierley Hill, DY5 3GX, DY5 — £150,000 • 2 bed • 1 bath • 453 ft²
3 bedroom terraced house for sale in Brooklands, Wordsley, DY8 5UW, DY8 — £210,000 • 3 bed • 1 bath • 958 ft²
2 bedroom semi-detached house for sale in Sandfield Road, Stourbridge, West Midlands, DY8 — £200,000 • 2 bed • 1 bath • 850 ft²














































































