Character cottage on a large orchard plot near Ilminster, ideal for family country living.
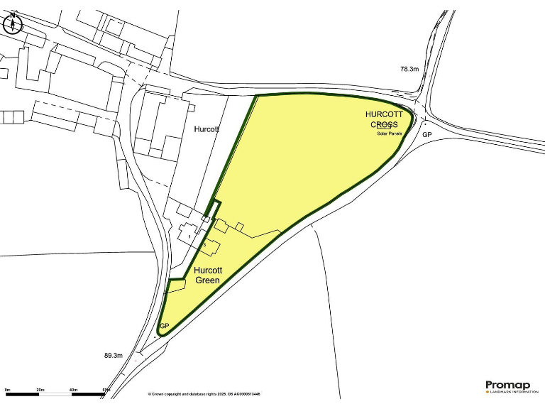
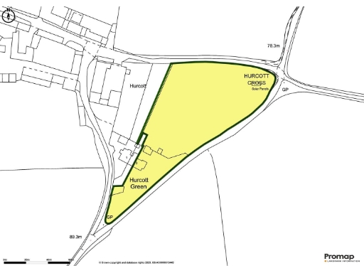
- Set in approximately 2.16 acres, including a well-stocked apple orchard
- Flexible layout with ground-floor bedroom and shower room
- Bespoke kitchen, vaulted dining/family area, French doors to garden
- Substantial block-built garage with power, light and storage
- Solar PV panels and water softener present on site
- Shared private water and sewage costs across three cottages
- Very slow standard broadband locally; fibre present in garden but unconnected
- Oil central heating and Somerset Council Tax Band F (expensive)
Orchard Cottage is a characterful, extended stone cottage set in about 2.16 acres, including a well-stocked apple orchard and elevated rural views. The house offers flexible living with a bespoke kitchen-dining-family room beneath a vaulted ceiling, a cosy sitting room with wood-burning stove and the convenience of a ground-floor bedroom with adjoining shower room.
Practical extras include a separate utility housing the oil boiler and water softener, freestanding solar PV panels in the orchard, a substantial block-built garage with power and light, and a generous private driveway with ample parking and turning space. The property benefits from excellent mobile signal and quiet village/rural living while remaining a short drive from Ilminster and road links.
Notable practical points: water and drainage are from shared private systems and costs are split between three cottages; broadband in the area is currently very slow (recent fibre installed to the garden but not connected); heating is oil-fired and the council tax band is F. There is an existing neighbour right of way over the initial section of the vehicular approach. The cottage is stone-built pre-1900; walls are likely uninsulated and some owners may want to review insulation and energy improvements despite a 2019 EPC and presence of roof insulation noted after that survey.
This home will suit buyers seeking country living on a large plot — families, multigenerational households or those wanting orchard/cottage lifestyle. It also offers potential to improve energy efficiency and further tailor accommodation, subject to permissions, making it appealing to buyers who value space and rural character.
4 bedroom barn conversion for sale in Farringdon Lane, North Petherton, Bridgwater, Somerset, TA6 — £929,950 • 4 bed • 3 bath • 2575 ft²
3 bedroom detached house for sale in Shute, Axminster, Devon, EX13 — £480,000 • 3 bed • 2 bath • 1367 ft²
4 bedroom semi-detached house for sale in West Bagbrough, Taunton, Somerset, TA4 — £620,000 • 4 bed • 2 bath • 1515 ft²
4 bedroom detached house for sale in Pit Hill Lane, Moorlinch, Bridgwater, Somerset, TA7 — £535,000 • 4 bed • 2 bath • 1436 ft²
5 bedroom detached house for sale in Upton Lane, Seavington, Ilminster, TA19 — £550,000 • 5 bed • 2 bath • 2372 ft²
3 bedroom detached house for sale in Hillcove, Hawthorne Hill, East Lambrook, Near South Petherton, TA13 — £660,000 • 3 bed • 2 bath • 1837 ft²


























































































