**Key Features:**
- **Prime Development Opportunity:** Full planning permission for five detached executive homes.
- **Extensive Land Size:** Approximately 1.37 acres in a sought-after area, allowing for generous individual plots.
- **No Immediate Costs:** No Section 106 contribution or building condition required, enabling quick commencement of construction.
- **Gated Access:** Secure entry via Chapel Street, enhancing privacy and exclusivity.
- **Established Location:** Set in a popular rural town, framed by mature hedgerows and trees.
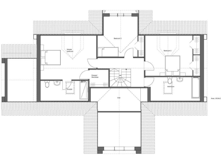
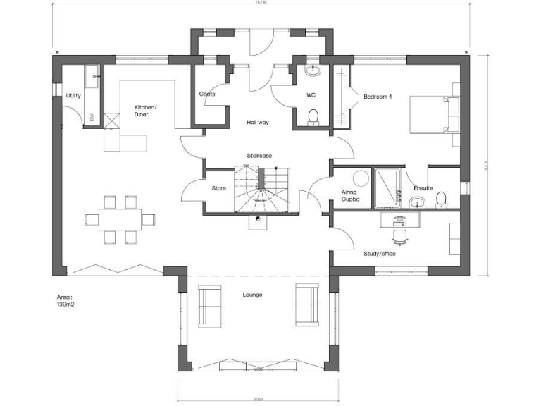
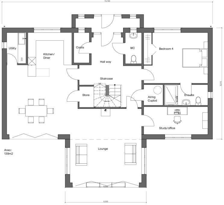
Discover a rare investment opportunity with this expansive plot located to the rear of Chapel Street, Crowland, measuring approximately 1.37 acres. With full planning permission in place for five stunning 2,475 sq ft detached homes, this land allows developers to create a prime gated community that promises luxury living in the heart of Lincolnshire. The generous plots offer the potential for beautiful gardens and outdoor spaces, perfect for families seeking tranquility and privacy.
This is not just a piece of land but a chance to shape a thriving residential community in a semi-rural town with good local amenities just a short distance away. The area’s average mobile signal and broadband speeds ensure connectivity while maintaining a peaceful environment.
With no Section 106 contributions or building conditions standing in the way, you can start construction without delay. Don't miss out on this exclusive development opportunity—properties in this area are in high demand and won't last long in today's market.
Plot for sale in Chapel Street, Crowland, Peterborough, PE6 — £215,000 • 4 bed • 3 bath • 2500 ft²
Plot for sale in South Street, Crowland, Peterborough, PE6 — £85,000 • 1 bed • 1 bath
Residential development for sale in Land at rear of 38 Fishpond Lane (off Farrow Avenue), PE12 7DE, PE12 — £250,000 • 1 bed • 1 bath • 14515 ft²
Plot for sale in South Street, Crowland, Peterborough, PE6 — £49,000 • 1 bed • 1 bath • 2180 ft²
Land for sale in Building Land With Full PP For 3 No 4 Bed Detached Properties, PE12 0TY, PE12 — £325,000 • 1 bed • 1 bath • 22970 ft²
Residential development for sale in Adj. 51 Cowbit Road, PE11 2RJ, PE11 — £250,000 • 1 bed • 1 bath • 8875 ft²


































