Ready-to-move-in garden flat near Brixton transport and amenities.
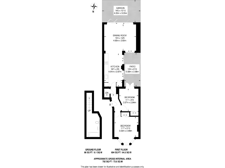
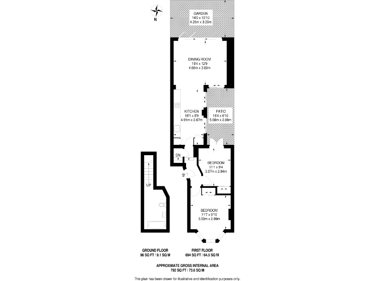
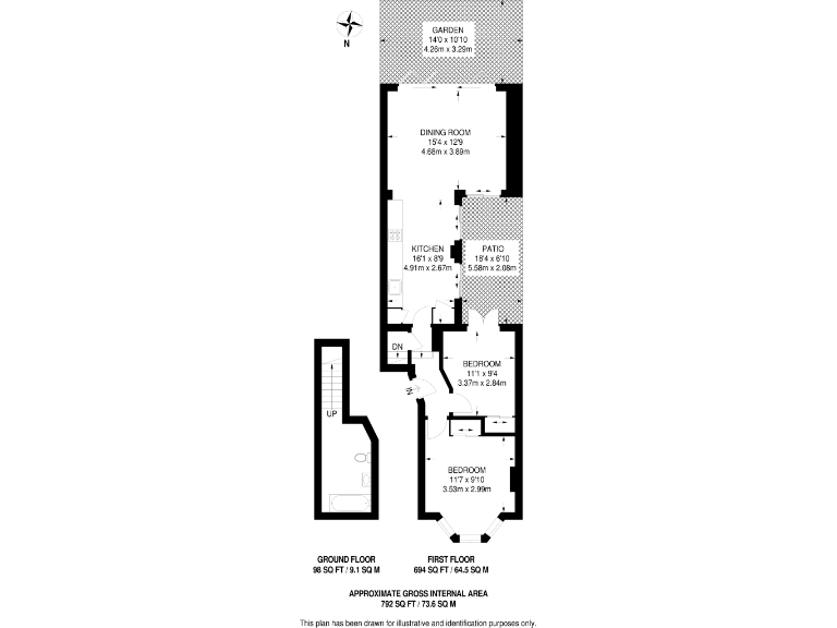
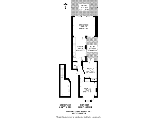
• Newly renovated 2-bedroom garden flat with two terraces
• Large reception with bifold doors to private back garden
• Smart eat-in kitchen opening onto sunny terrace
• Two double bedrooms with fitted wardrobes
• Approx 792 sq ft; high ceilings and period features
• Leasehold with 105 years remaining; sold at auction
• Inner-city Brixton location — above-average crime and deprivation
• Solid brick walls likely lack modern insulation
Set across the lower floor of a Victorian terrace, this newly renovated 2-bedroom flat offers generous proportions and direct outdoor space — rare for central Brixton. The large reception with bifold doors extends to a private back garden, while a smart eat-in kitchen opens to a sunny terrace, giving flexible entertaining and dining options. High ceilings and period details combine with contemporary finishes for an immediately liveable home.
Practical features include two sizeable double bedrooms with fitted wardrobes, a high-spec bathroom and efficient mains-gas heating with boiler and radiators. At about 792 sq ft, the layout feels roomy for a first home or sharable purchase; fast broadband and excellent mobile signal support modern working-from-home needs.
Important points: the property is leasehold (105 years remaining) and will be sold at auction (prior purchase available). The wider area is inner-city Brixton, which offers excellent transport, amenities and culture but records above-average crime and local area deprivation — factors to weigh for households prioritising quieter neighbourhoods. The building’s solid brick construction likely lacks modern wall insulation.
This flat will suit a buyer seeking a stylish, ready-to-move-in central London home with outdoor space and strong rental or resale prospects, provided you are comfortable with leasehold ownership and an auction sale process.
2 bedroom flat for sale in Kellett Road, London, Greater London, SW2 — £585,000 • 2 bed • 1 bath • 792 ft²
2 bedroom flat for sale in Acre Lane, Clapham, London, SW2 — £400,000 • 2 bed • 2 bath • 700 ft²
2 bedroom flat for sale in Voltaire Road, Clapham Old Town, Clapham North, LONDON, SW4 — £695,000 • 2 bed • 1 bath • 876 ft²
2 bedroom flat for sale in Rushcroft Road, Brixton, London, SW2 — £750,000 • 2 bed • 1 bath • 918 ft²
2 bedroom flat for sale in Deepdene Gardens, London, SW2 — £250,000 • 2 bed • 1 bath
2 bedroom apartment for sale in Kellett Road, London, SW2 — £600,000 • 2 bed • 1 bath • 694 ft²






































































































































