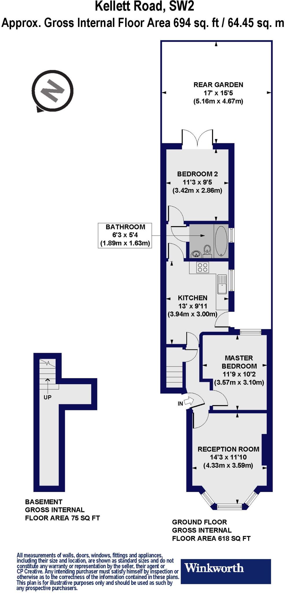
Central Brixton apartment with private garden and character, ideal for first-time buyers.
- Two well-proportioned bedrooms with good natural light
- Spacious reception with bay window and period features
- Stylish kitchen with metro tiles and integrated appliances
- Private rear garden, suitable for dining and relaxing
- Share of freehold; c.103 years remaining on lease
- Solid brick walls likely need insulation upgrades
- Built before 1900; traditional layout, average room sizes
- Local area: excellent transport but above-average crime levels
Set on Kellett Road in SW2, this first-floor two-bedroom apartment combines Victorian character with contemporary fittings. High ceilings, a bay window and a feature fireplace give the reception room period charm, while the modern kitchen and bathroom deliver turn-key convenience. A private rear garden provides rare outdoor space for central Brixton living.
Practical details help the buyer judge value: the property is share of freehold with c.103 years remaining on the lease and totals about 694 sq ft. Heating is by mains gas boiler and radiators; solid brick walls likely need additional insulation to improve energy efficiency and comfort. Rooms are described as average in size for the area.
Location is a clear asset — Brockwell Park, Brixton Market, POP Brixton and Brixton Tube (Zone 2) are all within easy reach. Local schools include some highly rated primaries and mixed secondary provision; applicants should check specific catchments and Ofsted reports. Mobile signal and broadband are strong, supporting home working.
Buyers should note local context: the wider area is classed as inner-city cosmopolitan with above-average crime levels and pockets of deprivation. The property is well-presented but buyers seeking the highest energy efficiency or full modernisation may want to budget for insulation and other improvements.
2 bedroom flat for sale in Tunstall Road, SW9 — £575,000 • 2 bed • 1 bath • 636 ft²
2 bedroom flat for sale in Kellett Road, Brixton, SW2 — £550,000 • 2 bed • 1 bath • 720 ft²
2 bedroom flat for sale in Acre Lane, Brixton, SW2 — £500,000 • 2 bed • 1 bath • 581 ft²
3 bedroom apartment for sale in Kellett Road, London, SW2 — £550,000 • 3 bed • 1 bath • 1048 ft²
2 bedroom apartment for sale in Dulwich Road, London, SE24 — £625,000 • 2 bed • 1 bath • 678 ft²
1 bedroom flat for sale in Stockwell Road, Brixton, SW9 — £385,000 • 1 bed • 1 bath • 462 ft²














































