**Standout Features:**
- One-bedroom flat in a classic Victorian brick building
- Needs modernization, offering renovation potential
- No onward chain, making it a hassle-free buy
- Located near New Cross and New Cross Gate stations
- Close to abundant local amenities
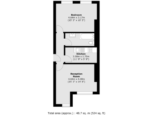
- Spacious reception and comfortable bedroom sizes
**Potential Concerns:**
- Requires significant renovation
- High crime rate in the local area
- Average broadband speeds
- 89 years remaining on the lease
Discover this potential-packed one-bedroom flat nestled in New Cross, SE14, an exciting prospect for first-time buyers and savvy investors. With a charming Victorian brick exterior and high ceilings throughout, this spacious residence is perfect for those looking to add their personal touch. The flat’s functional layout includes a bright reception room, a cozy bedroom, and a compact kitchen, all in need of modern updates, offering a chance to create your dream urban home.
Enjoy the convenience of being within walking distance to both New Cross and New Cross Gate stations, as well as a myriad of nearby amenities ranging from cafes and groceries to healthcare services. While the flat does require significant modernization, it presents a unique opportunity in a vibrant area populated by young families and students, with good local schools nearby. Priced attractively at £210,000 and with no onward chain, this inviting space promises comfortable city living, but act fast – opportunities like this don’t last long!
1 bedroom flat for sale in Woodrush Close, New Cross, SE14 — £225,000 • 1 bed • 1 bath • 400 ft²
1 bedroom flat for sale in Lewisham Way, New Cross, London, SE14 — £230,000 • 1 bed • 1 bath • 302 ft²
1 bedroom flat for sale in 390 New Cross Road, London , SE14 — £265,000 • 1 bed • 1 bath • 415 ft²
1 bedroom flat for sale in Lewisham Way, New Cross, SE14 — £350,000 • 1 bed • 1 bath • 454 ft²
1 bedroom flat for sale in New Cross Road, London , SE14 — £260,000 • 1 bed • 1 bath • 399 ft²
1 bedroom flat for sale in Lewisham Way, New Cross, London, SE14 — £230,000 • 1 bed • 1 bath


















