DL13 1JG - 2 bed victorian countryside retreat in Longhorn Ends, DL13…

View on Property Piper

2 bedroom end of terrace house for sale in Longhorn Ends, Cowshill, DL13

Summary - 1 Longhorn Ends, Cowshill DL13 1JG

2 bed 1 bath End of Terrace

Character-filled end terrace with outstanding hill views and garage parking.
Two double bedrooms with traditional period features
Set on an elevated plot in the North Pennines National Landscape, this two-bedroom Victorian end-terrace combines traditional character with recent practical upgrades. A newly fitted bathroom, fresh decoration and a new log-burning stove create a comfortable, move-in-ready core, while a LPG combi boiler and serviced oil-fired AGA provide twin heating options suited to rural living.

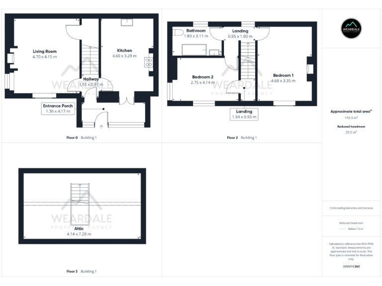
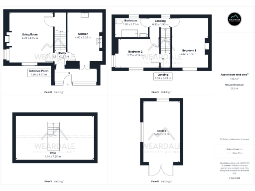
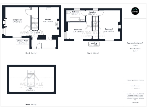
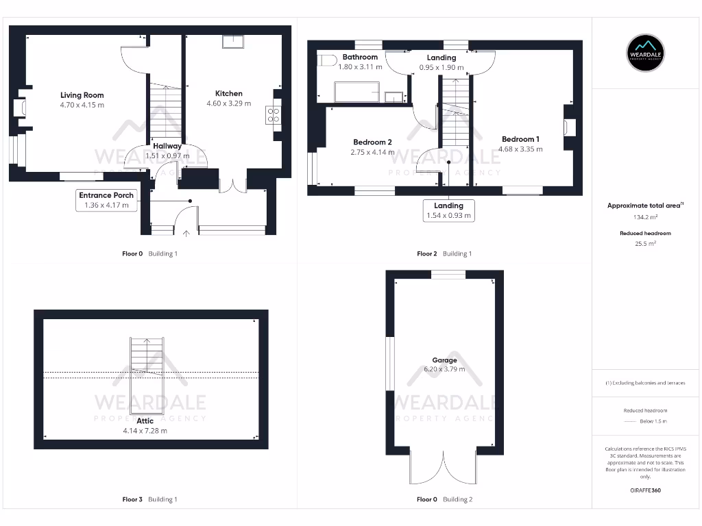
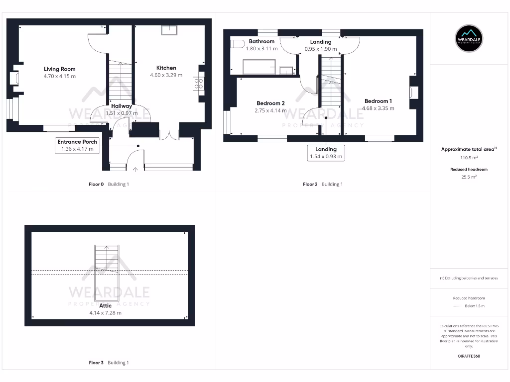
The house offers two double bedrooms, flagstone floors, deep window sills and a traditional bedroom fireplace; a fully boarded attic gives useful additional storage. West-facing flagstone patio and a paved front area capture outstanding hillside views and provide an attractive outdoor seating spot. A garage with off-road parking for one vehicle and three roadside outbuildings add valuable storage and parking flexibility.

Buyers should note this is a remoter village location with average broadband but excellent mobile signal; the local area is classified as deprived and services are limited. The property’s stone walls are original and assumed uninsulated, and the EPC is rated F — further insulation and energy upgrades may be required to improve efficiency. The north-side garden needs clearance to realise its potential.

This home will suit buyers seeking rural character and views with modest running costs (affordable council tax) who are comfortable with some ongoing external maintenance and energy-improvement work. It’s an appealing option for downsizers or countryside seekers wanting a largely renovated interior with scope to enhance energy performance and garden use.

Property Details

Image Descriptions

Floorplan Description

Rooms

Textual Property Features

Target Audience

AI Tags

Detected Visual Features

EPC Details

Nearby Schools

Nearest Bars And Restaurants

,,,,}

Nearest General Shops

,,}

Nearest Grocery shops

,,}

Nearest Supermarkets

,,}

Nearest Religious buildings

,,}

Nearest Medical buildings

,,,}

Nearest Leisure Facilities

,,,,}

Nearest Tourist attractions

,,}

Nearest Train stations

,,,,}

Nearest Bus stations and stops

,,,,}

Nearest Hotels

,,}

Tags

Local Market Stats

Similar Properties

Meta

High Res Images

Compatible Images

Low res Images

Thumbnails

Raw Images

High Res Floorplan Images

Compatible Floorplan Images

Low res Floorplan Images

FloorplanImages Thumbnail

Raw Floorplan Images