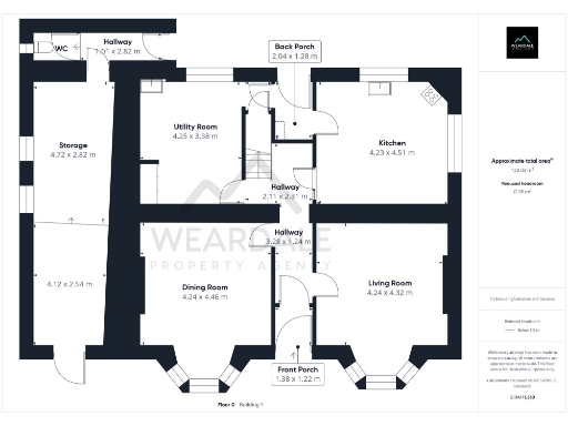
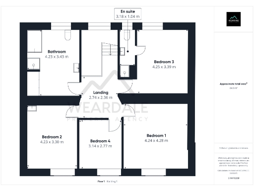
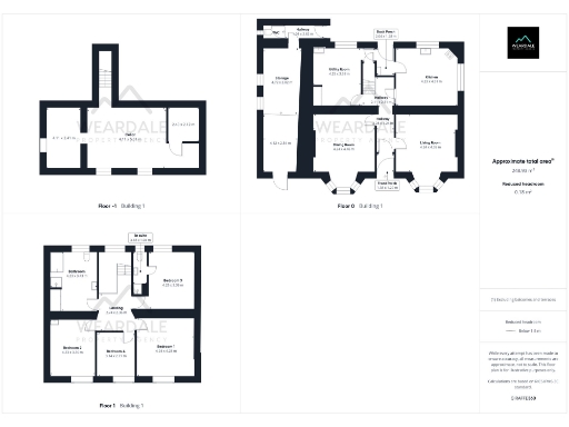
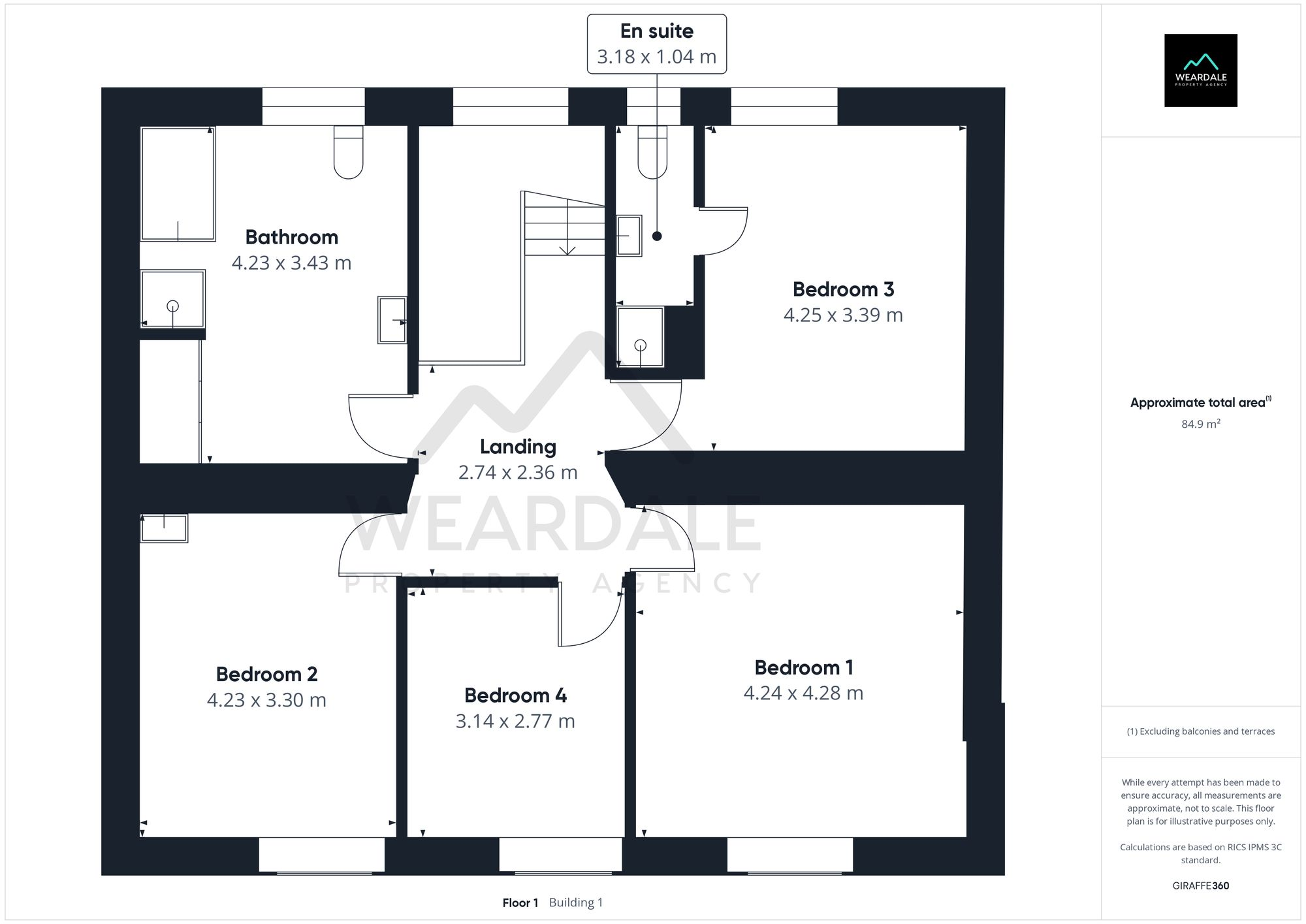
**Standout Features:**
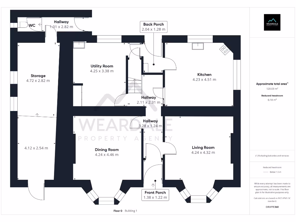
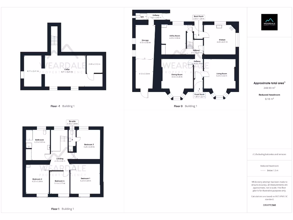
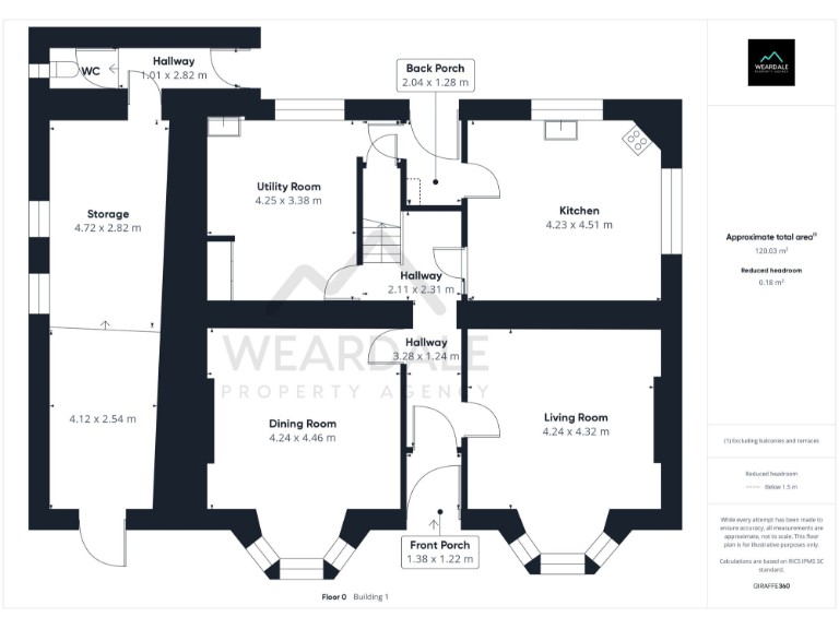
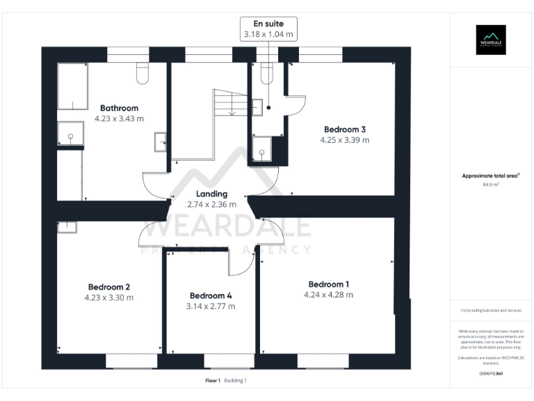
- Spacious 4-bedroom, 2-bathroom Victorian house
- Stunning countryside views in the North Pennines National Landscape
- Option to purchase neighboring barn conversion (High Wingate) for additional living space
- Driveway parking for multiple vehicles
- Large basement for storage
- South-facing lawned gardens with a vegetable garden and small paddock
- Chain-free sale
This charming Victorian semi-detached house is a haven for families or those looking to embrace rural life. The property features three generous double bedrooms and a cozy single bedroom, providing ample space for comfort and relaxation. The elegant dining room and living area with high ceilings evoke timeless appeal, while modern conveniences make daily living easy.
Enjoy the outdoors with beautifully maintained south-facing gardens perfect for summer gatherings, with stunning views of the surrounding countryside. The opportunity to also acquire a neighboring barn conversion opens the door for further customization or rental potential, truly making this an exceptional find.
Although the property has a lot to offer, it does require maintenance, including inspecting the oil heating system and potential updates to insulation. Broadband speeds are currently slow, which may be a consideration for those working from home. With its rural charm and unique attributes, this property encapsulates a lifestyle of tranquility and connection with nature—don’t miss the chance to make it your own!
2 bedroom end of terrace house for sale in Longhorn Ends, Cowshill, DL13 — £190,000 • 2 bed • 1 bath • 1189 ft²
8 bedroom detached house for sale in Lanehead, Upper Weardale, DL13 — £750,000 • 8 bed • 5 bath • 3651 ft²
3 bedroom semi-detached house for sale in Wearhead, Bishop Auckland, DL13 — £279,000 • 3 bed • 1 bath • 1249 ft²
4 bedroom detached house for sale in South View, Wearhead, DL13 — £185,000 • 4 bed • 2 bath • 1465 ft²
4 bedroom barn conversion for sale in Garrigill, Alston, Cumbria, CA9 — £500,000 • 4 bed • 2 bath • 2045 ft²
5 bedroom farm house for sale in Bowlees Farm, Wolsingham, DL13 — £749,000 • 5 bed • 4 bath • 3735 ft²


































































































































