**Standout Features:**
- **Leasehold:** 174 years remaining
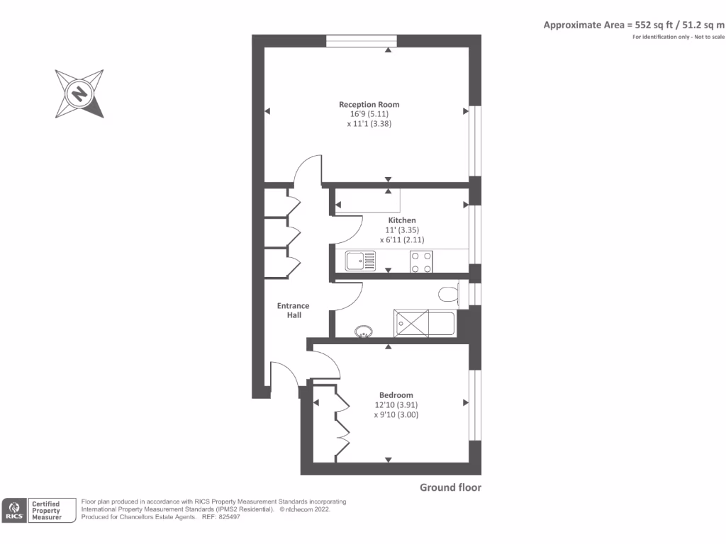
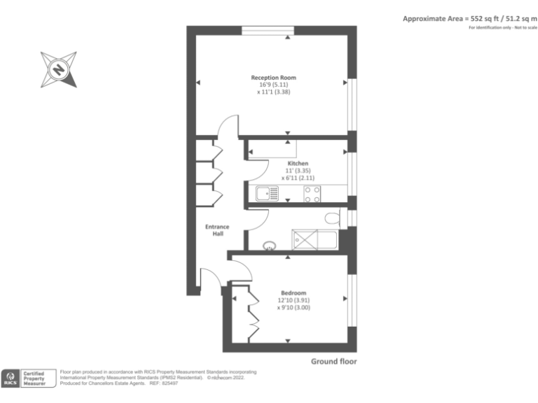
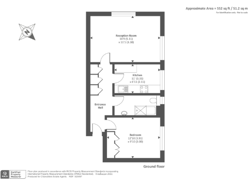
- **Size:** 552 sq ft, average-sized one-bedroom flat
- **Room Layout:** Includes an entrance hall, a double aspect reception room, kitchen, double bedroom, and bathroom
- **Condition:** Well-planned layout; parquet wood flooring
- **Heating:** Communal central heating with independent hot water
- **Gardens:** Access to attractive communal gardens
- **Location:** Central block near High Street and Underground Station
- **Area Amenities:** Proximity to a wide range of shops, eateries, and healthcare services
**Potential Concerns:**
- **Maintenance Costs:** Service charge of £3,453 per annum
- **Insulation:** Solid brick walls require potential improvements for insulation
Discover the charm of this centrally located one-bedroom apartment, perfect for first-time buyers or investors. Situated on the ground floor of a mid-century modern block, this residence boasts a spacious double aspect reception room, inviting kitchen, and a well-sized bedroom—ideal for comfortable living or rental potential. Enjoy the outdoors in the lovely communal gardens, and take advantage of the fantastic array of nearby amenities, from cafes to boutique shops.
While the property offers a significant leasehold term of 174 years, potential buyers should consider the annual service charge and the need for improvements regarding insulation. This unique opportunity provides not only a cozy living space but also a chance for future renovations or a personal touch. Don't miss out on this vibrant urban dwelling that combines convenience, comfort, and the potential for a rewarding investment in the heart of NW8.
1 bedroom flat for sale in Marlborough Place, St Johns Wood, NW8 — £775,000 • 1 bed • 1 bath • 837 ft²
1 bedroom flat for sale in Abercorn Place, St. John's Wood, NW8 — £425,000 • 1 bed • 1 bath • 372 ft²
1 bedroom flat for sale in Grove End Gardens, St Johns Wood, NW8, NW8 — £690,000 • 1 bed • 1 bath • 594 ft²
1 bedroom flat for sale in Townshend Court, St Johns Wood, NW8 — £475,000 • 1 bed • 1 bath • 461 ft²
2 bedroom flat for sale in Marlborough Place, St Johns Wood, NW8, NW8 — £1,100,000 • 2 bed • 1 bath • 884 ft²
1 bedroom flat for sale in Hall Road, St John's Wood, London, NW8 — £380,000 • 1 bed • 1 bath • 520 ft²


























































