**Key Features:**
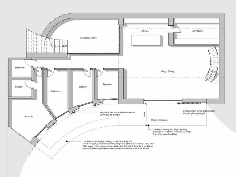
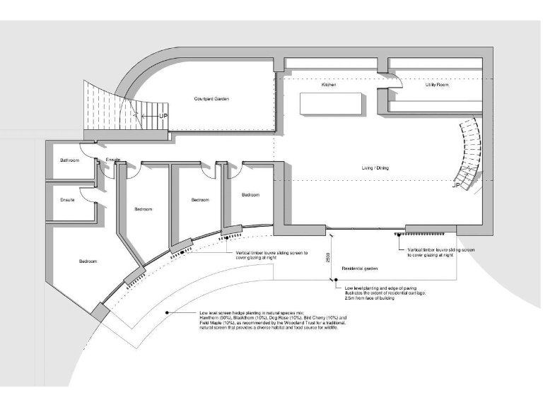
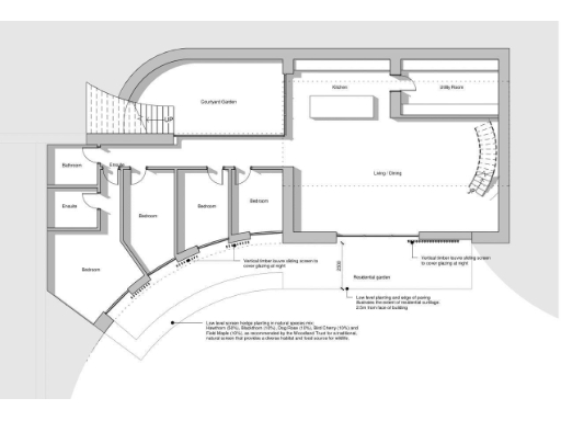
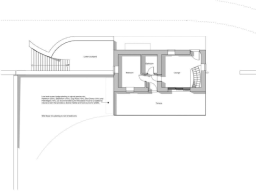
- **5-bedroom barn conversion opportunity** with full planning consent.
- **23 acres** of scenic, free-draining arable land, with an additional **32.5 acres available**.
- Located adjacent to the renowned **Castle Howard Estate** in the picturesque **Howardian Hills AONB**.
- Existing **dilapidated stone structure** ripe for renovation into a contemporary dwelling.
- **Chain-free** sale, ensuring a swift transaction process.
- Very low local crime rate, offering a secure environment.
This unique property in Ganthorpe presents an exceptional development opportunity for those looking to create their dream home in a stunning rural setting. With full planning permission already in place to transform the traditional barn into a 5-bedroom dwelling featuring multiple living spaces and a triple garage, the land provides ample room for expansion or outdoor amenities. Enveloped by the breathtaking landscape of the Howardian Hills, this estate promises tranquility and breathtaking views, perfect for families seeking a peaceful retreat or investors looking for a substantial project.
However, be prepared for some renovation work as the existing barn structure is notably dilapidated, necessitating extensive repairs before making it habitable. Despite this, the considerable size of the property and the scenic surroundings present vast potential for agricultural ventures or personal development projects. Don't miss out on this unique opportunity to embrace rural living at its finest!
Farm land for sale in Ganthorpe, York, YO60 — £325,000 • 1 bed • 1 bath
Residential development for sale in Sheriff Hutton, York, YO32 — £295,000 • 3 bed • 2 bath • 1200 ft²
3 bedroom barn conversion for sale in Sheriff Hutton, York, YO32 — £335,000 • 3 bed • 2 bath • 1200 ft²
Barn conversion for sale in Sutton On The Forest, York, YO61 — £350,000 • 1 bed • 1 bath • 2830 ft²
House for sale in Barn 2, Low Farm Barns, Thorpe Underwood, YO26 9SR, YO26 — £375,000 • 1 bed • 1 bath • 1361 ft²
Residential development for sale in Off Sparington Lane, Sutton On The Forest, YO61 — £350,000 • 1 bed • 1 bath • 2160 ft²






















































































