Modern family living with large garden and integral garage.
Four double bedrooms with en suite to the main bedroom
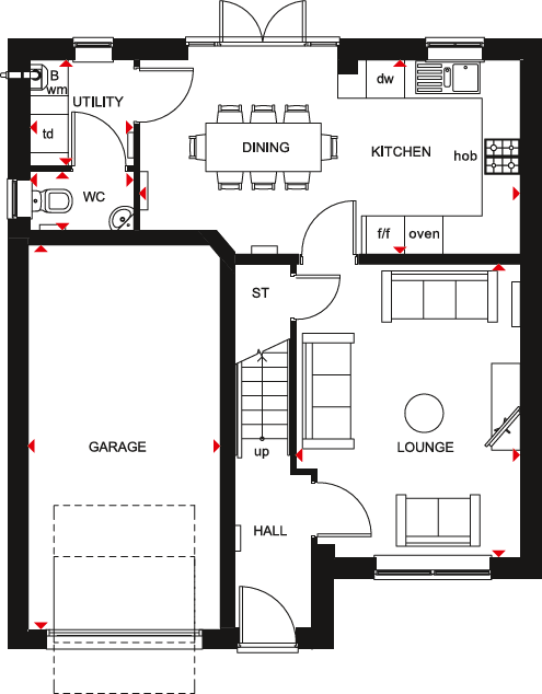
This four-bedroom detached Kennford is a new-build family home designed around modern living. The open-plan kitchen and dining area opens through French doors to a large rear garden, creating a bright, sociable ground floor ideal for family mealtimes and entertaining. An adjoining utility room, separate lounge and integral garage add everyday practicality.
Upstairs are four double bedrooms, with an en suite to the main bedroom, offering comfortable sleeping space and storage for a growing household. Room sizes are sensible for the overall floor area, with the lounge and main bedroom being the most generously proportioned. The property sits on a substantial plot, which presents scope to extend or landscape (subject to planning).
Buyers should note some important local and technical constraints. The listing records a small overall internal size (approximately 946 sq ft) for a four-bedroom house, so rooms may feel compact despite being double bedrooms. Broadband speeds are reported as very slow, and the wider area records higher crime and deprivation indices, which may concern some buyers. Tenure is unspecified in the information provided — this should be confirmed before committing.
Overall, this home will suit families seeking a modern, low-maintenance new build with outdoor space and a garage. It offers potential value through plot size and layout flexibility, but practical limitations (internal size, local broadband and area statistics) are material factors to consider prior to viewing or offer.
4 bedroom detached house for sale in Longmeanygate,
Midge Hall,
Leyland,
PR26 — £334,000 • 4 bed • 1 bath • 866 ft²
4 bedroom detached house for sale in Brokenstone Road,
Feniscowles,
Blackburn with Darwen,
Lancashire,
BB3 0LL, BB3 — £333,000 • 4 bed • 1 bath • 976 ft²
4 bedroom detached house for sale in Longmeanygate Road,
Midge Hall,
Leyland,
PR26 7TB, PR26 — £395,000 • 4 bed • 1 bath • 1276 ft²
4 bedroom detached house for sale in Longmeanygate, Leyland, PR26 — £432,000 • 4 bed • 3 bath
4 bedroom detached house for sale in Longmeanygate Road,
Midge Hall,
Leyland,
PR26 7TB, PR26 — £365,000 • 4 bed • 1 bath • 1174 ft²
4 bedroom detached house for sale in Brokenstone Road,
Feniscowles,
Blackburn with Darwen,
Lancashire,
BB3 0LL, BB3 — £333,000 • 4 bed • 1 bath • 976 ft²


















































































