Well-located two-bedroom with private garden and quick access to Tooting station.
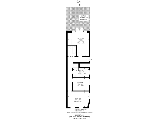
Bright ground-floor reception with space to dine
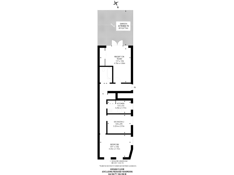
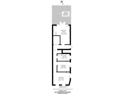
A bright ground-floor maisonette offering practical two-bedroom living and a private rear garden, ideal for first-time buyers seeking outdoor space and good transport links. The reception is generous enough for a dining area and the fitted kitchen has modern fixtures, so move-in is straightforward. Built c.1900-1929 with double glazing and gas central heating, the flat feels warm and well-presented.
Located on a quiet residential road off Mitcham Road, the property is a short walk from Tooting station and local shops, with Figges Marsh green space nearby. Fast broadband and excellent mobile signal support remote working, while several well-rated primary and secondary schools are close by, including two Outstanding secondaries.
Important practical points: the property is leasehold and will be sold at auction (a prior-auction purchase option is available). Service charge and ground rent are low, and the lease has a very long term remaining. The building’s solid brick construction likely lacks cavity insulation, so consider potential energy-efficiency upgrades.
Overall this is a straightforward, well-located maisonette that balances ready-to-live-in condition with scope for modest improvement. It should appeal to first-time buyers wanting rail access and a private garden without major immediate refurbishment.
2 bedroom flat for sale in Ashbourne Road, Mitcham, Surrey, CR4 — £360,000 • 2 bed • 1 bath • 644 ft²
2 bedroom maisonette for sale in Streatham Road, Mitcham, CR4 — £270,000 • 2 bed • 1 bath • 768 ft²
2 bedroom flat for sale in Ashbourne Road, Tooting, CR4 — £400,000 • 2 bed • 1 bath • 586 ft²
3 bedroom maisonette for sale in Tynemouth Road, Mitcham, Surrey, CR4 — £325,000 • 3 bed • 1 bath • 647 ft²
1 bedroom flat for sale in Ashbourne Road, Tooting, Mitcham, CR4 — £295,000 • 1 bed • 1 bath • 395 ft²
2 bedroom maisonette for sale in Tynemouth Road, Mitcham, CR4 — £400,000 • 2 bed • 1 bath • 666 ft²










































































