Perfect entry purchase close to stations, shops and green spaces for first-time buyers.
Chain-free two-bedroom ground-floor maisonette with private south-facing garden
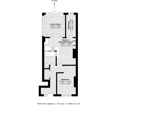
This chain-free ground-floor maisonette offers two double bedrooms, its own front door and a private south-facing garden — a rare find for first-time buyers seeking outside space. The layout is well-proportioned for the footprint, with a large kitchen/reception, conservatory providing extra light, and direct garden access for easy entertaining or relaxation.
Practical details support an uncomplicated purchase: 106 years remain on the lease, there is no annual ground rent or service charge shown, and the property sits in a convenient CR4 location with fast broadband, excellent mobile signal and good transport links to Tooting stations and local amenities. Nearby schools include several rated Good and Outstanding, making this suitable for young families too.
Buyers should note the flat is compact at about 586 sq ft and sits in a solid-brick period terrace likely without cavity insulation. There is one bathroom and some original features from the 1930–49 build era; modest modernisation may be desired to update heating, glazing details or internal finishes. Council tax band is C and the area has average crime levels.
Overall this property suits a first-time buyer or investor who values outdoor space and a straightforward, chain-free purchase, and who is prepared to accept a smaller footprint and carry out light improvements to personalise the home.
2 bedroom maisonette for sale in Tynemouth Road, Tooting, CR4 — £400,000 • 2 bed • 1 bath • 717 ft²
2 bedroom maisonette for sale in Eastfields Road, Mitcham, CR4 — £325,000 • 2 bed • 1 bath • 602 ft²
3 bedroom maisonette for sale in Tynemouth Road, Mitcham, Surrey, CR4 — £385,000 • 3 bed • 1 bath • 647 ft²
2 bedroom flat for sale in Grenfell Road, Mitcham, Surrey, CR4 — £425,000 • 2 bed • 1 bath • 718 ft²
1 bedroom maisonette for sale in Grenfell Road, Mitcham, CR4 — £375,000 • 1 bed • 1 bath • 557 ft²
1 bedroom maisonette for sale in Sirdar Road, Tooting, CR4 — £435,000 • 1 bed • 1 bath • 700 ft²


























