Large modern warehouses with dock loading and fast A1(M) access.
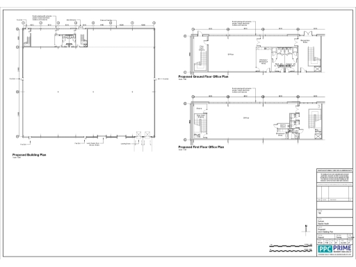
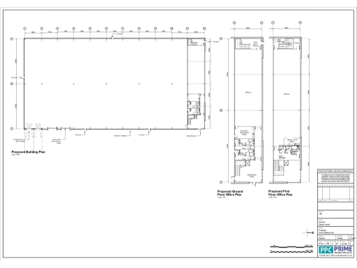
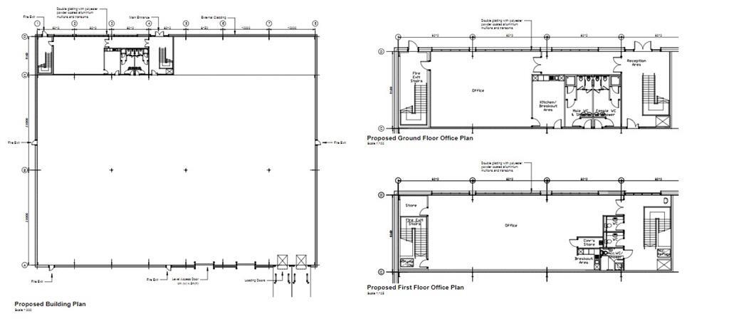
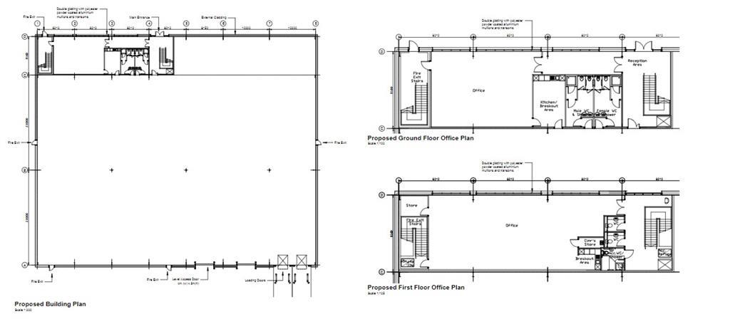
Two new detached warehouse units, 36,069 and 41,529 sqft approx
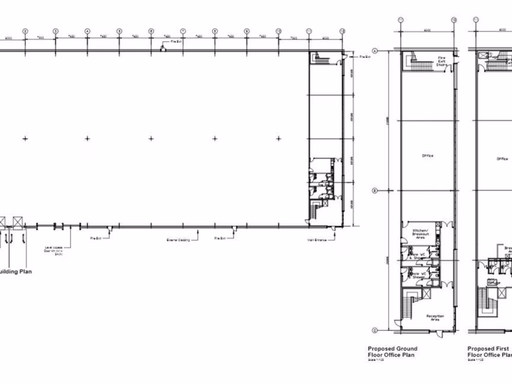
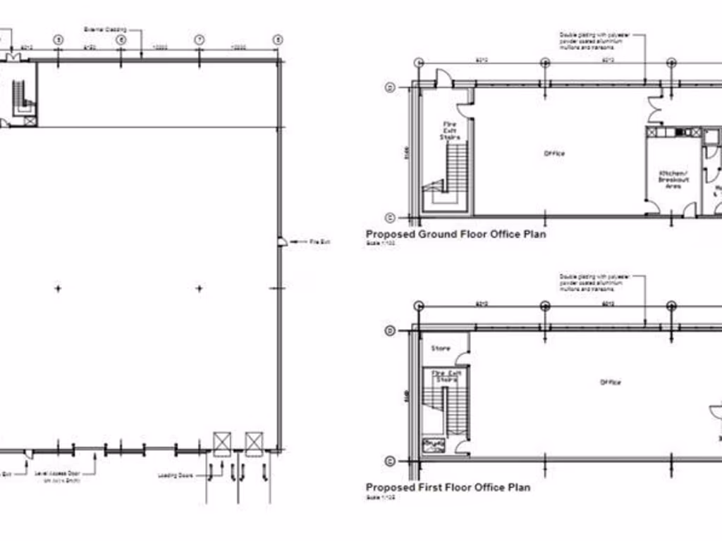
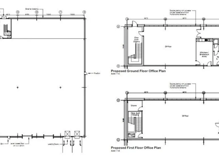
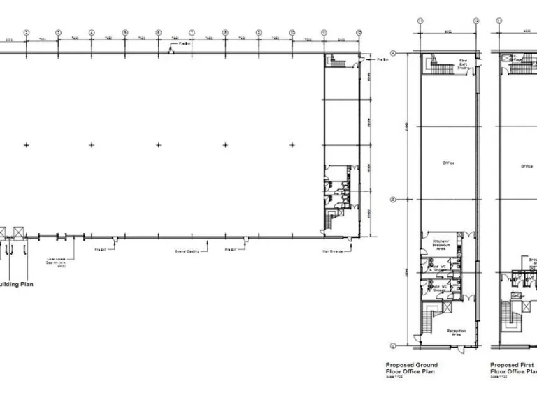
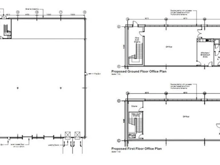
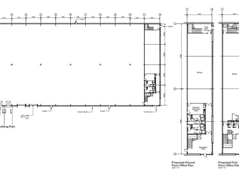
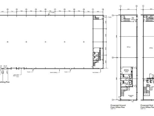
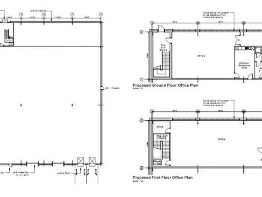
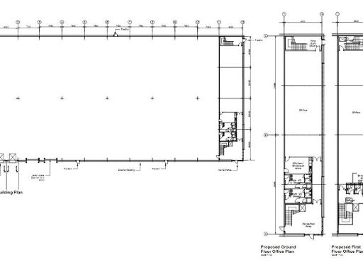
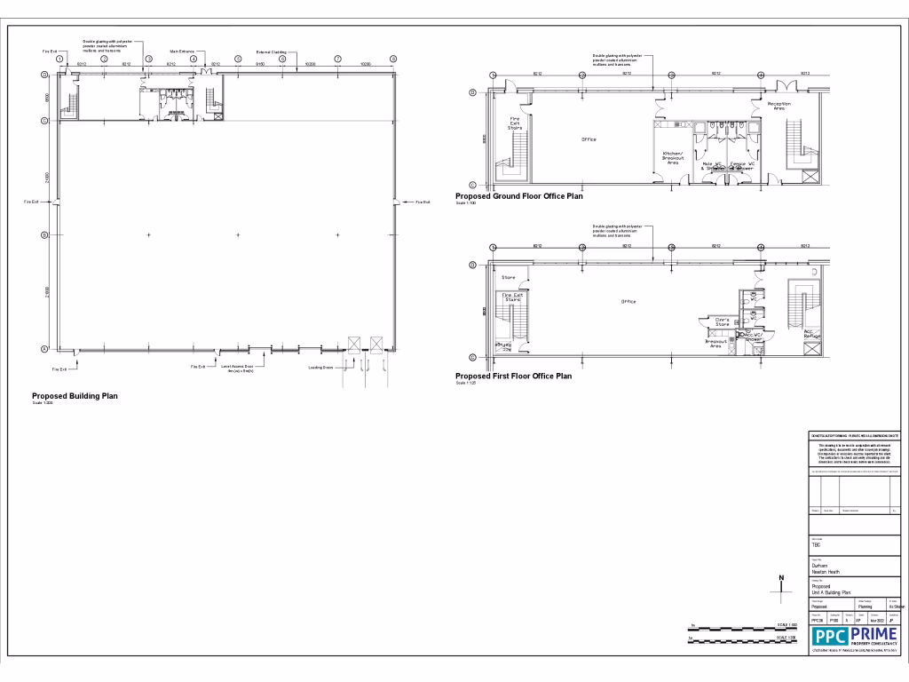
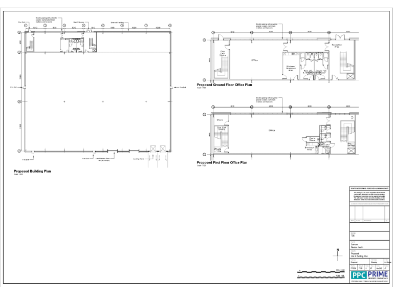
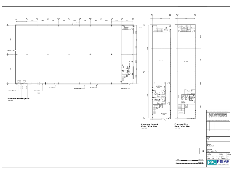
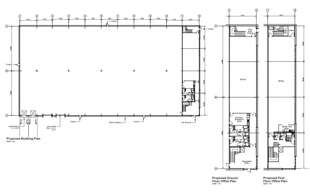
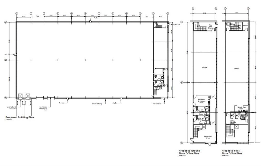
Two purpose-built, detached light-industrial warehouse units on Carlbury Road offer large, modern operational space in Newton Aycliffe Business Park. Each unit provides dock and level loading, high eaves (11–12m), robust power capacity and heavy floor loading — features that suit logistics, manufacturing and bulk storage occupiers. Large secure service yards (up to 40m depth), multiple parking spaces and EV/disabled provision support HGV maneuvering and staff access.
The development can be delivered within 12 months from agreeing terms, making it suitable for occupiers or investors needing a relatively quick build-to-suit solution. Units measure approximately 36,069 and 41,529 sqft, giving clear scale and flexibility for single-occupier use or subdivided layouts with office accommodation on ground and first floors.
Be aware of a few practical constraints: tenure is currently unspecified, broadband speeds in the immediate area are reported slow, and local crime levels are high. Flood risk is none. These factors are material to occupier operations and should be clarified during due diligence. Overall, the site’s strategic proximity to the A1(M), large secure yard and modern specification make it a strong industrial/logistics proposition for operators or investors seeking scale and rapid delivery.
Commercial development for sale in Prime Point, Carlbury Road, Aycliffe Business Park, Newton Aycliffe, Durham DL5 6BH, DL5 — POA • 1 bed • 1 bath
Warehouse for sale in Plot DC2 @ Integra 61, Integra 61, Durham RFI, Durham, DH6 5NP, DH6 — POA • 1 bed • 1 bath • 8611 ft²
Warehouse for sale in Optima @ Integra 61, Integra 61, Durham RFI, Durham, DH6 5NP, DH6 — POA • 1 bed • 1 bath • 29000 ft²
Light industrial facility for sale in Lingfield Way, Darlington, DL1 4XX, DL1 — POA • 1 bed • 1 bath • 26888 ft²
Light industrial facility for sale in Innovation House, Centurion Way, Darlington, Durham, DL3 0UP, DL3 — £3,000,000 • 1 bed • 1 bath • 581 ft²
Warehouse for sale in DC6, Integra 61, Durham RFI, Durham, DH6 5NP, DH6 — POA • 1 bed • 1 bath














































































