Consent granted for large warehouses on a well-connected business park plot.
- Freehold development plot approx 1.65 hectares (4.1 acres)
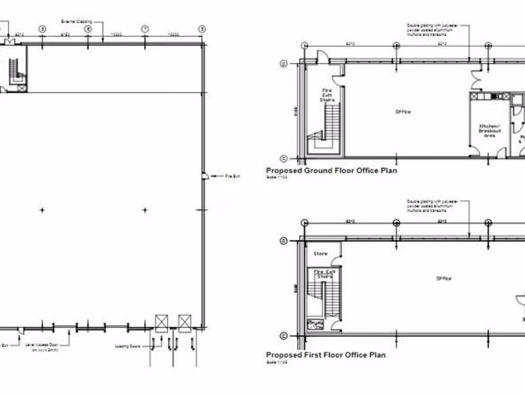
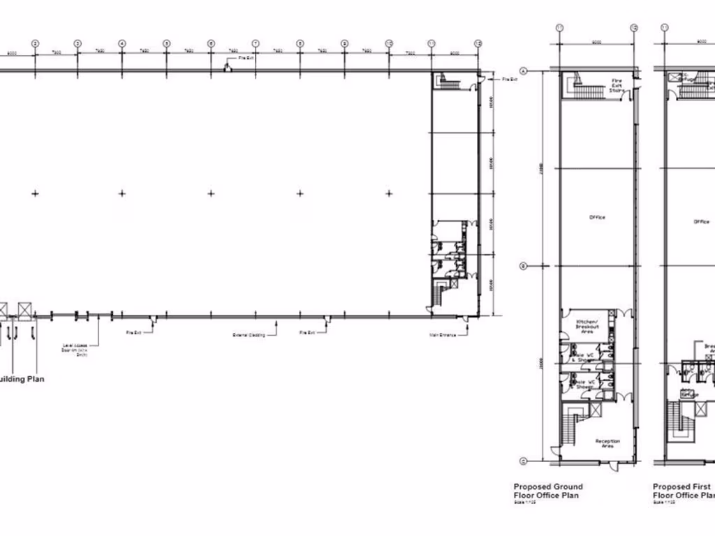
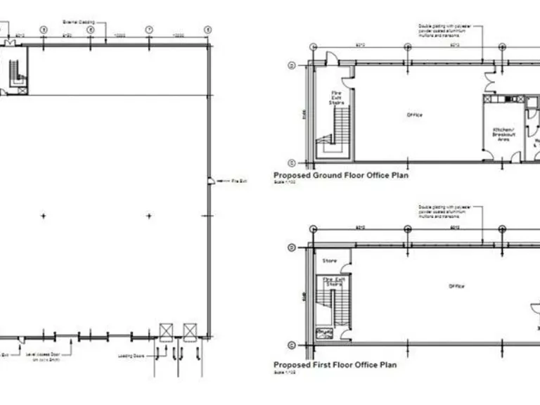
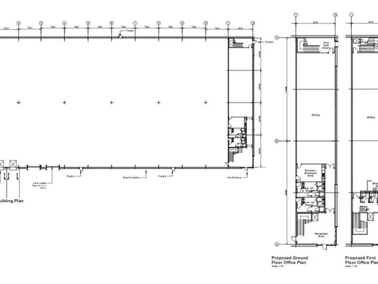
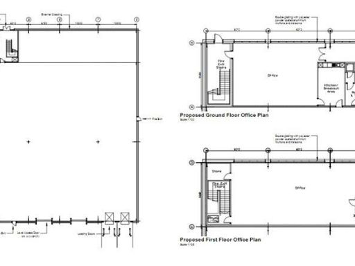
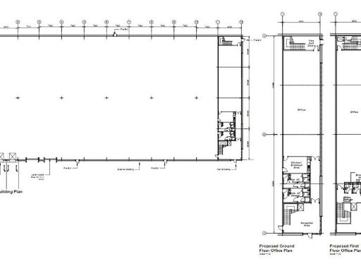
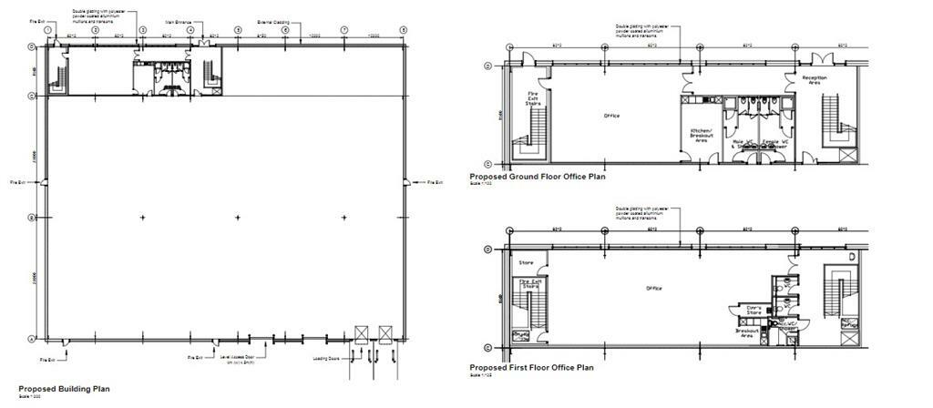
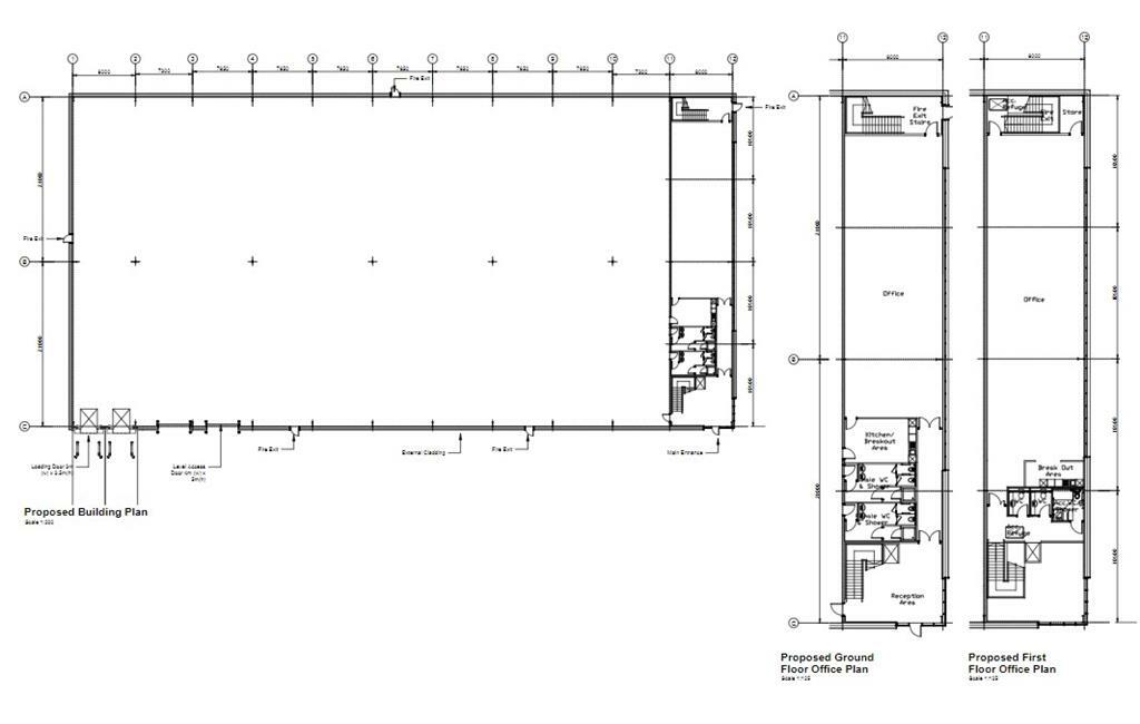
- Planning consent for two detached warehouses (80,546 sq ft total)
- Immediate access to A1(M) and regional transport links
- Provision for service yard, car and cycle parking in consent
- Broadband speeds reported as slow; check connectivity requirements
- Local recorded crime levels are high; security measures advisable
- Tenure details currently unspecified; confirm before exchange
- Surrounding business-park environment suitable for logistics/industry
A substantial freehold development plot in Aycliffe Business Park, offered with planning consent for two detached warehouse units totalling approximately 80,546 sq ft. The site extends to about 1.65 hectares (4.1 acres), providing scope for large-scale industrial or logistics use and immediate delivery once build-out begins. Position next to major road links including the A1(M) supports distribution operations and regional connectivity.
The site’s strengths are its size, established business-park setting, and consented industrial scheme, making it a clear proposition for investors or developers targeting manufacturing, logistics or similar uses. On-site provision includes service-yard and car/cycle parking concepts in the consented layout; the area supports heavy commercial activity and benefits from nearby business hubs and transport nodes.
Buyers should note a few material considerations: recorded local crime levels are high, broadband speeds in the area are slow, and the tenure details are currently unspecified. These factors may affect occupational suitability for some operators and could influence yields or occupier demand. The surrounding area is classified as “endeavouring social renters,” which may be relevant to workforce availability and local market perceptions.
Overall this is a ready-to-develop industrial opportunity with planning in place and strong road connectivity. It will suit developers or investors able to manage site delivery and address local infrastructure considerations such as digital connectivity and security measures.
Land for sale in Prime Point, Carlbury Road, Newton Aycliffe DL5 6BH, DL5 — £1,000,000 • 1 bed • 1 bath
Land for sale in Plot 5 Symmerty Park, Morton Park Way, Darlington, Durham, DL1 4PT, DL1 — POA • 1 bed • 1 bath
Land for sale in Development Site, Long Tens Way, Newton Aycliffe DL5 6AP, DL5 — £750,000 • 1 bed • 1 bath
Leisure facility for sale in Aycliffe Quarry, Newton Aycliffe, County Durham, DL5 — £3,000,000 • 1 bed • 1 bath
Light industrial facility for sale in Prime Point, Carlbury Road, Aycliffe Business Park, Newton Aycliffe, Durham, DL5 6BH, DL5 — POA • 1 bed • 1 bath
Light industrial facility for sale in Symmetry Park Darlington Eastern Transport Corridor, Darlington, County Durham, DL1 4PT, DL1 — POA • 1 bed • 1 bath


































