DA8 2EY - 3 bedroom terraced house for sale in The Nursery, Erith, Ke…

View on Property Piper

3 bedroom terraced house for sale in The Nursery, Erith, Kent, DA8

Summary - 63 THE NURSERY ERITH DA8 2EY

3 bed 2 bath Terraced

Three-bedroom refurbished terrace near Slade Green station, sold via Modern Auction..
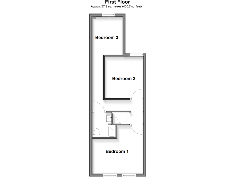
Three bedrooms and two bathrooms — useful for family mornings
Close to Slade Green station and Elizabeth Line access
Newly refurbished interior; double glazing and gas central heating
Small galley kitchen — limited space and may need overhaul
Small rear garden and compact plot size
Off-street driveway parking included
Sold by Modern Auction — undisclosed reserve and buyer fees apply
Local area: high crime and very deprived; consider location implications
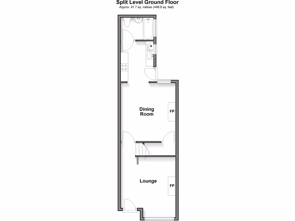
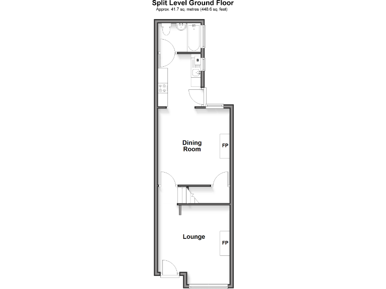
Recently refurbished three-bedroom mid-terrace offering practical family space close to local schools and Slade Green station. The house has two bathrooms, a compact kitchen and a small rear garden, suited to everyday family life and quick commutes via the Elizabeth Line.

Sold by Modern Auction, the sale process carries an undisclosed reserve price and non-refundable buyer fees (including a minimum reservation fee). Buyers must complete within the auction timescales and carry out their own due diligence — this is not a traditional private treaty sale.

The property sits in an established renting-families area with excellent mobile signal and fast broadband, useful for home-working and streaming. It benefits from off-street parking, mains gas central heating and double glazing, and is offered freehold with affordable council tax.

Notable negatives: the neighbourhood records higher crime and very high deprivation scores; the plot is small and the kitchen is compact and may need further updating despite recent refurbishment. Prospective buyers should review the buyer information pack and factor auction fees and timelines into their budget and plans.

Property Details

Image Descriptions

Floorplan Description

Rooms

Textual Property Features

Target Audience

AI Tags

Detected Visual Features

EPC Details

Nearby Schools

Nearest Bars And Restaurants

,,,,}

Nearest General Shops

,,}

Nearest Grocery shops

,,}

Nearest Supermarkets

,,}

Nearest Religious buildings

,,}

Nearest Medical buildings

,,,}

Nearest Airports

,,}

Nearest Leisure Facilities

,,,,}

Nearest Tourist attractions

,,}

Nearest Train stations

,,,,}

Nearest Bus stations and stops

,,,,}

Nearest Hotels

,,}

Tags

Local Market Stats

AirBnB Data

Similar Properties

Meta

High Res Images

Compatible Images

Low res Images

Thumbnails

Raw Images

High Res Floorplan Images

Compatible Floorplan Images

Low res Floorplan Images

FloorplanImages Thumbnail

Raw Floorplan Images