Ready-to-move-in home with flexible living spaces and low-maintenance garden.
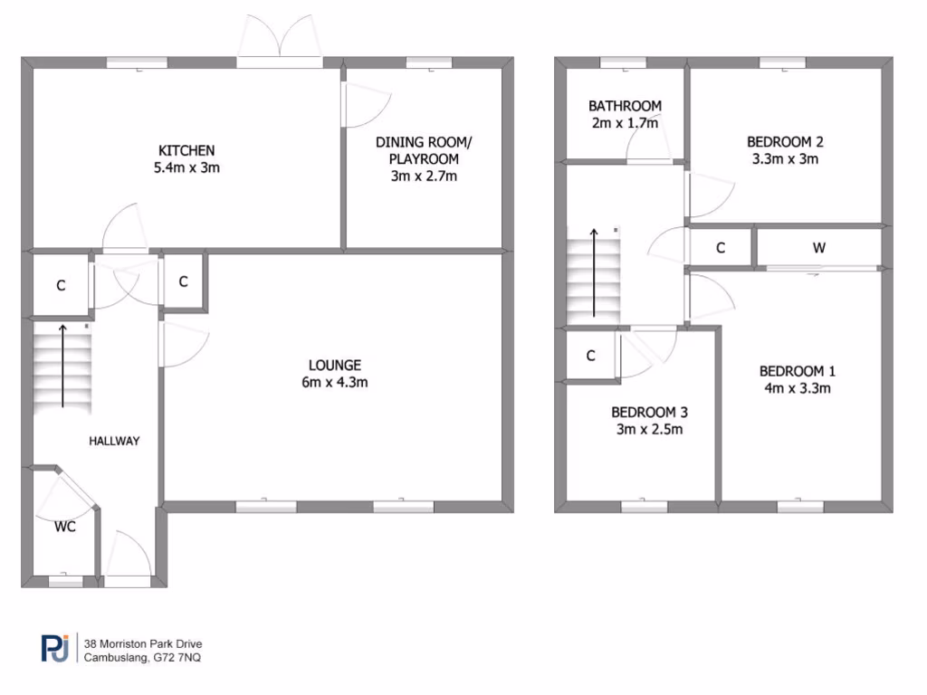
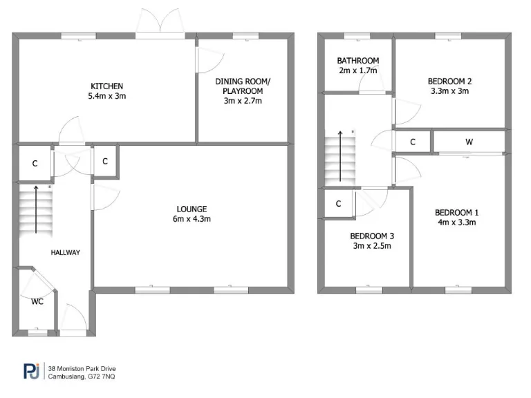
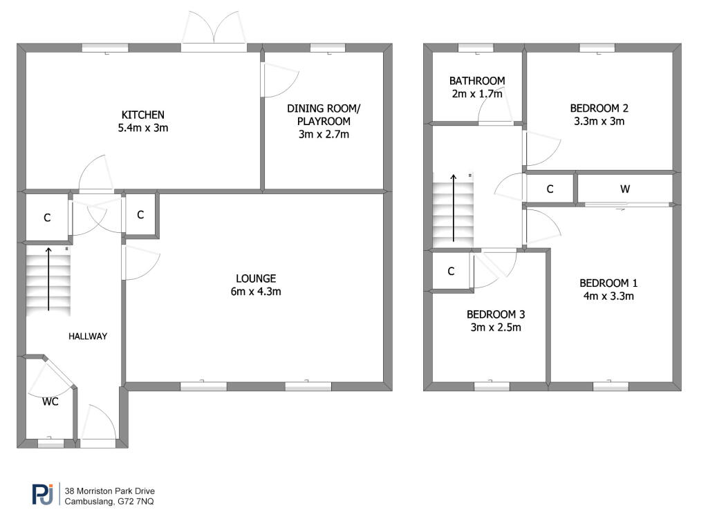
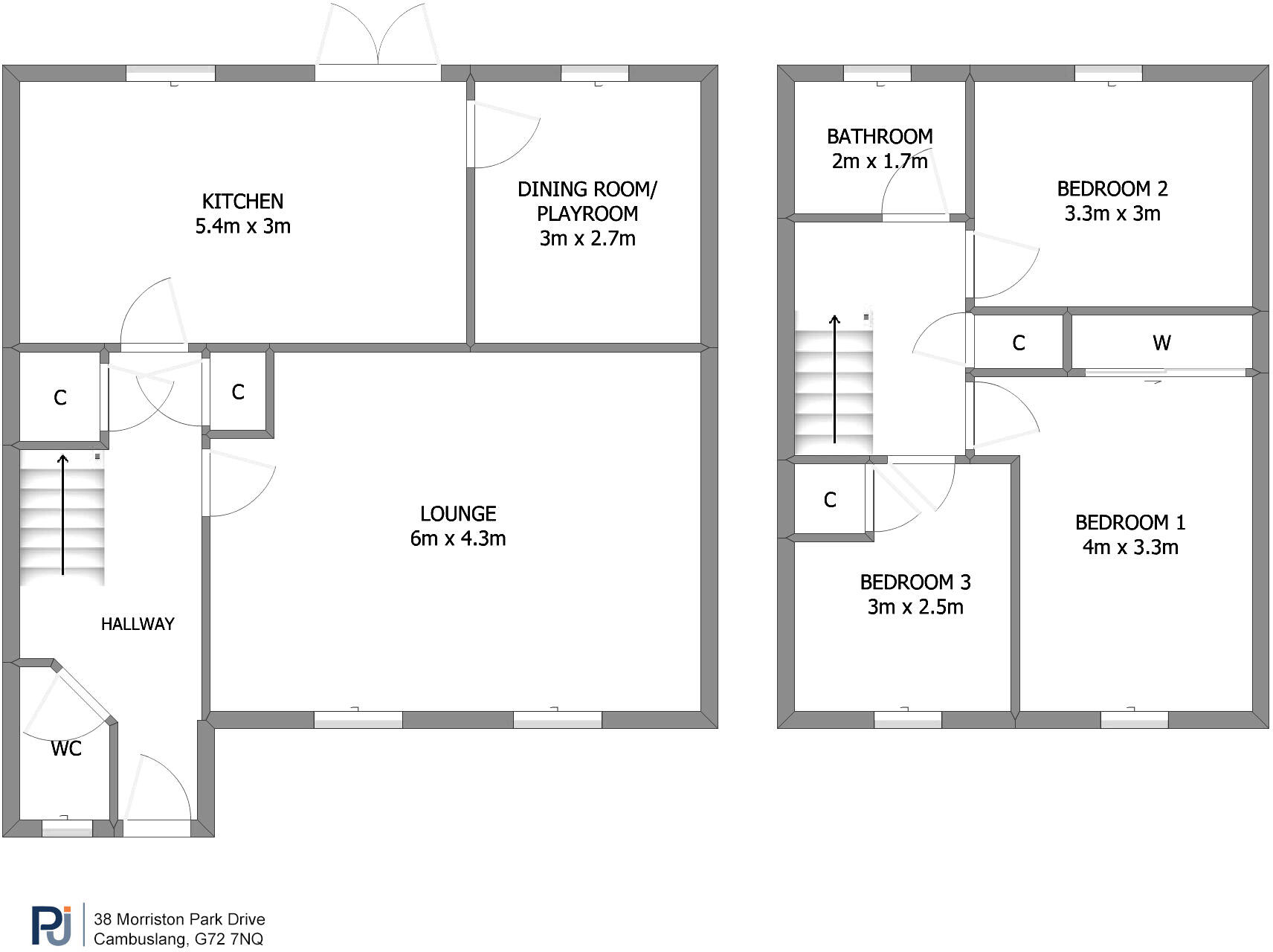
Extended three-bedroom semi-detached villa with flexible layout
Recently re-fitted main bathroom and upgraded guest WC
Large dining kitchen with French doors to west-facing garden
Generous snug/home office; can be reinstated as fourth bedroom
Most windows replaced; gas boiler circa nine years old
Low-maintenance landscaped rear garden and detached garage
Block-paved driveway offering off-street parking
Area classified very deprived; tenure unspecified in listing
This extended three-bedroom semi-detached villa is presented to a high standard and suits families seeking move-in ready accommodation. Rooms flow well for daily life, with a generous dining kitchen, a lounge with feature media wall, and a handy snug that can serve as a home office or be reinstated as a fourth bedroom. Most windows have been renewed and recent re-fitted WC and bathroom add practical, modern convenience.
Outside, the corner plot offers strong outdoor appeal with a west-facing, low-maintenance rear garden laid to artificial lawn and porcelain patio. A block-paved driveway and detached garage provide off-street parking and useful storage. Heating is gas-fired with a Worcester combi boiler installed around nine years ago, and the EPC sits at Band C.
Buyers should note a few material points: the property sits in an area classified as very deprived, tenure is unspecified in the listing, and the house is an average overall size (approximately 905 sqft) which may feel compact for some larger families. Those seeking a ready-to-live-in home with straightforward maintenance and flexible layout will find this villa appealing; others wanting larger rooms or guaranteed tenure clarity should investigate further.
3 bedroom semi-detached house for sale in Gargrave Avenue, Garrowhill, Glasgow, G69 — £210,000 • 3 bed • 1 bath • 728 ft²
4 bedroom semi-detached house for sale in Wingate Crescent, Calderwood, EAST KILBRIDE, G74 — £290,000 • 4 bed • 3 bath • 1819 ft²
3 bedroom semi-detached house for sale in Drumchapel Close, Glasgow, G15 — £249,995 • 3 bed • 3 bath • 1028 ft²
3 bedroom detached house for sale in 12 Dochart Oval, Robroyston, Glasgow, G33 — £290,000 • 3 bed • 2 bath • 744 ft²
3 bedroom detached villa for sale in Levernbridge Road, Glasgow, G53 — £269,000 • 3 bed • 2 bath • 1284 ft²
5 bedroom property for sale in 43 Hawthorn Way, Cambuslang , Glasgow, G72 — £410,000 • 5 bed • 3 bath • 1512 ft²


























































































































































































