LL65 1YS - 6 bedroom detached house for sale in Ty Mawr, Mountain, Hol…

View on Property Piper

6 bedroom detached house for sale in Ty Mawr, Mountain, Holyhead, Gwynedd, LL65 1YS, LL65

Summary - 1 Ty Mawr, Road From Lon Newydd North Westward Past Cae Fabli To Point North West Of Inglen LL65 1YS

6 bed 3 bath Detached

### Standout Features
- Freehold detached house on a generous 1.6 acres.
- Six bedrooms and three bathrooms, offering ample family space.
- Spacious 2,422 sq ft layout with two kitchens and multiple reception rooms.
- Vacant possession means immediate availability for the new owners.
- Development potential subject to necessary consents; perfect for investors or families looking to customize their space.

### Concise Summary
This expansive detached house in Holyhead is a prime investment opportunity, boasting a substantial 1.6 acres of grounds and 2,422 square feet of living space. With six bedrooms and three bathrooms, the property is ideally suited for families or those seeking to create a personalized home. The traditional structure features two kitchens and multiple reception rooms, providing a canvas for renovations or extensions that could unlock incredible value.

While the property is currently in need of some TLC, including a derelict outbuilding that holds renovation potential, its excellent location and vacant possession offer immediate accessibility. Local amenities such as meadows and forests are just around the corner, and the area’s mobile signal is excellent, making it convenient for modern families. Investors will appreciate the potential for various developments as well, subject to necessary planning permissions.

This unique opportunity is not expected to last long in today’s market. Envision the future potential of this traditional family home—your dream space awaits to be revitalized.

Property Details

Image Descriptions

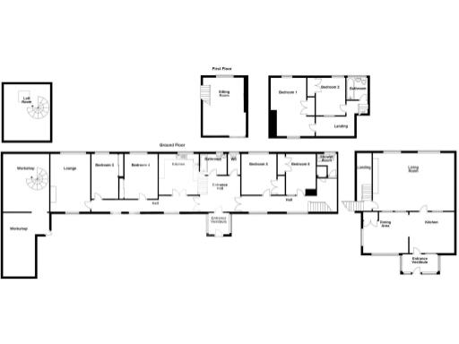
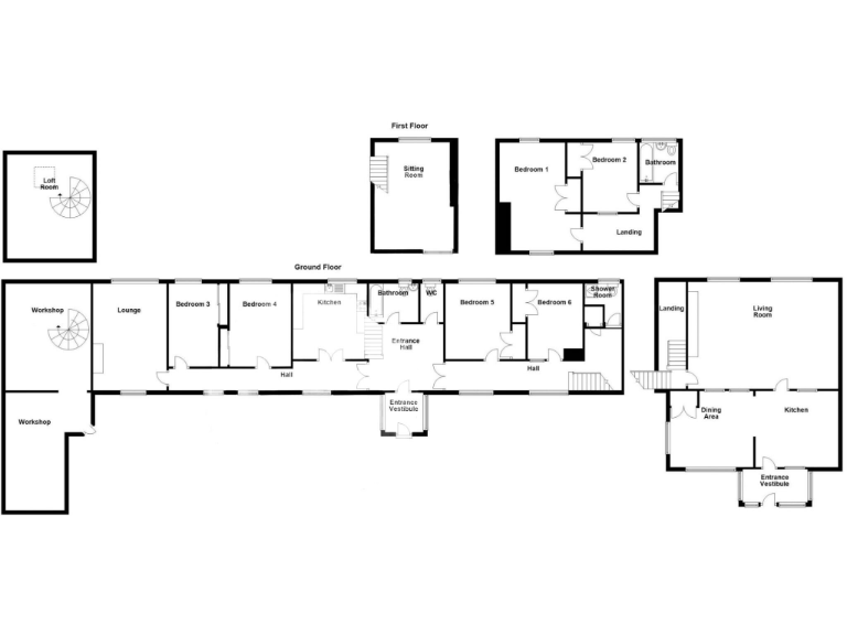
Floorplan Description

Rooms

Textual Property Features

Detected Visual Features

EPC Details

Nearest Bars And Restaurants

,,,,}

Nearest General Shops

,,}

Nearest Grocery shops

,,}

Nearest Supermarkets

,,}

Nearest Religious buildings

,,}

Nearest Medical buildings

,,,}

Nearest Leisure Facilities

,,,,}

Nearest Tourist attractions

,,}

Nearest Train stations

,,,,}

Nearest Bus stations and stops

,,,,}

Nearest Hotels

,,}

Tags

Local Market Stats

Similar Properties

Meta

High Res Images

Compatible Images

Low res Images

Thumbnails

Raw Images

High Res Floorplan Images

Compatible Floorplan Images

Low res Floorplan Images

FloorplanImages Thumbnail

Raw Floorplan Images