Family-friendly detached house with sunroom, garage and driveway in Great Sankey.
Freehold four-bedroom detached house on quiet cul-de-sac
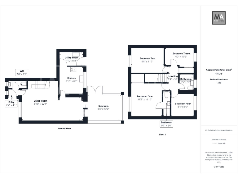
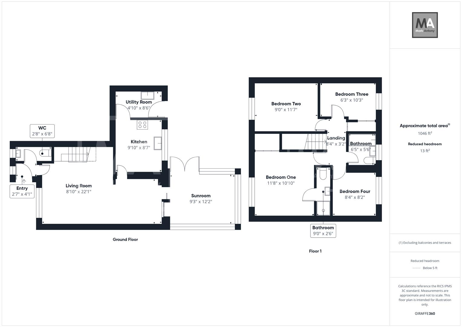
A practical four-bedroom detached house on a quiet cul-de-sac in desirable Great Sankey, set on a decent plot with a private rear garden and paved seating area. The ground floor offers an open-plan living and dining space that leads into a sunroom, plus a separate kitchen with adjoining utility room and a handy downstairs WC. A double driveway and integral garage provide off-street parking for two cars.
Upstairs are four bedrooms, including a master bedroom with en-suite and built-in wardrobe, and a family bathroom with a full-size bath. The home is presented in neutral tones and benefits from recent double glazing and mains gas central heating, making it comfortable and straightforward to live in from day one.
Notable positives include good broadband availability (up to 900Mb), excellent local schools, low crime levels and easy access to commuter links and local amenities. The property is freehold and sits in a very affluent, family-oriented suburb with nearby parks and shopping including Gemini Park.
Buyers should note the overall internal size is modest at about 1,046 sq ft and some fixtures and finishes are dated, so cosmetic updating may be required to suit modern tastes. Drainage is listed as private, which can carry different maintenance responsibilities compared with mains sewer connections.
4 bedroom detached house for sale in Freshwater Close, Great Sankey, Warrington, WA5 — £450,000 • 4 bed • 4 bath • 1606 ft²
4 bedroom detached house for sale in Harrogate Close, Great Sankey, Warrington, WA5 — £350,000 • 4 bed • 2 bath • 1221 ft²
4 bedroom detached house for sale in Hallington, Great Sankey, Warrington, WA5 — £415,000 • 4 bed • 2 bath • 1234 ft²
4 bedroom detached house for sale in Watergrove Crescent, Great Sankey, Warrington, WA5 — £470,000 • 4 bed • 3 bath • 1656 ft²
4 bedroom detached house for sale in Wharfdale Close, Whittle Hall, Great Sankey, WA5 — £460,000 • 4 bed • 2 bath • 1538 ft²
4 bedroom detached house for sale in Ventura Drive, Great Sankey, Warrington, WA5 — £372,400 • 4 bed • 2 bath • 1132 ft²






































































