Spacious four-bedroom family home with large garden and garage in sought-after Great Sankey.
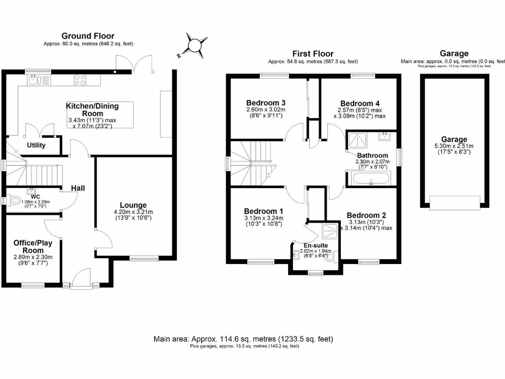
Four bedrooms and two modern bathrooms including master en-suite
Open-plan kitchen-diner with integrated appliances and separate utility
Large landscaped rear garden with versatile outdoor retreat
Detached garage plus large driveway — generous parking and storage
Quiet cul-de-sac location near excellent schools and transport links
Freehold tenure, mains gas central heating, broadband up to 900Mb
Average overall size for the footprint — view to confirm room proportions
Council tax band above average — budget accordingly
This four-bedroom detached house in Hallington, Great Sankey, offers spacious family living in a sought-after, very low-crime suburb. The ground floor centres on a large open-plan kitchen-diner with integrated appliances and a separate utility, plus a bright lounge and ground-floor WC — practical spaces for everyday family life and entertaining.
Upstairs features four generous bedrooms, a modern family bathroom and a master en-suite. The property sits on a decent plot with a well-maintained, landscaped rear garden and a versatile outdoor retreat useful as a home study or playroom. A large driveway and detached garage provide ample parking and storage.
Location is a strong selling point: quiet cul-de-sac setting close to high‑performing schools, local shops, leisure facilities, Sankey Valley and good rail/motorway links for commuters. Broadband is fast (up to 900Mb) and mobile signal is excellent, supporting home-working and streaming.
Practical notes: the house is freehold with mains gas central heating and above-average council tax. Overall size is described as average for a family home, so buyers seeking very large rooms should view to confirm space expectations.
4 bedroom detached house for sale in Golf Gardens, Great Sankey, Warrington, WA5 — £375,000 • 4 bed • 2 bath • 1069 ft²
4 bedroom detached house for sale in Cottesmore Close, Great Sankey, Warrington, WA5 — £400,000 • 4 bed • 2 bath • 1284 ft²
4 bedroom detached house for sale in Vincent Close, Old Hall, Warrington, WA5 — £425,000 • 4 bed • 2 bath • 1700 ft²
4 bedroom detached house for sale in Harrogate Close, Great Sankey, Warrington, WA5 — £350,000 • 4 bed • 2 bath • 1221 ft²
4 bedroom detached house for sale in Shepherds Grove, Great Sankey, Warrington, WA5 — £347,900 • 4 bed • 2 bath • 1199 ft²
4 bedroom detached house for sale in Ventura Drive, Great Sankey, Warrington, WA5 — £372,400 • 4 bed • 2 bath • 1132 ft²














































































